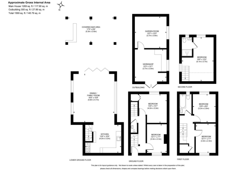
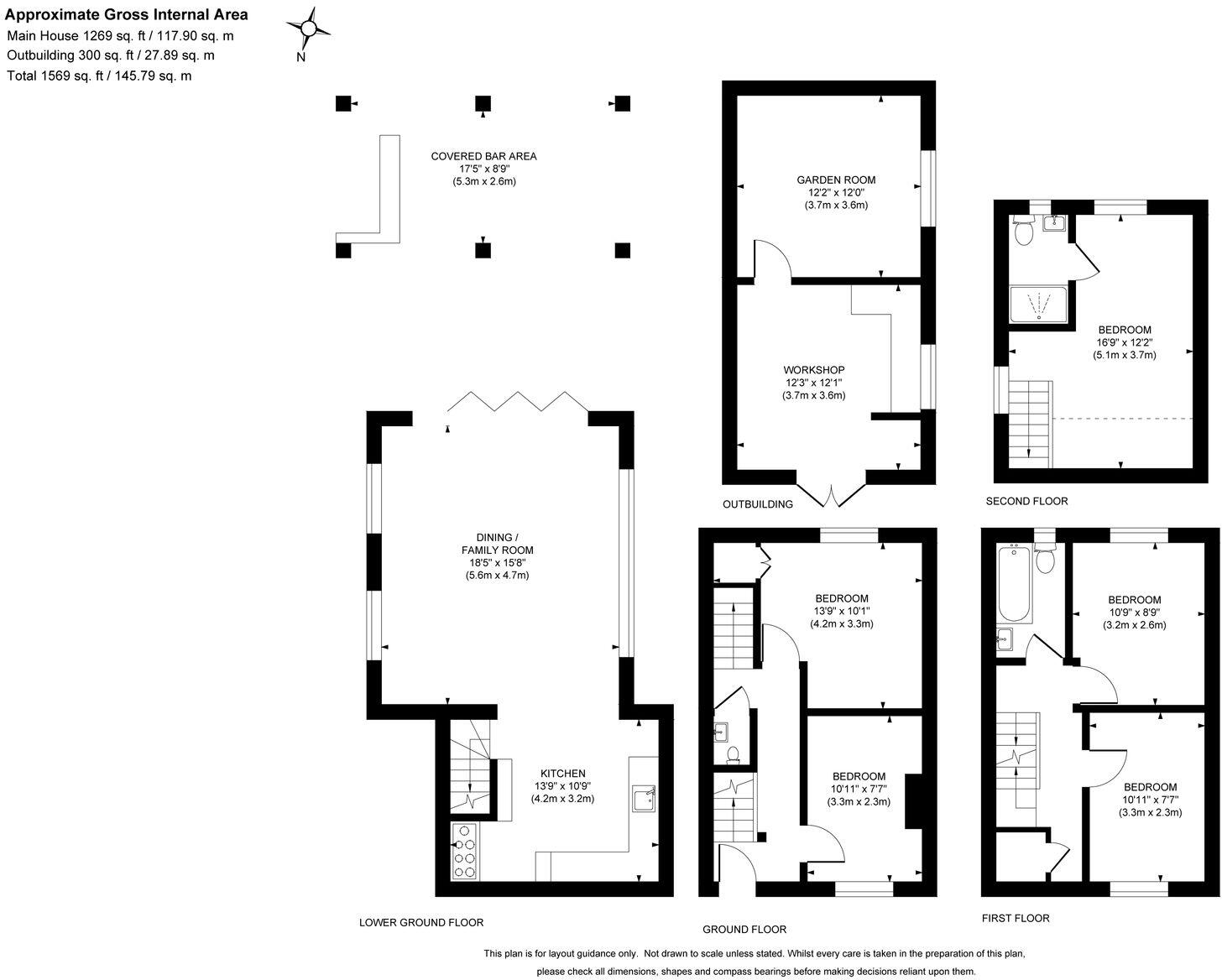
**Standout Features:**
- Versatile 4/5-bedroom semi-detached home across four floors
- Expansive lower ground floor kitchen/living area with underfloor heating and bi-fold doors to garden
- Large South-facing rear garden with undercover entertaining area and bar
- Driveway parking plus sizable garage/workshop
- Proximity to three highly-rated primary schools and less than a mile from the train station
- EPC Rating: C
This charming Victorian semi-detached home offers impressive versatility, perfect for families or potential investors. With five bedrooms distributed over four levels, this spacious residence includes an enormous lower ground floor featuring a modern kitchen and living area that seamlessly connects to an expansive 100' garden, ideal for entertaining. The property also boasts a full-width terrace and ample parking, including a larger-than-average garage, adding to its practical appeal.
Located in a desirable area close to quality schools, this home provides an excellent opportunity for family living. While the property may require some minor cosmetic updates to suit modern tastes, its solid structure and layout offer significant future potential for renovations or extensions. The combination of ample indoor space, a vibrant outdoor area, and the convenience of nearby amenities makes this home a rare find. Don't miss your chance to secure this unique property—viewings are highly recommended!
4 bedroom semi-detached house for sale in Western Road, Haywards Heath, RH16 — £725,000 • 4 bed • 3 bath • 1678 ft²
3 bedroom semi-detached house for sale in Queens Road, Haywards Heath, RH16 — £585,000 • 3 bed • 2 bath • 1268 ft²
4 bedroom house for sale in College Road, Haywards Heath, RH16 — £550,000 • 4 bed • 2 bath • 1131 ft²
4 bedroom house for sale in Haywards Road, Haywards Heath, RH16 — £700,000 • 4 bed • 2 bath • 1604 ft²
4 bedroom semi-detached house for sale in 23 Bolnore Road, Haywards Heath, RH16 — £775,000 • 4 bed • 3 bath • 1581 ft²
4 bedroom detached house for sale in Parsonage Road, Horsham, West Sussex, RH12 — £850,000 • 4 bed • 2 bath • 1884 ft²






































































































