Established rental income with easy-to-manage exterior and clear refurbishment upside.
Private driveway parking for one vehicle
Small front and rear gardens, low-maintenance
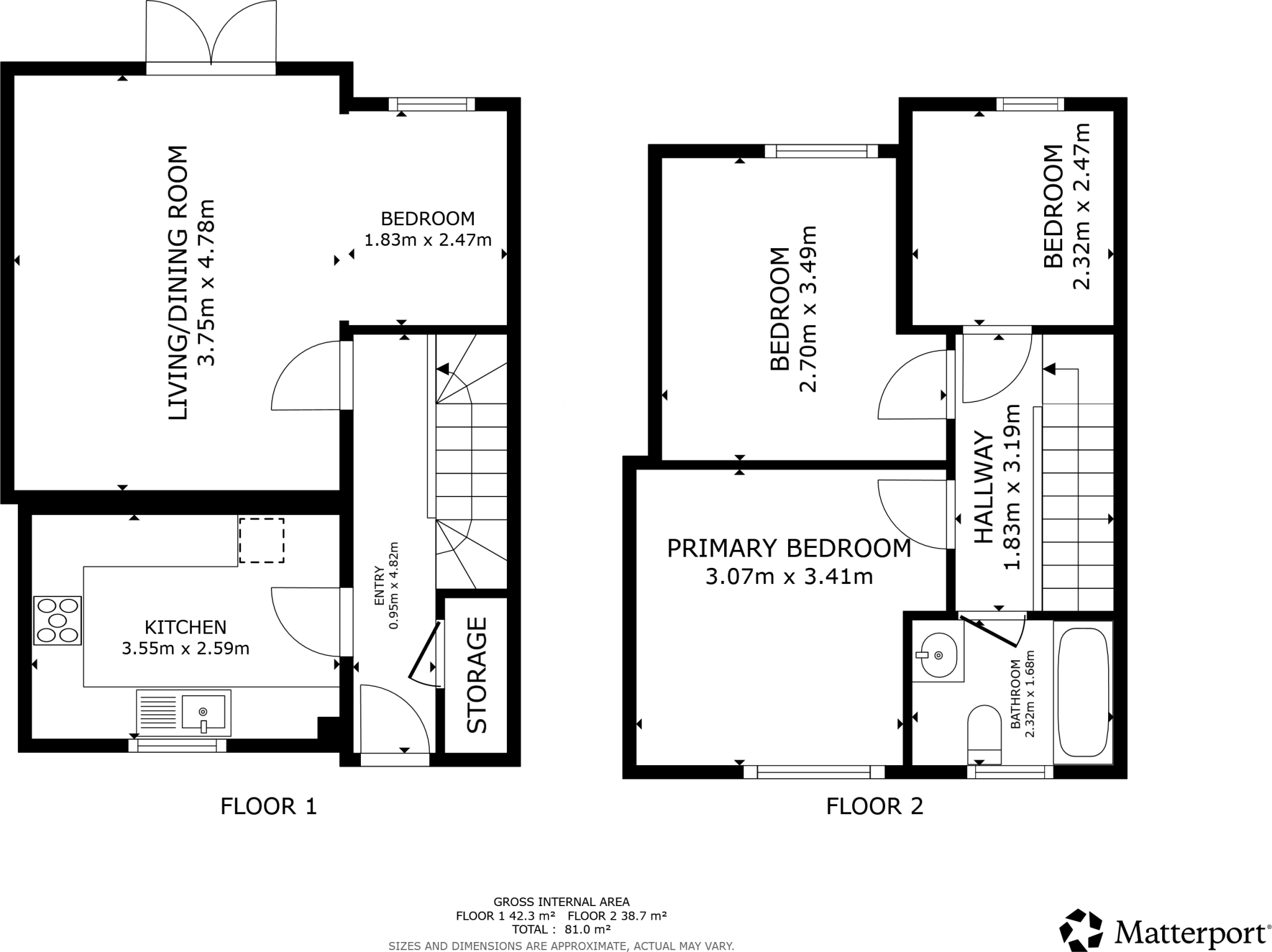
Three bedrooms and two bathrooms, 861 sq ft total
Current gross annual income £8,100 with tenant in situ
Freehold tenure — straightforward ownership
Located in a very deprived area with high local crime
Buyers Premium applies to the purchase price
Modest internal space; light refurbishment may boost yield
A straightforward mid-terrace in Ilkeston presented as a buy-to-let opportunity with an established long-term tenant. The property is freehold, offers three bedrooms, two bathrooms and private off-street parking — basics that make for an easy-to-manage rental asset. Current gross annual rent is £8,100, providing a clear income picture for investors evaluating yield and cashflow.
Externally the house is tidy and low-maintenance: red-brick post‑war construction, small front and rear gardens and a paved driveway for one car. Internal living spaces are modest in scale (approximately 861 sq ft) and currently show signs of everyday occupancy and storage constraints; the layout is traditional and will suit standard rental use or light refurbishment to increase future returns.
Material considerations: the property sits in a very deprived area with a high local crime rate and industrial-hardship classification, which will affect tenant demand, capital growth prospects and mortgage/insurance terms. A Buyers Premium applies to the sale; prospective purchasers should factor this fee into total acquisition costs. The property is sold with tenants in situ who intend to remain, so immediate vacant possession is not guaranteed.
This listing will appeal most to investors and developers comfortable operating in higher-risk locations who can manage tenanted properties or carry out targeted upgrades. Full investment detail is available in the Let Property Pack for those wishing to model income, yield and refurbishment scenarios.
3 bedroom terraced house for sale in Richmond Avenue, Ilkeston, DE7 — £141,120 • 3 bed • 1 bath • 1044 ft²
3 bedroom terraced house for sale in Millfield Road, Ilkeston, DE7 — £115,000 • 3 bed • 2 bath • 840 ft²
3 bedroom terraced house for sale in John Street, Ilkeston, DE7 — £120,000 • 3 bed • 1 bath • 754 ft²
2 bedroom end of terrace house for sale in Alfreton Road, Derby, DE21 — £135,000 • 2 bed • 1 bath • 875 ft²
3 bedroom semi-detached house for sale in Osmaston Park Road, Derby, DE24 — £165,000 • 3 bed • 1 bath • 1012 ft²
3 bedroom terraced house for sale in Noel Street, Nottingham, NG16 — £100,000 • 3 bed • 1 bath • 549 ft²


































































































