Part-permitted 31-unit freehold development in central Chelmsford — suited to experienced developers or investors..
31 residential units (18 PD conversions + 13 new build)
Town-centre location with excellent transport and amenity access
Freehold; guide price £3,100,000
Ground-floor commercial units excluded from this sale
Sale subject to VAT — likely reclaimable; seek tax advice
Very high local crime rate — may affect insurers and management costs
Large plot with modern façade and good natural light potential
Information pack and viewings available on request; offers in writing
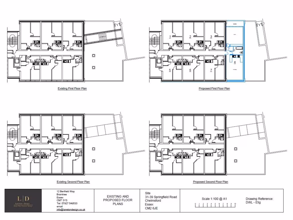
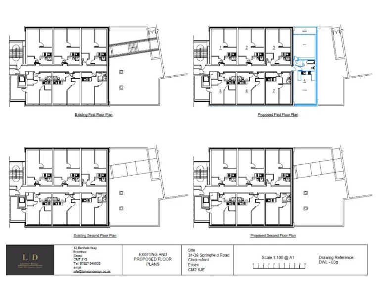
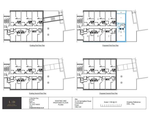
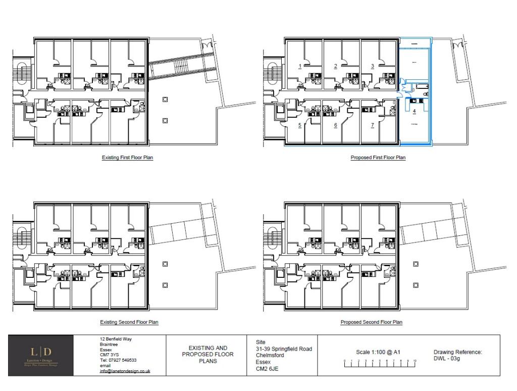
A substantial freehold development site in central Chelmsford offering a 31-unit scheme split between permitted change-of-use and new build. Permission covers conversion of floors 1–3 from office (B1(a)) to 18 residential units, with 13 new apartments above accessed from 31 Springfield Road — a clear route to a dense town-centre residential block.
The location is highly central with immediate access to shops, leisure and transport links; mobile signal and broadband are excellent, supporting rental appeal to professionals and students. The plot is large and the building’s modern façade and large windows provide scope for light-filled, compact units suited to city living. Ground-floor commercial units are excluded from the sale and remain in separate ownership, so the sale is for the residential conversion and new-build floors only.
Practical considerations for buyers: the sale is subject to VAT (commonly reclaimable for developers — seek tax advice). The site sits in an area with very high recorded crime rates, which may affect insurance, management costs and marketing strategy. Viewings and a full information pack (technical reports, planning details) are available on request; offers are to be submitted in writing with finance confirmation.
This opportunity is aimed at experienced developers or investor-developers seeking a town-centre, quick-delivery scheme using permitted development rights. The permission and location give a ready framework, but purchasers should allow for standard conversion and construction costs, and carry out due diligence on safety, security and local management requirements.
Office for sale in Suite, 25-29 Springfield Road, Chelmsford CM2 6JE, CM2 — £950,000 • 1 bed • 1 bath • 4675 ft²
High street retail property for sale in Shop Unit G, Marconi Evolution, Cunard Square, Chelmsford CM1 1AQ, CM1 — £180,000 • 1 bed • 1 bath • 1345 ft²
High street retail property for sale in Shop Unit N, Marconi Evolution, Cunard Square, Chelmsford CM1 1AQ, CM1 — £225,000 • 1 bed • 1 bath • 1650 ft²
High street retail property for sale in Shop Unit M - Split 1, Marconi Evolution, Cunard Square, Chelmsford CM1 1AQ, CM1 — £115,000 • 1 bed • 1 bath • 642 ft²
High street retail property for sale in Shop Unit H1, Marconi Evolution, Cunard Square, Chelmsford CM1 1AQ, CM1 — £132,500 • 1 bed • 1 bath • 757 ft²
4 bedroom maisonette for sale in Mildmay Road, Chelmsford, CM2 — £450,000 • 4 bed • 2 bath • 582 ft²










































