**Standout Features:**
- 3 spacious bedrooms with built-in wardrobes
- Modern dining kitchen with integrated appliances
- Re-fitted family bathroom with contemporary fixtures
- Bay-fronted living room with log-burning stove
- Attached garage and driveway for off-street parking
- Enclosed, southwest-facing rear garden
- Quiet, family-friendly neighborhood with access to schools and parks
- Great broadband speeds and excellent mobile signal
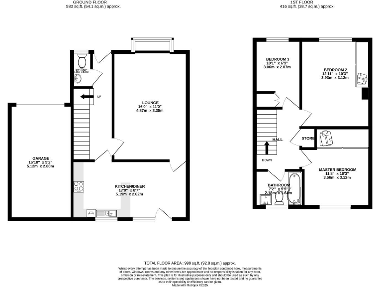
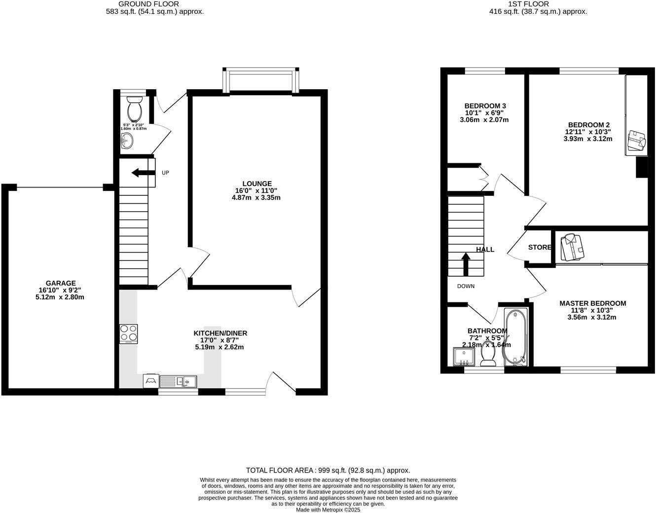
This well-appointed detached family home on Nottingham Drive in Wingerworth presents a wonderful opportunity for families looking for comfort and space in a thriving community. With a total of 999 sq. ft., the property features a light-filled bay-fronted living room, elegantly fitted with a log-burning stove, providing a cozy atmosphere for family gatherings. The modern dining kitchen stands out with its integrated cooking appliances and ample storage, perfect for culinary enthusiasts.
Upstairs, discover three generously sized bedrooms each equipped with built-in wardrobes, ensuring comfort and practicality. The newly re-fitted family bathroom adds a touch of modern luxury with its stylish finishes. Outside, the enclosed southwest-facing garden catches the sun beautifully, ideal for outdoor entertaining or relaxing with loved ones.
Complete with an attached garage and convenient driveway, this property accommodates your parking needs while being situated within a family-oriented area known for its low crime rates and accessibility to local schools, parks, and amenities. Don’t miss your chance to make this charming home your own; it’s not just a house but a comforting place to build your family’s future. Act quickly—properties in this area are highly sought after!
3 bedroom detached house for sale in Belfit Drive, Wingerworth, Chesterfield, S42 — £300,000 • 3 bed • 1 bath • 994 ft²
3 bedroom detached house for sale in Mulberry Close, Wingerworth, Chesterfield, S42 6QE, S42 — £325,000 • 3 bed • 1 bath • 1001 ft²
3 bedroom detached house for sale in Greenway, Wingerworth, Chesterfield, S42 — £300,000 • 3 bed • 1 bath • 915 ft²
4 bedroom detached house for sale in New Road, Wingerworth, Chesterfield, S42 — £425,000 • 4 bed • 2 bath • 1479 ft²
3 bedroom detached house for sale in Nottingham Drive, Chesterfield, S42 — £220,000 • 3 bed • 1 bath • 786 ft²
3 bedroom detached house for sale in Windsor Drive, Wingerworth, Chesterfield, Derbyshire, S42 — £315,000 • 3 bed • 2 bath • 1136 ft²


































































