Two double bedrooms, huge southerly garden and easy commuting from KT8..
- Two generous double bedrooms, potential to create a third
- Very large south-facing private rear garden with raised decking
- Modern kitchen/dining room with integrated appliances
- Dual-aspect living room with wood-burning stove and patio doors
- Off-road block-paved driveway and garden shed
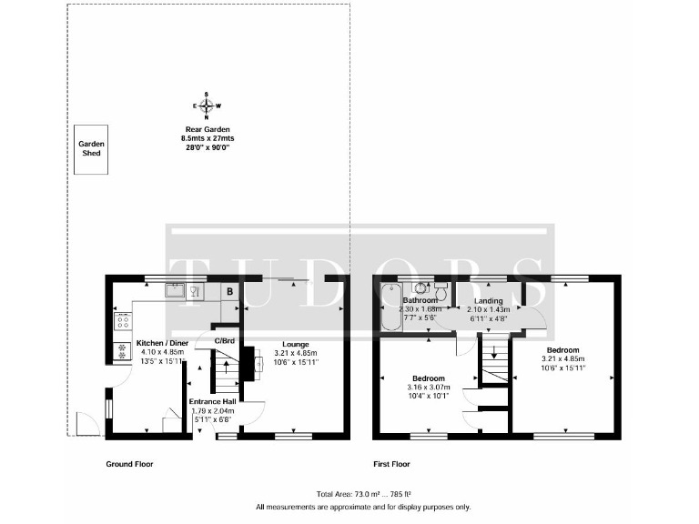
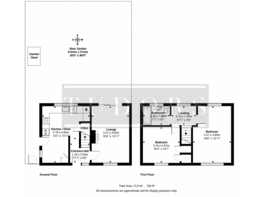
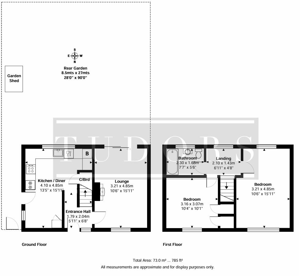
- Freehold tenure; approximately 785 sq ft internal space
- Medium flood risk for the area; check insurance implications
- EPC rating not provided; energy efficiency unknown
Well-proportioned and tastefully updated, this two-double-bedroom semi enjoys a huge south-facing garden and a modern kitchen/dining space ideal for family life and entertaining. The dual-aspect living room, fitted with a wood-burning stove and sliding doors to the garden, gives a bright, flexible ground floor layout. A raised composite deck at the far end of the plot creates a private sunny entertaining area.
Upstairs offers two generous double bedrooms and a contemporary family bathroom. The principal bedroom has scope to be sub-divided to create a third bedroom if required, offering straightforward potential to increase sleeping space. Practical extras include off-road parking, a garden shed, gas central heating and UPVC double glazing.
Notable considerations: the property sits in a medium flood-risk area and the EPC rating is not provided. The overall internal size is average at around 785 sq ft, so buyers seeking larger homes should note footprint limits despite the unusually large rear plot. Council tax is moderate. This freehold home will suit families or first-time buyers wanting outdoor space and commuter links into central London.
3 bedroom semi-detached house for sale in Windsor Avenue, West Molesey, KT8 — £725,000 • 3 bed • 2 bath • 1253 ft²
3 bedroom semi-detached house for sale in The Crescent, West Molesey, KT8 — £699,950 • 3 bed • 2 bath • 1149 ft²
3 bedroom semi-detached house for sale in Island Farm Road, West Molesey, KT8 — £560,000 • 3 bed • 1 bath • 1063 ft²
4 bedroom semi-detached house for sale in Molesey Road, West Molesey, KT8 — £625,000 • 4 bed • 1 bath • 1408 ft²
3 bedroom semi-detached house for sale in Walton Road, West Molesey, KT8 — £699,950 • 3 bed • 2 bath • 1340 ft²
3 bedroom end of terrace house for sale in Down Street, West Molesey, KT8 — £475,000 • 3 bed • 1 bath • 844 ft²


























































































































































