EN1 2JL - 1 bedroom apartment for sale in Lingfield Close, Enfield, M…

View on Property Piper

1 bedroom apartment for sale in Lingfield Close, Enfield, Middlesex, EN1

Summary - 13 LINGFIELD CLOSE ENFIELD EN1 2JL

1 bed 1 bath Apartment

**Standout Features:**
- **Long Lease**: Secure your investment with peace of mind.
- **Garage & Resident Parking**: Convenience of dedicated parking and storage.
- **Communal Gardens**: Enjoy serene outdoor spaces.
- **Prime Location**: Close to Bush Hill Park station and local amenities, including shops and dining.
- **Low Crime Rate**: Peaceful, secure neighborhood.
- **Affluent Area**: Good access to green spaces and recreational facilities.

This bright and modern one-bedroom ground floor apartment offers the perfect blend of comfort and convenience, making it an ideal choice for first-time buyers and investors alike. With a spacious layout, the apartment features a cozy living room bathed in natural light and a well-appointed bedroom. It overlooks beautifully maintained communal gardens, enhancing the inviting atmosphere.

Situated just a short walk from Bush Hill Park station, you’ll enjoy effortless access to London’s vibrant hub. The surrounding area boasts a variety of shops, bars, and restaurants, not to mention several highly-rated primary and secondary schools, making it family-friendly. Furthermore, the property includes a garage and resident parking, ensuring both security and ease for your vehicle.

While the service charge is relatively typical for the area, rest assured that you are investing in a low-maintenance property in a desirable locale. Don't miss the opportunity to make this charming apartment your new home in Enfield – a place that truly caters to modern urban living.

Property Details

Image Descriptions

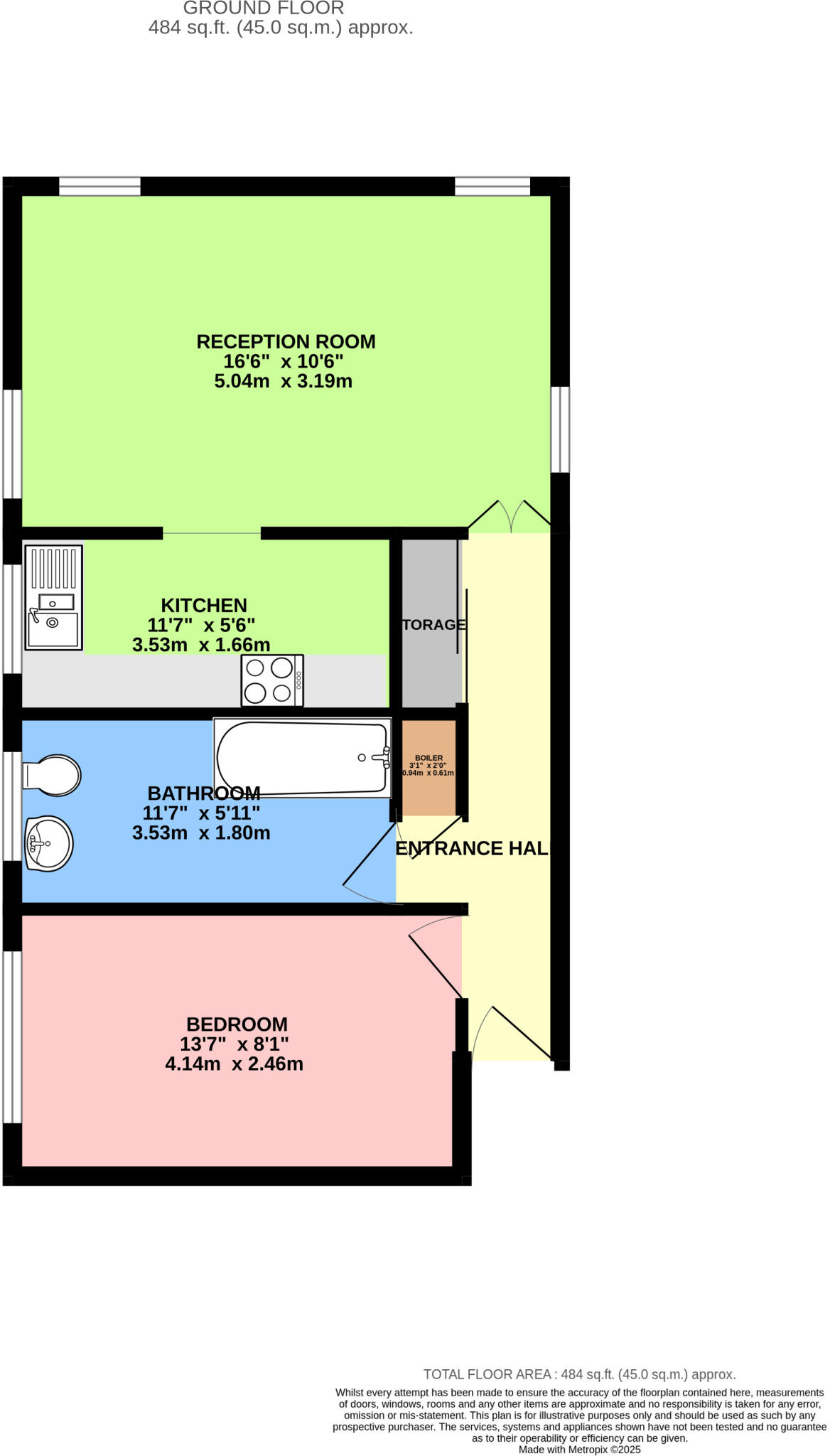
Floorplan Description

Rooms

Textual Property Features

Detected Visual Features

EPC Details

Nearby Schools

Nearest Bars And Restaurants

,,,,}

Nearest General Shops

,,}

Nearest Grocery shops

,,}

Nearest Supermarkets

,,}

Nearest Religious buildings

,,}

Nearest Medical buildings

,,,}

Nearest Airports

,}

Nearest Leisure Facilities

,,,,}

Nearest Tourist attractions

,,}

Nearest Train stations

,,,,}

Nearest Bus stations and stops

,,,,}

Nearest Hotels

,,}

Tags

Local Market Stats

AirBnB Data

Similar Properties

Meta

High Res Images

Compatible Images

Low res Images

Thumbnails

Raw Images

High Res Floorplan Images

Compatible Floorplan Images

Low res Floorplan Images

FloorplanImages Thumbnail

Raw Floorplan Images