CM21 0RL - 4 bedroom detached house for sale in Redricks Lane, Sawbrid…

View on Property Piper

4 bedroom detached house for sale in Redricks Lane, Sawbridgeworth, Hertfordshire, CM21

Summary - TOORAK REDRICKS LANE SAWBRIDGEWORTH CM21 0RL

4 bed 3 bath Detached

**Standout Features:**
- Impressive four-bedroom detached house
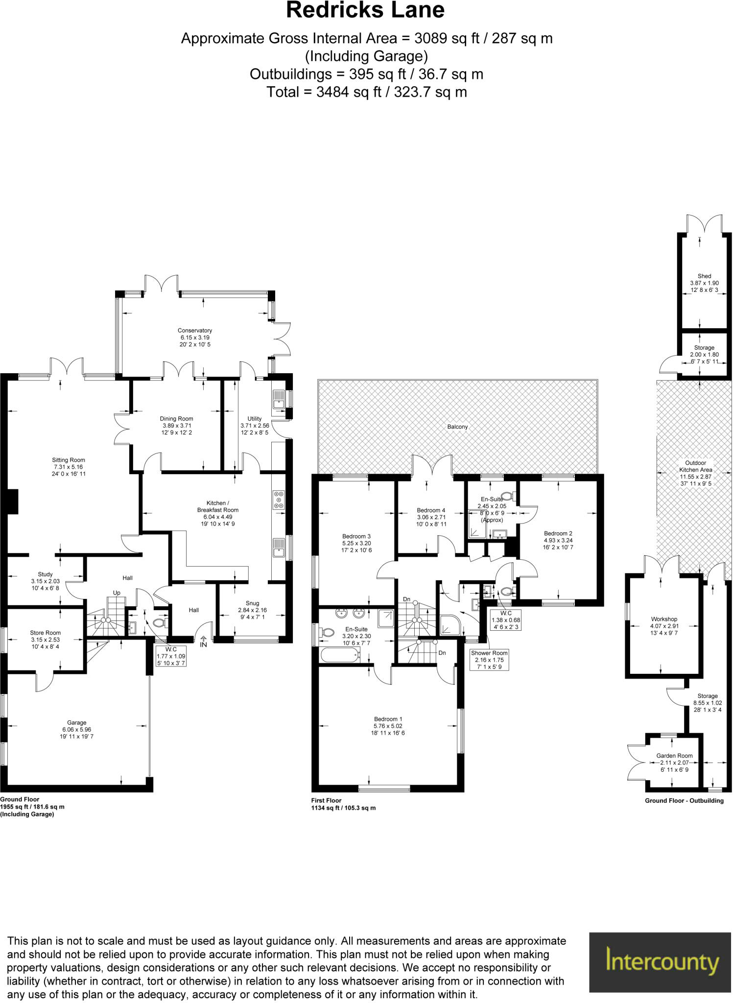
- 3,100 sqft of versatile living space, plus 400 sqft of outbuildings
- Three bathrooms, including two ensuites
- First-floor balcony with stunning countryside views
- Expansive garden and outdoor entertaining areas, including a BBQ and bar
- Large private driveway with ample off-road parking
- Chain-free sale

**Summary Description:**
Experience the perfect blend of spacious living and countryside charm with this stunning four-bedroom detached house set within a generous 0.4-acre plot. Offering over 3,100 square feet of adaptable living space, this home features four sizeable reception rooms, a bright conservatory, and three bathrooms—ideal for families or multi-generational living.

The first-floor balcony provides breathtaking views of the surrounding open countryside, while the vast garden beckons for outdoor gatherings with its dedicated BBQ and bar area along with ample lawn space. Enjoy the peace of nature in your backyard while being conveniently located between Harlow and Sawbridgeworth, with easy access to schools, amenities, and public transport.

Currently standing in good condition, this property holds immense potential for personalization or further development, making it an excellent investment opportunity. When looking for a tranquil yet accessible family home in an affluent community, this stunning property delivers on style, space, and location. Don't miss your chance to make this extraordinary home your own—properties like this aren’t available for long!

Property Details

Brochure Descriptions

Image Descriptions

Floorplan Description

Rooms

Textual Property Features

Detected Visual Features

EPC Details

Nearby Schools

Nearest Bars And Restaurants

,,,,}

Nearest General Shops

,,}

Nearest Grocery shops

,,}

Nearest Supermarkets

,,}

Nearest Religious buildings

,,}

Nearest Medical buildings

,,,}

Nearest Airports

,,}

Nearest Leisure Facilities

,,,,}

Nearest Tourist attractions

,,}

Nearest Train stations

,,,,}

Nearest Bus stations and stops

,,,,}

Nearest Hotels

,,}

Tags

Local Market Stats

Similar Properties

Meta

High Res Images

Compatible Images

Low res Images

Thumbnails

Raw Images

High Res Floorplan Images

Compatible Floorplan Images

Low res Floorplan Images

FloorplanImages Thumbnail

Raw Floorplan Images