CF48 2UG - 4 bedroom detached house for sale in Maesyffynnon House, Po…

View on Property Piper

4 bedroom detached house for sale in Maesyffynnon House, Pontsticill, Merthyr Tydfil, Mid Glamorgan, CF48 2UG, CF48

Summary - MAESYFFYNON HOUSE, MERTHYR TYDFIL, PONTSTICILL CF48 2UG

4 bed 1 bath Detached

Four-bedroom detached home with large garden, countryside views and scope to extend..
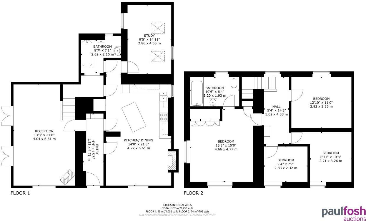
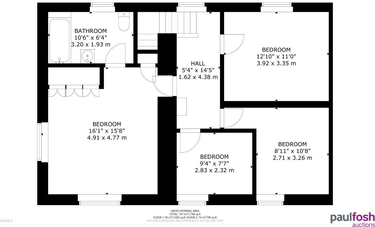
Substantial four-bedroom detached house with generous accommodation
Large, tiered garden with shed and greenhouse and stunning countryside views
Off-street parking and driveway leading to the property
Double glazing, oil central heating and lounge wood burner
Previously extended; scope to extend or reconfigure further
Single bathroom only — limited for four bedrooms
Sold at online auction (Lot 78) — purchaser timelines apply
Located in a very deprived area; consider local service/resale implications
Set on a large plot on the edge of the Brecon Beacons National Park, this substantial four-bedroom detached house delivers generous living space, off-street parking and broad rural views. The property was extended previously and offers scope for further extension or reconfiguration, suiting growing families or buy-to-let investors seeking strong rental appeal in a village setting.

Internally the house benefits from a fitted kitchen, double glazing, oil central heating and a lounge wood burner for cosy winter evenings. The garden is tiered and low-maintenance with a shed and greenhouse, providing private outdoor space to enjoy the hillside panorama and nearby reservoir walks.

Buyers should note a limited bathroom provision for a four-bedroom home, and the property will be sold at online auction (Lot 78). The surrounding area scores as very deprived, which may affect local services and long-term resale dynamics. Tenure is advised freehold but must be verified by solicitor; the sale is with vacant possession.

Property Details

Image Descriptions

Floorplan Description

Rooms

Textual Property Features

Target Audience

AI Tags

Detected Visual Features

Nearest Bars And Restaurants

,,,,}

Nearest General Shops

,,}

Nearest Grocery shops

,,}

Nearest Supermarkets

,,}

Nearest Religious buildings

,,}

Nearest Medical buildings

,,,}

Nearest Leisure Facilities

,,,,}

Nearest Tourist attractions

,,}

Nearest Train stations

,,,,}

Nearest Bus stations and stops

,,,,}

Nearest Hotels

,,}

Tags

Local Market Stats

AirBnB Data

Similar Properties

Meta

High Res Images

Compatible Images

Low res Images

Thumbnails

Raw Images

High Res Floorplan Images

Compatible Floorplan Images

Low res Floorplan Images

FloorplanImages Thumbnail

Raw Floorplan Images