Shared ownership chance near Canada Water transport and green spaces.
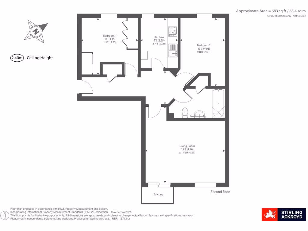
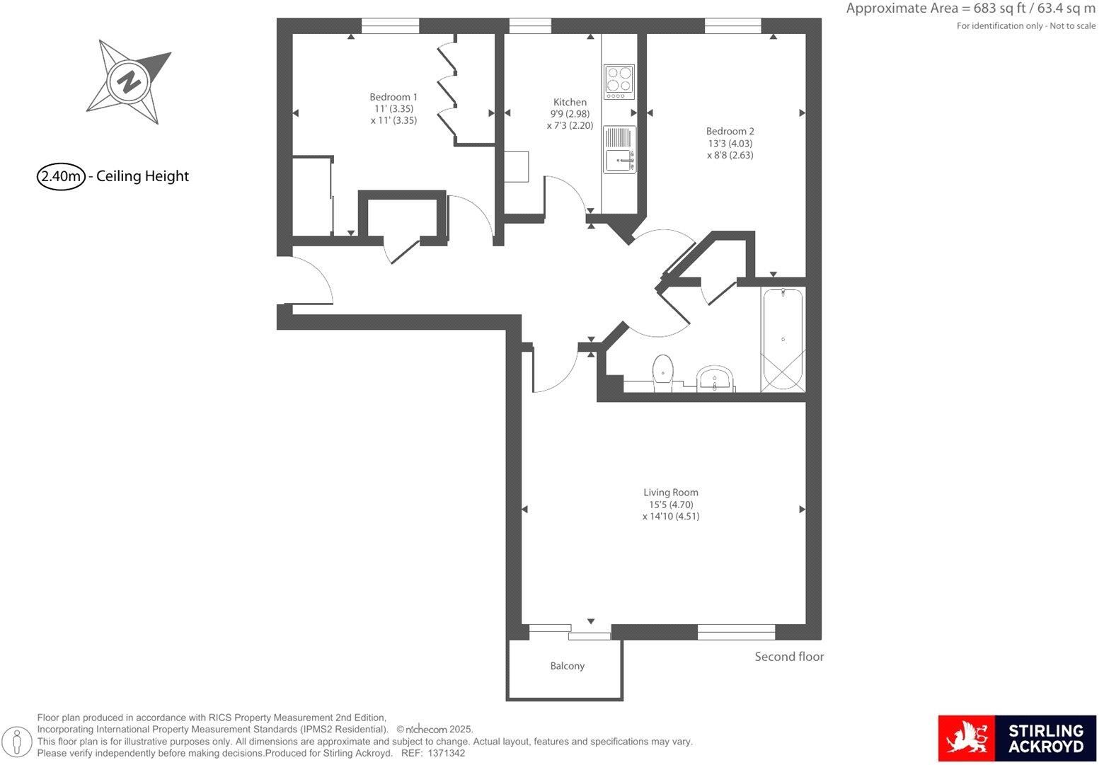
Two double bedrooms and separate living room with balcony
A practical two-double-bedroom flat arranged over 683 sq ft, offered as a 40% shared ownership opportunity (40% share price shown £158,000). The mid-floor apartment has a balcony overlooking well-kept communal gardens, allocated off-street parking and direct access to fast transport links at Canada Water and Surrey Quays. The bright living room, separate kitchen and storage cupboard give a sensible, flexible layout for first-time buyers or buy-to-let investors.
This is a modern red-brick development with double glazing and communal green space that enhances daily life. The area benefits from excellent transport, nearby parks and growing local amenities, making it appealing for commuters and students. The flat is being sold chain free, which shortens the purchase process for buyers able to proceed.
Important lease information: the lease has approximately 66 years remaining. This is likely to limit mortgage availability — some lenders may refuse to lend on this property. Buyers should obtain specialist mortgage advice and consider lease-extension costs before committing. Ground rent and service charge figures are TBC, and the communal management should be checked.
Internally the flat presents as clean and liveable but would benefit from some redecoration and reorganisation to maximise its potential. Electric storage heating is fitted; buyers should note running costs and suitability compared with gas alternatives. Overall this is a well-situated, reasonably sized shared ownership home with clear commuter appeal, provided buyers address the lease and heating considerations.
2 bedroom apartment for sale in Montreal House, Surrey Quays Road, London, SE16 — £171,000 • 2 bed • 1 bath • 723 ft²
2 bedroom maisonette for sale in Bryan House, Rotherhithe Street, Rotherhithe, London, SE16 5HB, SE16 — £187,500 • 2 bed • 1 bath • 728 ft²
2 bedroom apartment for sale in Woodland Crescent, Canada Water, SE16 — £600,000 • 2 bed • 2 bath • 820 ft²
2 bedroom flat for sale in Blondin Way, Rotherhithe, SE16 — £450,000 • 2 bed • 1 bath • 650 ft²
2 bedroom flat for sale in Dominion Walk, London, E14 — £175,500 • 2 bed • 1 bath • 689 ft²
2 bedroom apartment for sale in Apartment 102, 6 Camberwell Passage, Camberwell, SE5 0AX, SE5 — £122,500 • 2 bed • 1 bath • 857 ft²


































































