PO36 0HJ - 3 bedroom detached bungalow for sale in 23 Youngwoods Copse…

View on Property Piper

3 bedroom detached bungalow for sale in 23 Youngwoods Copse, Alverstone Garden Village, Isle of Wight, PO36 0HJ, PO36

Summary - 23, YOUNGWOODS COPSE, SANDOWN, ALVERSTONE GARDEN VILLAGE PO36 0HJ

3 bed 2 bath Detached Bungalow

**Standout Features:**
- Spacious 3-bedroom detached bungalow in a serene cul-de-sac
- Open plan living area with garden access and natural light
- Large wrap-around gardens with a summer house, timber shed, and greenhouse
- Detached double garage with electric door
- Close proximity to cycle tracks and beautiful countryside

**Potential Concerns:**
- Property built during the 1967-1975 period (may require updates to certain fixtures)
- Mobile signal is none and crime rate is very low, but broadband speeds are fast

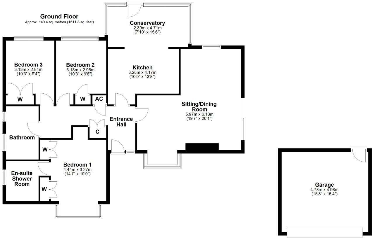
Nestled in the picturesque Alverstone Garden Village, this beautifully maintained detached bungalow offers a tranquil retreat surrounded by nature. Featuring a welcoming entrance hall that flows into an expansive open-plan living and dining area, the home boasts three spacious double bedrooms, a family bathroom, and a private en-suite shower room. The heart of the home—a large kitchen and conservatory—opens directly to lush, wrap-around gardens, creating an ideal space for entertaining or relaxing among established flowers and serene water features.

With a detached double garage and additional parking, this property provides both convenience and comfort. Ideal for families or retirees seeking a peaceful lifestyle, it also presents excellent rental potential given its close proximity to cycling paths leading to Sandown and Newport. Experience countryside living at its finest while being just minutes away from sandy beaches and local amenities. Act quickly, as this exceptional home in an affluent area won’t stay on the market for long!

Property Details

Image Descriptions

Floorplan Description

Rooms

Textual Property Features

Detected Visual Features

EPC Details

Nearby Schools

Nearest Bars And Restaurants

,,,,}

Nearest General Shops

,,}

Nearest Grocery shops

,,}

Nearest Supermarkets

,,}

Nearest Religious buildings

,,}

Nearest Medical buildings

,,,}

Nearest Airports

}

Nearest Leisure Facilities

,,,,}

Nearest Tourist attractions

,,}

Nearest Train stations

,,,,}

Nearest Bus stations and stops

,,,,}

Nearest Hotels

,,}

Tags

Local Market Stats

AirBnB Data

Similar Properties

Meta

High Res Images

Compatible Images

Low res Images

Thumbnails

Raw Images

High Res Floorplan Images

Compatible Floorplan Images

Low res Floorplan Images

FloorplanImages Thumbnail

Raw Floorplan Images