Spacious family living with panoramic rural views and high-end finishes.
New-build bespoke detached home with barn-inspired design
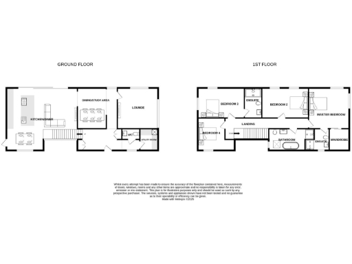
A newly built, barn-inspired detached house set on a very large plot with uninterrupted rural aspects to front and rear. The layout suits family life, with two reception rooms, an expansive open-plan living kitchen, and large landscaped gardens opening from aluminium sliding doors.
High-end specification includes a bespoke SieMatic kitchen with integrated appliances, underfloor heating to both floors powered by an air-source heat pump, vaulted-ceiling master suite with full-height glazing, and three contemporary bathrooms. Four double bedrooms give flexible space for family, guests or a home office.
Practical benefits include ample off-street parking, freehold tenure and very low local crime in an affluent area. Nearby state and independent schools rated Good or better support family buyers. Buyers should note broadband speeds are slow in the area, and early reservation is needed to personalise some finishes.
This property offers immediate comfortable living with premium finishes and genuine scope to tailor final details — ideal for families seeking rural tranquillity without sacrificing modern performance and style.
5 bedroom detached house for sale in Shores Farm Lane, Hazel Grove, SK7 — £1,250,000 • 5 bed • 5 bath • 3749 ft²
4 bedroom detached house for sale in Castle Hill, Mottram St. Andrew, Macclesfield, SK10 — £1,195,000 • 4 bed • 3 bath • 2200 ft²
4 bedroom barn conversion for sale in Drakelow Gorse Farm, Yatehouse Lane, Byley, CW10 — £1,450,000 • 4 bed • 5 bath • 4884 ft²
4 bedroom detached house for sale in Buxton Road, Congleton, CW12 — £775,000 • 4 bed • 3 bath
4 bedroom detached house for sale in Pavement Lane, Mobberley, Knutsford, Cheshire, WA16 — £899,950 • 4 bed • 3 bath • 1787 ft²
4 bedroom detached house for sale in Birches Barn, Werneth Low, Gee Cross, SK14 — £1,150,000 • 4 bed • 4 bath • 4449 ft²


























































