**Standout Features:**
- Newly built, bespoke detached home with modern finishes
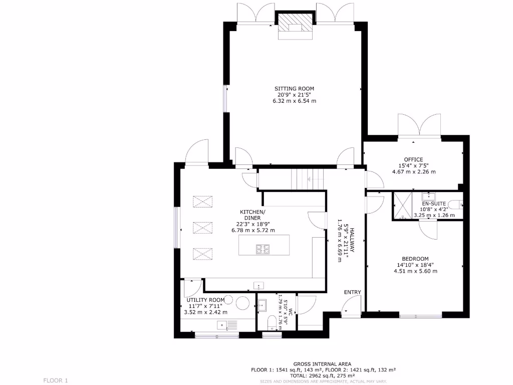
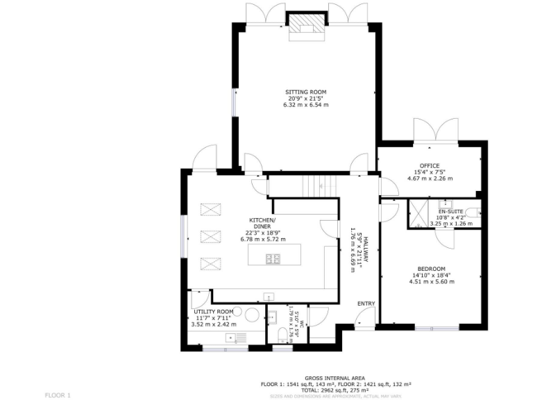
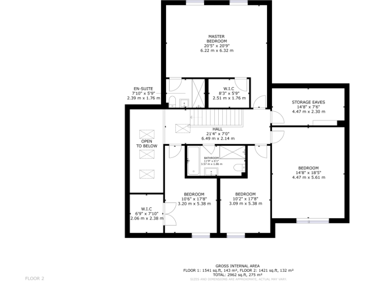
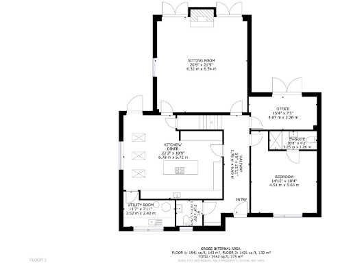
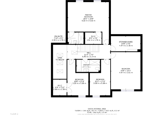
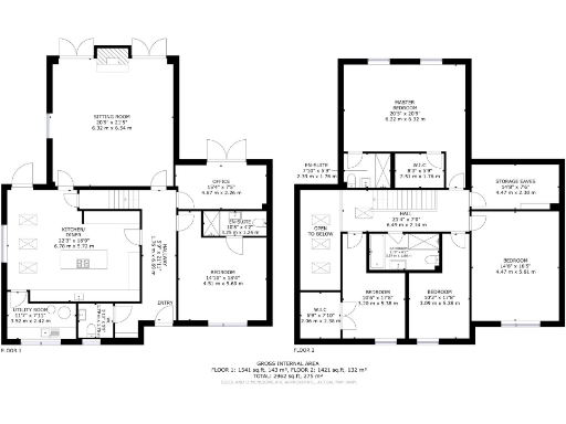
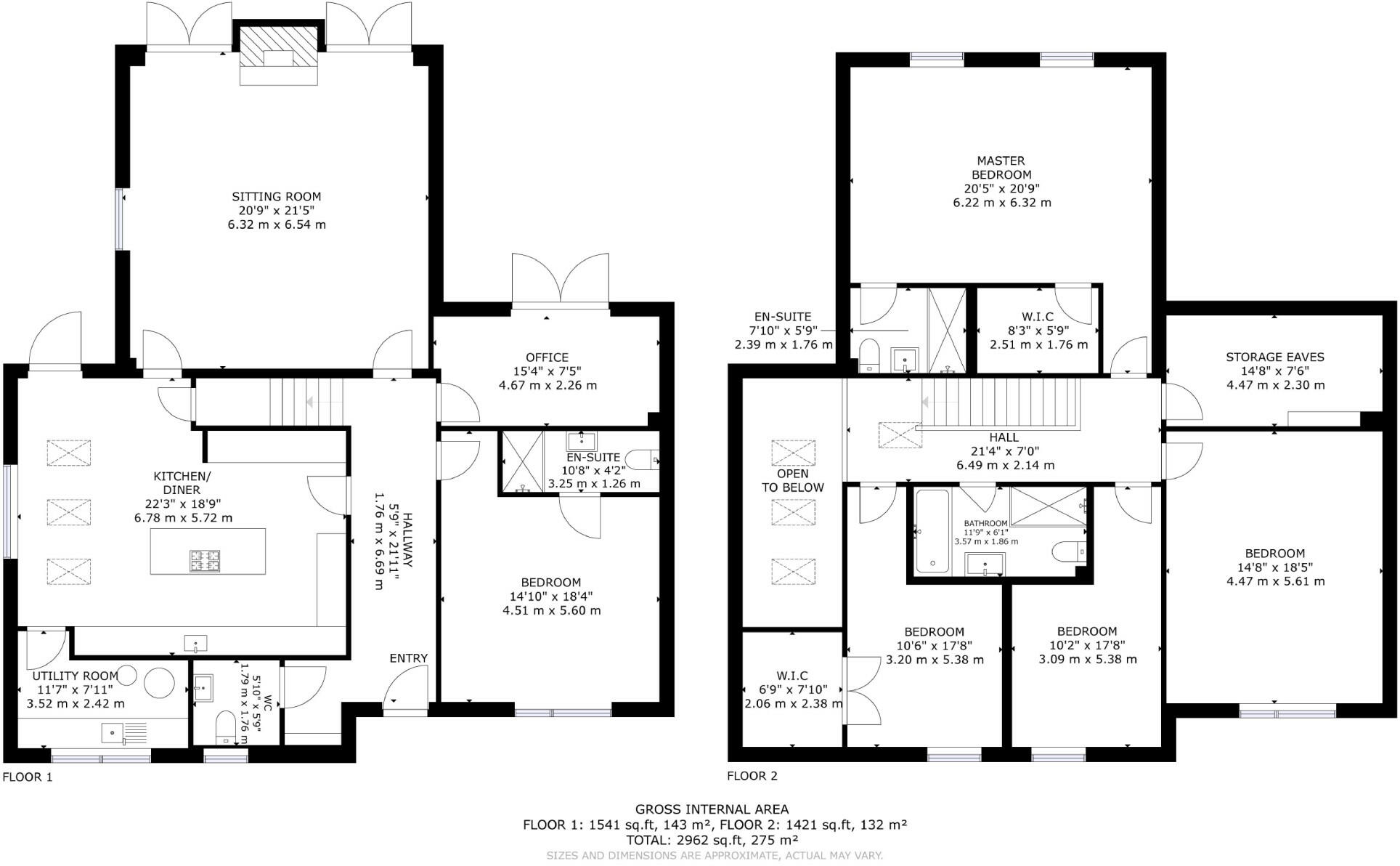
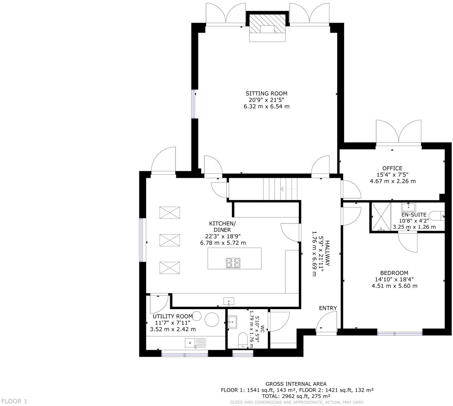
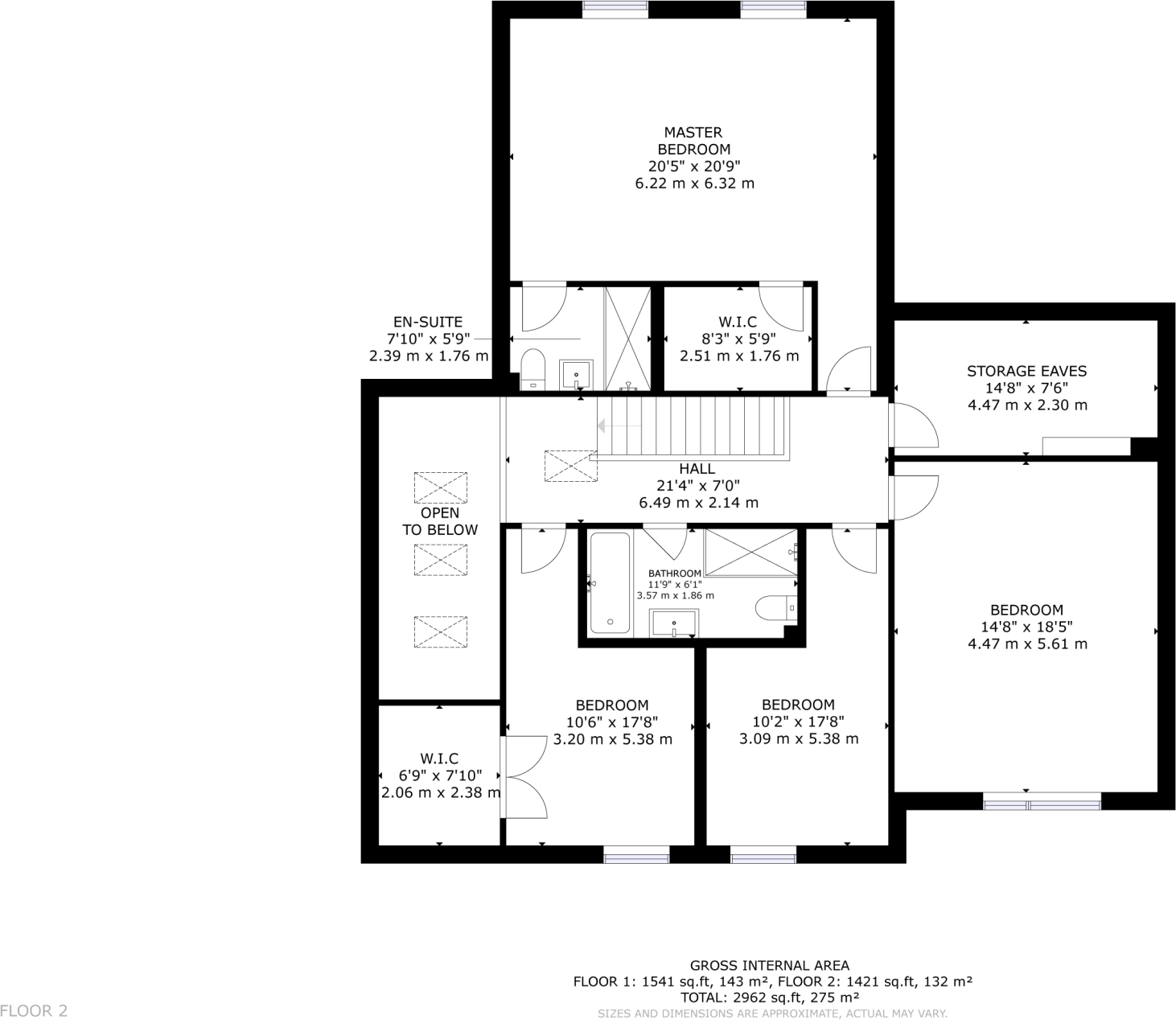
- 5 spacious bedrooms, including 2 en-suites and a ground-floor shower room
- Stunning kitchen/diner with vaulted ceiling, marble quartz countertops, and high-end appliances
- Underfloor heating, solar panels, and high EPC rating 'B'
- Flexible accommodation with a dedicated home office
- Off-street parking and a large landscaped garden, ideal for families
- Located in peaceful Temple Ewell, close to amenities and Kearsney train station
Discover the epitome of modern living at Laurel House, an exquisitely designed new build nestled within the serene village of Temple Ewell. This exceptional property offers flexible accommodation across two levels, featuring five generous bedrooms, including a sumptuous ground-floor suite perfect for guests or multi-generational living. The heart of the home showcases an impressive kitchen/diner with a vaulted ceiling, electric Velux windows, and stylish fixtures, making it an entertainer's dream.
With a strong emphasis on energy efficiency, Laurel House boasts underfloor heating, solar panels, and a remarkable EPC rating of 'B', ensuring reduced utility costs for years to come. The landscaped garden provides a tranquil retreat, perfect for families, featuring ample space for outdoor activities.
Positioned within easy reach of Kearsney train station for effortless commuting and surrounded by good local schools, this home caters perfectly to families and professionals alike. As a newly constructed, turn-key property, all you need to do is move in and start living. Don’t miss out on the unique opportunity to own this stylish and bespoke home, as properties of this caliber in such a desirable location are sure to be snapped up quickly.
4 bedroom detached house for sale in Citronella Road, Grasmere Gardens (Phase 1), Chestfield, Whitstable, Kent, CT5 — £575,000 • 4 bed • 2 bath • 1730 ft²
4 bedroom detached house for sale in Nonington ,
Kent,
CT15 4HF, CT15 — £1,085,000 • 4 bed • 3 bath • 2583 ft²
3 bedroom semi-detached house for sale in Railway Bell, Kearsney, Dover, CT16 — £375,000 • 3 bed • 2 bath • 1151 ft²
3 bedroom semi-detached house for sale in Kyle Court, Temple Ewell, Dover, CT16 — £300,000 • 3 bed • 1 bath • 882 ft²
4 bedroom semi-detached house for sale in Templeside, Temple Ewell, Dover, Kent, CT16 — £340,000 • 4 bed • 2 bath • 1274 ft²
3 bedroom semi-detached house for sale in Railway Close, Kearsney, Dover, CT16 — £375,000 • 3 bed • 2 bath • 1151 ft²






















































































































