BH9 3PH - 2 bedroom terraced house for sale in Horton Close, Bournemo…

View on Property Piper

2 bedroom terraced house for sale in Horton Close, Bournemouth, BH9

Summary - 23 HORTON CLOSE BOURNEMOUTH BH9 3PH

2 bed 1 bath Terraced

**Standout Features:**
- Immaculate presentation throughout
- Spacious lounge/dining room perfect for entertaining
- Modern separate kitchen with ample storage
- Private rear garden with patio area and Astro turf
- Off-road parking and garage in a block
- Located in the sought-after Muscliff area, near schools and amenities
- Chain-free sale, allowing for quick occupancy

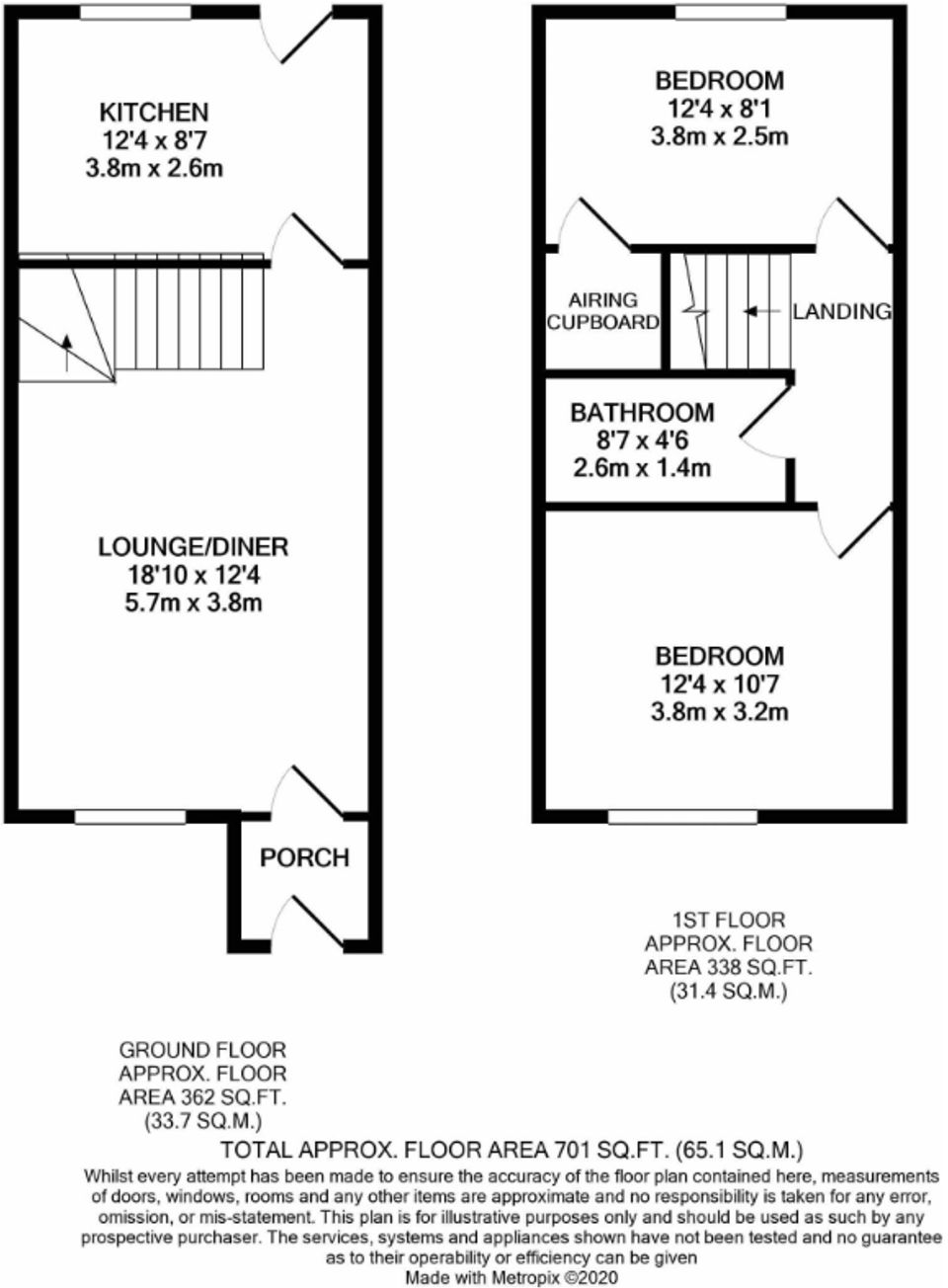
Discover this beautifully presented two-bedroom terraced house in the desirable Muscliff area, BH9 - an ideal choice for first-time buyers, families, or savvy investors. This attractive home boasts a large, light-filled lounge/dining room, perfect for relaxing and entertaining, alongside a modern kitchen equipped with ample storage and essential appliances. Step out to a private rear garden, featuring a charming patio area and low-maintenance Astro turf, creating a peaceful outdoor retreat.

Upstairs, both double bedrooms provide comfortable living spaces, while the stylish family shower room adds to the property’s modern appeal. With off-road parking and a garage in a block, convenience is at your doorstep. Situated within the catchment area for reputable local schools and just a stone's throw from shopping and transport links, this home promises a blend of comfort and community.

As a bonus, it's offered with no forward chain, ensuring a smooth transition for your next chapter. Don't miss your chance to own this lovely family home in a sought-after neighborhood; schedule your viewing today!

Property Details

Image Descriptions

Floorplan Description

Rooms

Textual Property Features

Detected Visual Features

EPC Details

Nearby Schools

Nearest Bars And Restaurants

,,,,}

Nearest General Shops

,,}

Nearest Grocery shops

,,}

Nearest Supermarkets

,,}

Nearest Religious buildings

,,}

Nearest Medical buildings

,,,}

Nearest Airports

}

Nearest Leisure Facilities

,,,,}

Nearest Tourist attractions

,,}

Nearest Train stations

,,,,}

Nearest Bus stations and stops

,,,,}

Nearest Hotels

,,}

Tags

Local Market Stats

AirBnB Data

Similar Properties

Meta

High Res Images

Compatible Images

Low res Images

Thumbnails

Raw Images

High Res Floorplan Images

Compatible Floorplan Images

Low res Floorplan Images

FloorplanImages Thumbnail

Raw Floorplan Images