Compact two-bedroom with large rear garden and parking potential.
Chain free sale, ready for refurbishment
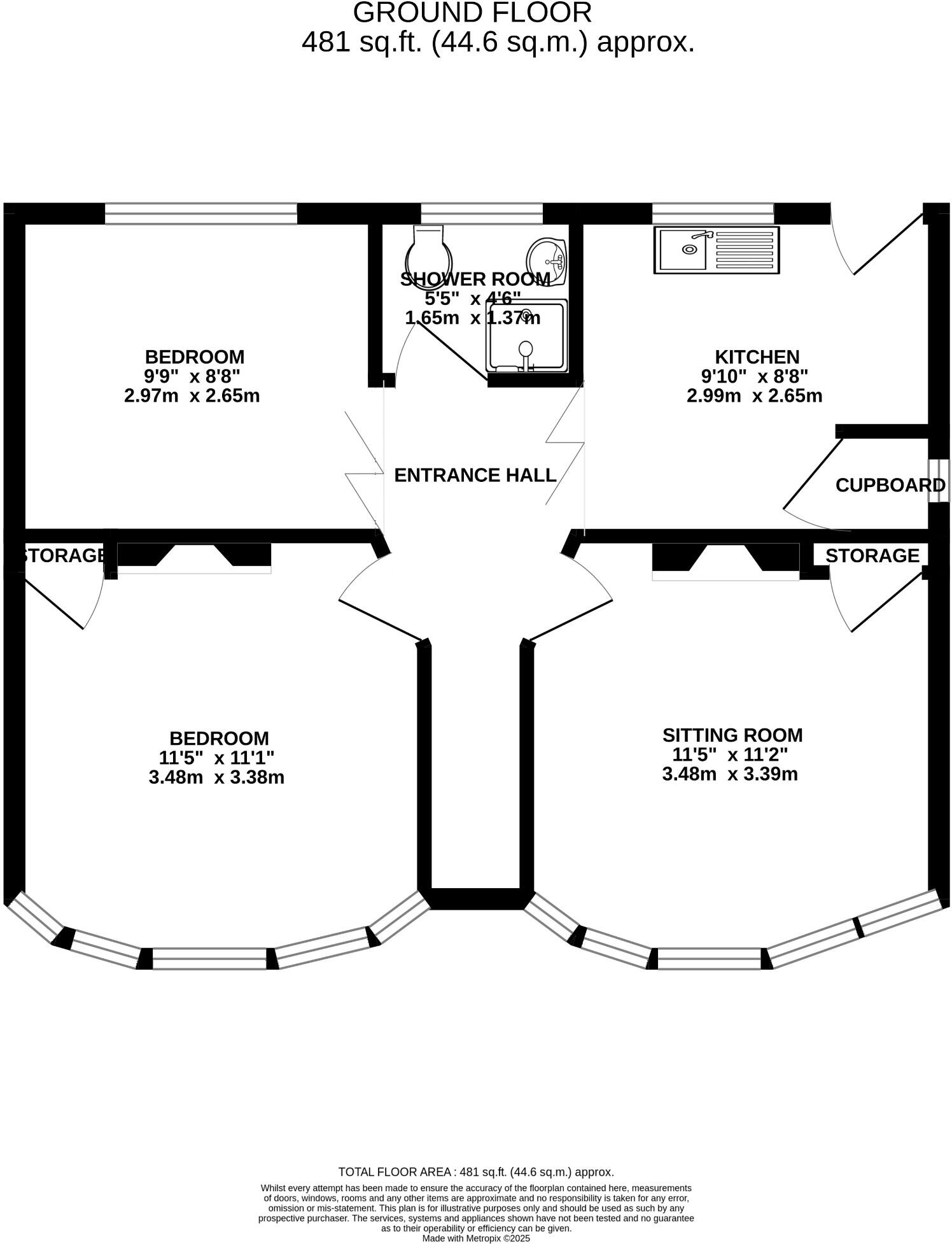
A chain-free, two-bedroom semi-detached bungalow offering a straightforward renovation project with clear scope for improvement. At around 481 sq ft, the layout is compact but practical, with a bright living room and two double bedrooms suitable for downsizers, first-time buyers, or buy-to-let investors. The property requires updating throughout, so expect works to kitchens, bathrooms and general redecoration.
The large rear garden is a standout asset: level and private, it provides space for children, gardening or extension (subject to consents). There is also potential to create off-road parking from the rear, subject to planning and party-wall permissions—useful in a busy area. Broadband speeds are fast and mobile signal is excellent, supporting home working and connectivity.
Practical points to note: the home is mid-20th century and retains dated fixtures and finishes; a full schedule of works will be needed to modernise. Council Tax Band C keeps running costs reasonable, but local crime levels are above average, which may influence some buyers. Tenure information is not provided and should be confirmed early in the purchase process.
2 bedroom semi-detached bungalow for sale in Delce Road, Rochester, ME1 — £230,000 • 2 bed • 1 bath • 478 ft²
2 bedroom semi-detached bungalow for sale in Albert Road, Chatham, ME4 — £229,000 • 2 bed • 1 bath • 475 ft²
3 bedroom bungalow for sale in Kingsgate Close, Maidstone, Kent, ME16 — £400,000 • 3 bed • 1 bath • 1118 ft²
2 bedroom bungalow for sale in Haig Avenue, ROCHESTER, Kent, ME1 — £400,000 • 2 bed • 2 bath • 948 ft²
1 bedroom semi-detached bungalow for sale in Townsend Road, Snodland, ME6 — £305,000 • 1 bed • 1 bath • 603 ft²
2 bedroom bungalow for sale in Minterne Avenue, Sittingbourne, Kent, ME10 — £300,000 • 2 bed • 1 bath • 658 ft²


































