Consent in place for two contemporary family homes close to Chelmsford.
- Double building plot with planning for two three‑bed detached homes
- Each home approximately 100 m² open‑plan layout
- Integral garages and private gardens included in proposals
- Planning permission granted: reference UTT/25/2100/FUL
- Freehold tenure; no flood risk recorded
- Fast broadband; average mobile signal and crime levels
- Hamlet location may limit immediate local footfall demand
- Build‑out costs and utility connections to be confirmed
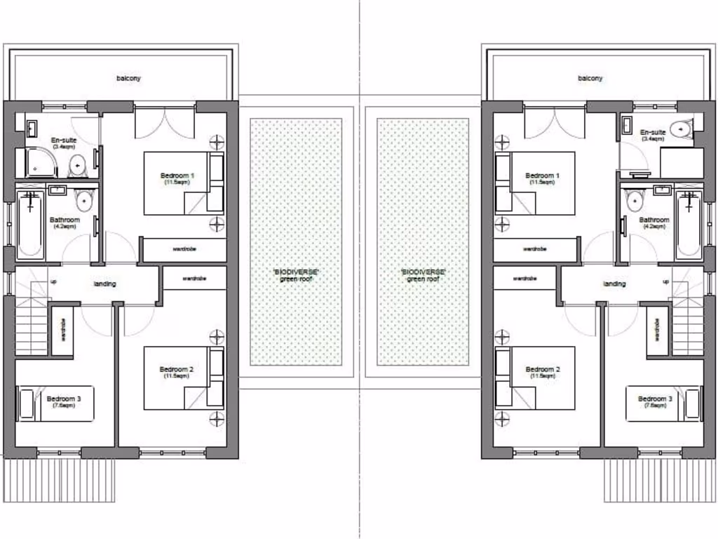
An attractive double building plot on the edge of Good Easter with planning consent for two modern three‑bedroom detached homes. Each proposed home offers approximately 100 m² of open‑plan living and an integral garage, designed for contemporary family occupancy. The site benefits from a decent plot size, fast broadband and no identified flood risk.
Planning permission (UTT/25/2100/FUL) is already in place for two dwellings, which reduces lead time for an experienced developer or self‑builder. The location is rural and peaceful, a short drive to Leaden Roding village facilities and around ten minutes from Chelmsford city centre and its mainline rail connections.
Buyers should note this is a hamlet/isolated‑dwelling location, which can limit immediate walk‑in local demand and will require full build‑out after purchase. Development costs, planning conditions and site servicing (utilities/connections) should be checked and allowed for. This plot suits a developer, small builder or investor seeking a quick start with consented modern homes in a prospering countryside area.
Plot for sale in Brick End, Broxted, CM6 2BJ, CM6 — £600,000 • 4 bed • 2 bath • 1776 ft²
Plot for sale in Great Hallingbury, Bishop's Stortford, CM22 — £1,000,000 • 1 bed • 1 bath • 2218 ft²
Land for sale in School Lane, Great Leighs, CM3 — £450,000 • 1 bed • 1 bath
Plot for sale in Coxtie Green Road, Pilgrims Hatch, Brentwood, Essex, CM14 — £1,000,000 • 1 bed • 1 bath • 6634 ft²
Land for sale in Petty Croft, Chelmsford, Essex, CM1 — £5,000 • 1 bed • 1 bath
3 bedroom detached bungalow for sale in Birch Lane, Stock, Ingatestone, CM4 — £1,000,000 • 3 bed • 1 bath • 8794 ft²






















