Spacious three-storey detached house with annexe potential near the seafront.
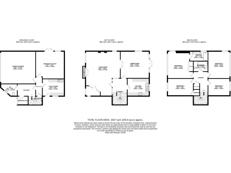
- 2,647 sq ft across three storeys, very flexible layout
- Easy to create separate annexe from lower floor
- Sea views from top of garden and upper rooms
- Integral double garage plus parking for 2–3 cars
- Two-level rear garden with lawn and paved patio
- Council Tax Band G — relatively expensive to run
- Double glazing installed before 2002; may need upgrading
- Area shows above-average crime and wider deprivation indicators
Set on a private hillside within an exclusive trio of homes, this substantial detached house offers roomy, flexible living across three floors and attractive sea views from the upper garden. At about 2,647 sq ft the layout easily accommodates dual occupation — the lower floor includes a large bedroom, substantial utility/second kitchen and direct access to the double garage, so creating an annexe is straightforward.
Practical strengths include generous parking, a sizable two-level rear garden with lawn and paved terrace, gas central heating, and fast broadband with excellent mobile signal. The property is chain free and sensibly priced for the area, making it appealing to families, multi-generational households or investors seeking rental or dual-occupancy potential.
Buyers should note a few factual drawbacks: the home dates from the 1980s, the double glazing was installed before 2002 and may require upgrading, and Council Tax is band G which is relatively expensive. The local area shows higher-than-average crime statistics and wider-area deprivation indicators; however the immediate site is tucked away, private and quieter than surrounding streets.
Overall this is a rare, private hillside home with genuine scope for flexible use and potential improvement, particularly for purchasers wanting an annexe or two-household arrangement close to town and the seafront.
4 bedroom detached house for sale in St. Peters Avenue, Weston super Mare - BIG PLOT & SEA VIEWS , BS23 — £485,000 • 4 bed • 2 bath • 1975 ft²
3 bedroom detached house for sale in St. Johns Close, Weston-Super-Mare, BS23 — £575,000 • 3 bed • 2 bath • 1507 ft²
3 bedroom semi-detached house for sale in Edgecombe Avenue, Worle - CIRCA 1500 sq ft, BS22 — £415,000 • 3 bed • 3 bath • 1676 ft²
4 bedroom house for sale in Cecil Road, Weston-Super-Mare, BS23 — £625,000 • 4 bed • 2 bath • 2247 ft²
5 bedroom detached house for sale in Trinity Road, Weston-Super-Mare, BS23 — £595,000 • 5 bed • 2 bath • 2499 ft²
4 bedroom detached house for sale in Jubilee Path, Weston-Super-Mare - SECLUDED SETTING, BS22 — £700,000 • 4 bed • 2 bath • 2403 ft²






























































































































































