Affordable two-bedroom Victorian terrace — ideal first home or buy-to-let..
Chain-free freehold mid-terrace Victorian property
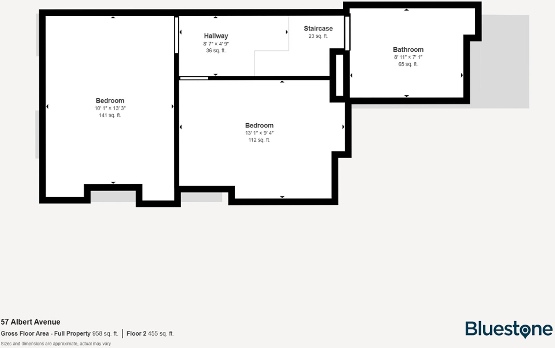
Chain-free mid-terrace Victorian home offered freehold — an affordable entry into homeownership or a rental investment in Newport. The property provides two double bedrooms, an open living/dining area and a separate modern bathroom within c.807 sq ft, arranged over two storeys.
Practical positives include easy access to the M4 corridor, proximity to well-regarded local schools, fast broadband and excellent mobile signal. The house has gas central heating with a boiler and radiators and double glazing (installation date unknown). EPC rating D.
Buyers should note the wider area indicators: high local crime, very deprived area classifications and a hampered-aspiration neighbourhood profile. The plot is small and there is no garage; the building dates from before 1900 and external walls likely lack modern insulation, so thermal improvement and general updating may be needed.
This property suits first-time buyers wanting an affordable, chain-free purchase or investors seeking a straightforward let with scope to add value through targeted refurbishment. Viewings recommended to assess condition and potential for improvement in person.
2 bedroom terraced house for sale in Collier Street, Newport, NP19 — £135,000 • 2 bed • 1 bath • 844 ft²
2 bedroom terraced house for sale in 2 Double Bed. Refurbished & Extended. Feering Street, Newport, NP19 — £150,000 • 2 bed • 1 bath • 826 ft²
2 bedroom terraced house for sale in Graham Street, Newport, NP20 — £155,000 • 2 bed • 1 bath • 826 ft²
2 bedroom terraced house for sale in Magor Street, Newport, NP19 — £150,000 • 2 bed • 1 bath • 629 ft²
2 bedroom terraced house for sale in Lambert Street, Newport, NP20 — £190,000 • 2 bed • 1 bath
2 bedroom terraced house for sale in Church Street, Rogerstone, Newport, NP10 — £190,000 • 2 bed • 1 bath


































































































