Auction lot with planning for five flats — ideal for investor redevelopment..
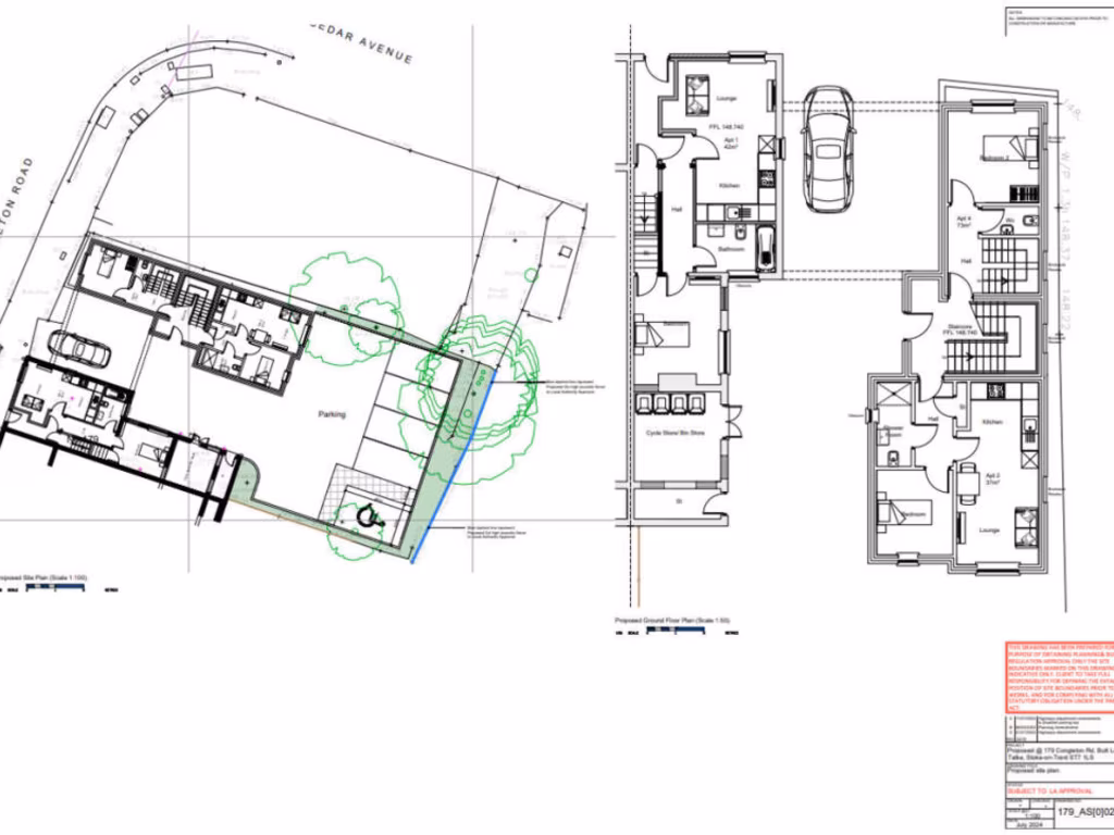
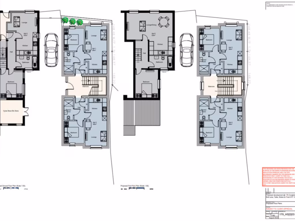
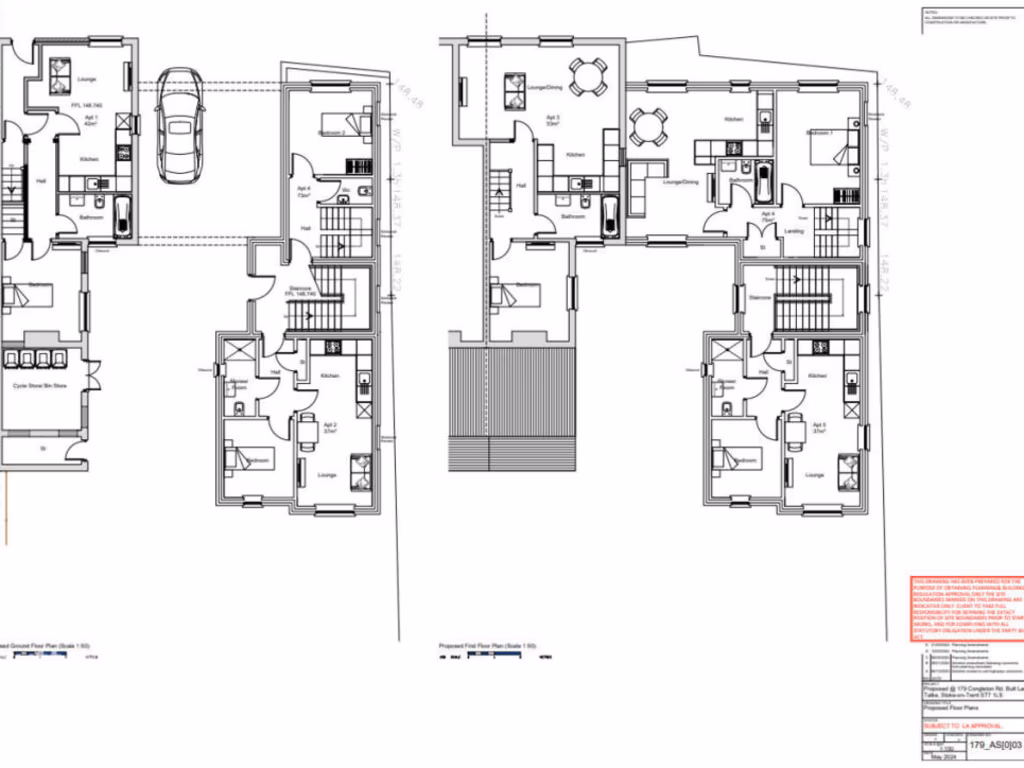
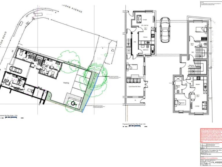
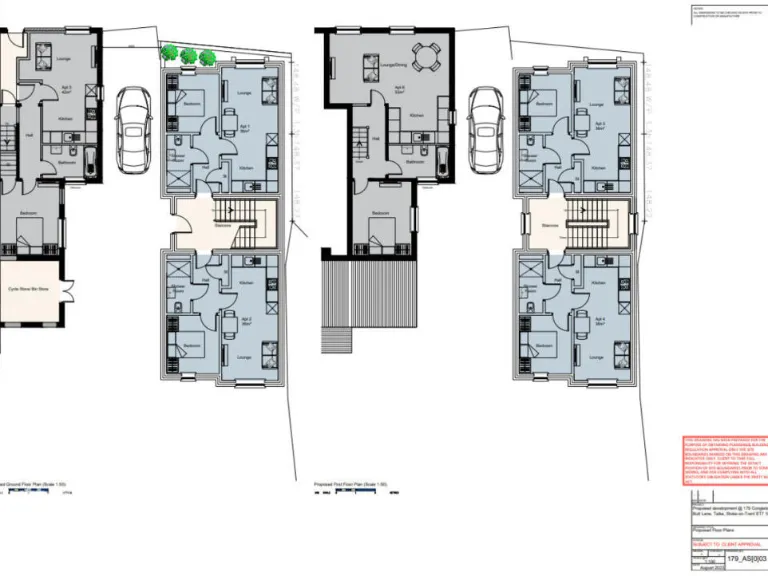
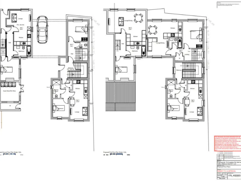
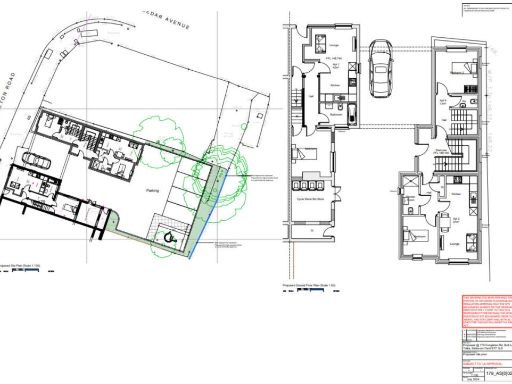
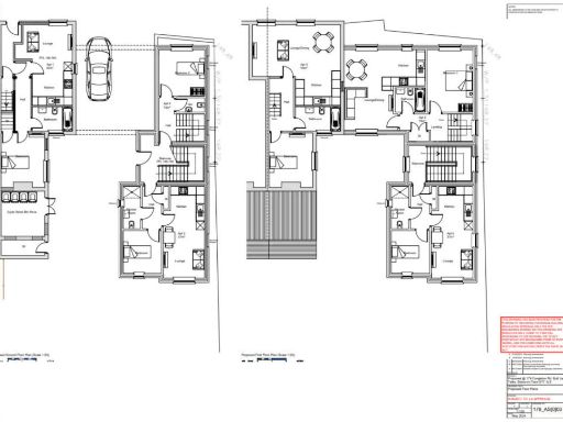
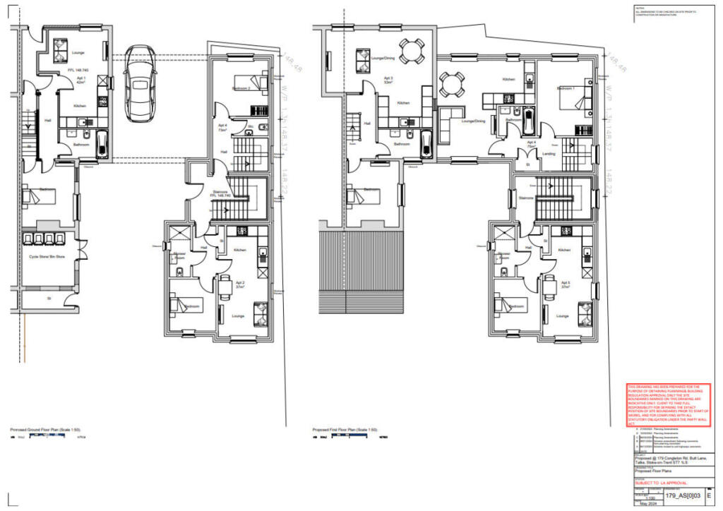
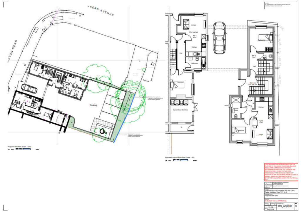
- Planning permission granted to create five self-contained apartments (ref 24/00245/FUL)
- Sold at auction; buyer’s admin fee £1,800 inc VAT applies
- Requires full renovation: heating, electrics, insulation and general repairs
- Four bedrooms and one bathroom; current layout low yield without conversion
- Freehold on a large plot with Victorian period exterior features
- Solid brick walls likely uninsulated — retrofit costs expected
- Main heating: room heaters (anthracite); upgrade to mains systems needed
- Located in an endeavouring social-renter area; rental demand likely steady
An end-of-terrace Victorian property offered at auction with clear redevelopment potential. The house requires full renovation but benefits from granted planning permission (ref: 24/00245/FUL) to convert into five self-contained apartments, making it a strong prospect for developers or buy-to-let investors seeking added value.
Set on a large plot in Talke (ST7 1LS), the property is freehold and of solid-brick construction typical of 1900–1929 builds. Current accommodation provides four bedrooms and one bathroom across approximately 1,152 sq ft, with period external features and a garden. Heating is basic (room heaters, anthracite) and the walls are likely uninsulated — substantial upgrade work will be needed to meet modern standards.
Important purchase considerations: the lot is sold at public auction, subject to a buyer’s administration fee of £1,800 (inc VAT) and legal pack terms — bidders must register and accept auction conditions. The property is marketed as a renovation project; structural, electrics and heating works should be budgeted for. With fast broadband, nearby schools rated Good, and local amenities, the site suits a focused redevelopment plan aimed at rental demand.
2 bedroom end of terrace house for sale in Fell Street, Stoke-On-Trent, ST6 1JT, ST6 — £86,000 • 2 bed • 1 bath • 786 ft²
3 bedroom end of terrace house for sale in Flatts Road, Stoke-On-Trent, ST6 8JB, ST6 — £80,000 • 3 bed • 1 bath
2 bedroom terraced house for sale in Leigh Street Burslem ST6 1BE, ST6 — £41,000 • 2 bed • 1 bath
2 bedroom terraced house for sale in Davis Street, Stoke-On-Trent ST4 7AD, ST4 — £25,000 • 2 bed • 1 bath
2 bedroom end of terrace house for sale in Athlone Street, Smallthorne, Stoke-On-Trent ST6 1PL, ST6 — £69,000 • 2 bed • 1 bath • 711 ft²
2 bedroom terraced house for sale in Robert Heath Street, Stoke-On-Trent ST6 1LH, ST6 — £69,000 • 2 bed • 1 bath • 733 ft²














































































