**Standout Features:**
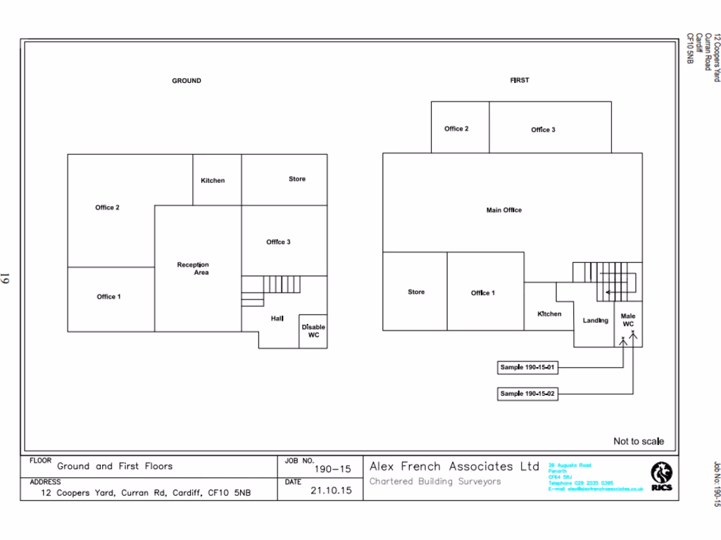
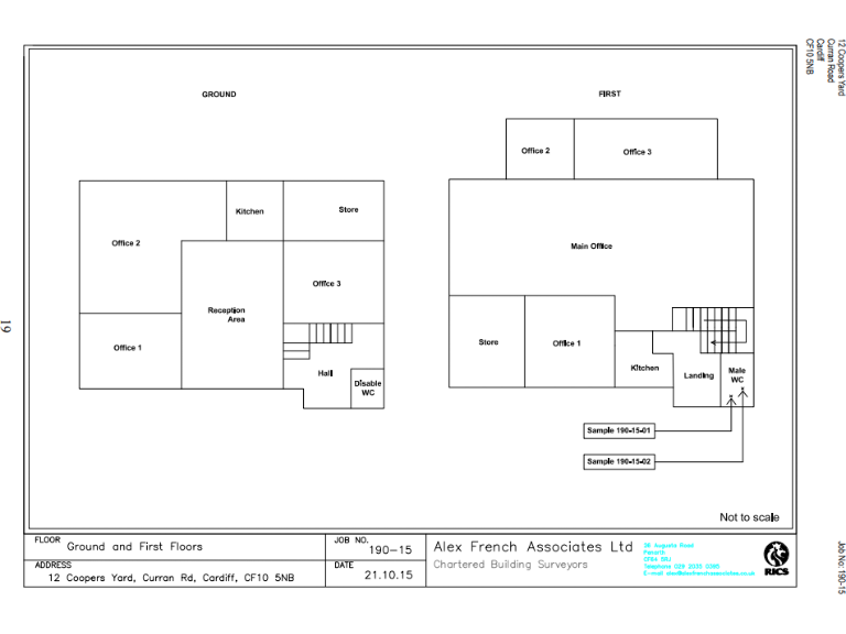
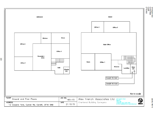
- Two-storey self-contained office building (2,454 sq. ft)
- Located in a rapidly regenerating area near Cardiff City Centre
- Immediate availability with 8 dedicated car parking spaces
- Equipped with cooling units, gas central heating, and full kitchen and restroom facilities on both floors
- Flexible options for lease or freehold disposal
**Summary:**
Discover an exceptional opportunity to own a modern, generously-sized office space at 12 Coopers Yard, Cardiff—perfect for businesses looking to establish themselves in a thriving area. With 2,454 square feet of well-maintained accommodation, this two-storey property features a blend of open-plan and cellular offices bathed in natural light through its large windows. The combination of contemporary design elements and essential amenities including kitchens, WCs, gas central heating, and cooling units creates an inviting and functional work environment.
Positioned just a short stroll from Cardiff Central Rail and Bus Stations, and minutes from major roadways, this office is ideal for both accessibility and convenience. The vibrant surrounding neighborhood is undergoing significant redevelopment, with new residential and commercial projects bringing fresh opportunity and growth potential. Investors and business owners alike will appreciate the extensive parking capability and the prospect of future renovations or extensions tailored to their needs.
While the area has a high crime rate and is marked as very deprived, the immense potential for growth and regeneration should not be overlooked. Act quickly to capitalize on this unique offering in a city that’s on the rise!
Office for sale in 1, Coopers Yard, Unit 1, Coopers Yard, Cardiff, CF10 5NB, CF10 — £325,000 • 1 bed • 1 bath • 2596 ft²
Office for sale in Unit 9, Columbus Walk, Unit 9, Columbus Walk, Cardiff, CF10 4BY, CF10 — £225,000 • 1 bed • 1 bath • 2050 ft²
Office for sale in 21 Windsor Place, Cardiff, CF10 3BY, CF10 — £650,000 • 1 bed • 1 bath • 2477 ft²
Office for sale in 9 Raleigh Walk, Brigantine Place, Cardiff, CF10 4LN, CF10 — POA • 1 bed • 1 bath • 2089 ft²
Office for sale in 25 Park Place, Cardiff CF10 3BA, CF10 — £650,000 • 1 bed • 1 bath • 4346 ft²
Office for sale in 3 Radnor Court, 256 Heol Ddwyreiniol Y Bont-Faen, Caerdydd, CF5 1GZ, CF5 — £250,000 • 1 bed • 1 bath • 1846 ft²














