**Standout Features:**
- Victorian detached home in a highly sought-after conservation area
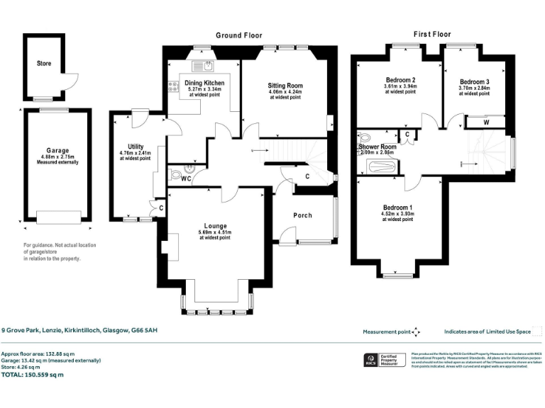
- Spacious 1,430 sq. ft. layout with large windows and traditional architectural details
- Three bedrooms, one bathroom, and multiple reception rooms
- South-facing garden and detached garage
- Convenient access to local amenities and Lenzie Railway Station
**Potential Downsides:**
- Requires modernization and renovation
- Higher council tax band (Band G)
- Area classed as deprived
Discover a timeless Victorian detached home nestled in the charming and affluent community of G66 5AH. This spacious property offers 1,430 sq. ft. of living space, featuring traditional period details like high ceilings and large windows that invite natural light. The home showcases a welcoming entrance with a portico leading into a versatile reception hall, a cozy lounge with a seven-frame box bay window, a separate sitting room, and a dining kitchen equipped with a utility area for added convenience.
With three bedrooms, ample storage, and a delightful south-facing garden, this residence is perfect for families or couples seeking a lifelong home. Although it requires some modernization, this rare opportunity allows you to infuse your personal touch into a character-rich property. Plus, enjoy the advantages of nearby local amenities, including shops and public transport, making commuting a breeze.
Don't miss your chance to own this charming home in a desirable location, complete with its own detached garage and easy access to the community's central park. With renovation potential and spacious living areas, this unique find is ideal for those ready to invest in creating their dream home. Act now!
4 bedroom detached house for sale in Spruce Drive, Lenzie, Kirkintilloch, Glasgow, G66 — £340,000 • 4 bed • 1 bath • 1193 ft²
5 bedroom detached house for sale in Union Manse, Larch Avenue, Lenzie, G66 — £465,000 • 5 bed • 2 bath • 2282 ft²
3 bedroom apartment for sale in Heath Avenue, Lenzie, G66 — £425,000 • 3 bed • 1 bath • 1250 ft²
4 bedroom detached house for sale in Stuart Drive, Bishopbriggs, Glasgow, East Dunbartonshire, G64 — £450,000 • 4 bed • 2 bath • 2059 ft²
4 bedroom detached house for sale in Langtree Avenue, Giffnock, Glasgow, G46 — £795,000 • 4 bed • 2 bath • 2373 ft²
4 bedroom semi-detached house for sale in 53 Roman Road, Bearsden, G61 2SG, G61 — £345,000 • 4 bed • 2 bath • 1636 ft²














































































































































































