Well-sized three-bedroom home with garden and strong transport links.
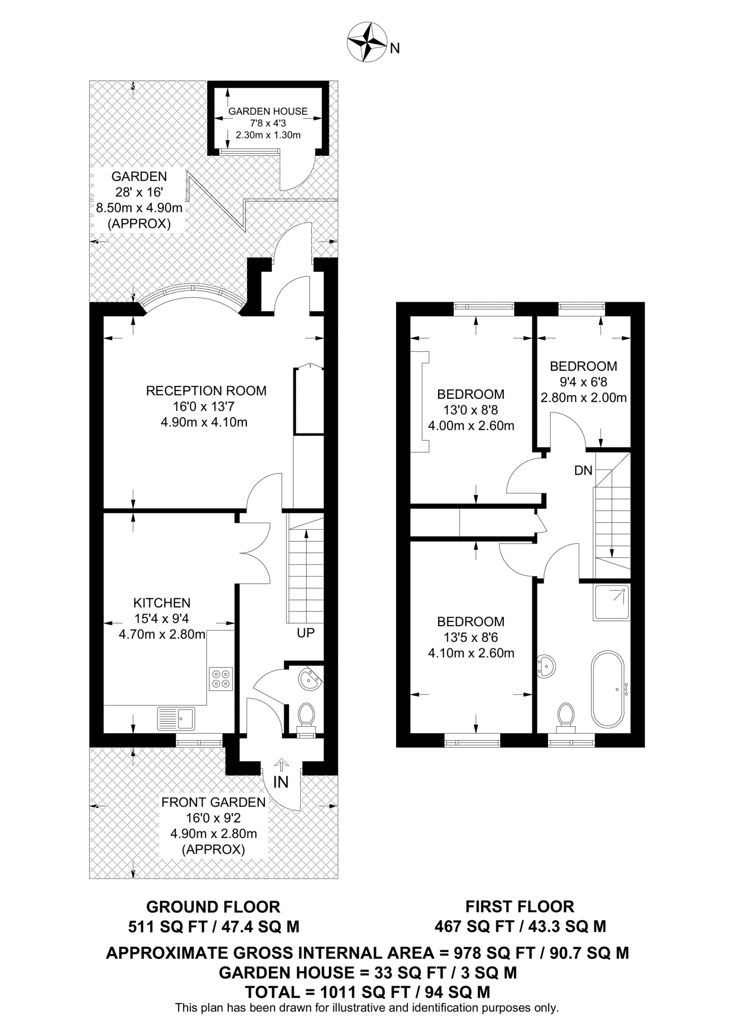
- Three double bedrooms across two floors, versatile family layout
- Generous reception room and separate eat-in kitchen
- Private rear garden plus gated front yard
- Freehold tenure; total size approx 1,011 sq ft
- Double glazing installed after 2002; mains gas heating
- Single bathroom for three bedrooms (potential bottleneck)
- Area classed as very deprived; consider local market factors
- Very low flood risk, fast broadband, excellent mobile signal
This mid-20th-century terraced house offers comfortable family living in Custom House, Beckton. Arranged over two floors, the layout centres on a generous reception room, separate eat-in kitchen and three double bedrooms — a straightforward plan that suits everyday family life and flexible working-from-home needs. A private rear garden and gated front yard extend the usable space outdoors.
The property is presented well, with double glazing fitted after 2002 and mains gas central heating throughout. Practical benefits include freehold tenure, very low flood risk, fast broadband and excellent mobile signal — useful for commuters and growing families who need reliable connectivity.
Buyers should note a single bathroom serves all three bedrooms, and the surrounding ward is classified as very deprived, which may affect long-term resale in some market conditions. The house was constructed in the late 1960s–1970s, so while well presented, some buyers may wish to update fittings or finishes to personal taste.
Local amenities and schools are nearby, including a highly rated primary school and several good secondaries, plus frequent buses and easy links into the city. The combination of size (about 1,011 sq ft), private garden and freehold tenure makes this a practical family home with scope for modest refurbishment to increase value.
3 bedroom terraced house for sale in Alexandra Road, East Ham, London, E6 — £400,000 • 3 bed • 1 bath • 1286 ft²
2 bedroom terraced house for sale in Fleetwood Close, Beckton, London, E16 — £450,000 • 2 bed • 1 bath • 927 ft²
3 bedroom detached house for sale in Newham Way, Plaistow, London, E16 — £550,000 • 3 bed • 2 bath • 1000 ft²
3 bedroom terraced house for sale in Hide, Windsor Park, London, E6 — £450,000 • 3 bed • 1 bath • 765 ft²
3 bedroom terraced house for sale in South Molton Road, London, E16 — £585,000 • 3 bed • 2 bath • 1032 ft²
3 bedroom house for sale in Palmer Road, Plaistow, London, E13 — £475,000 • 3 bed • 1 bath • 810 ft²














































































































