Chain-free three bed with planning support and convenient transport links.
Recently completely refurbished throughout, ready to move into
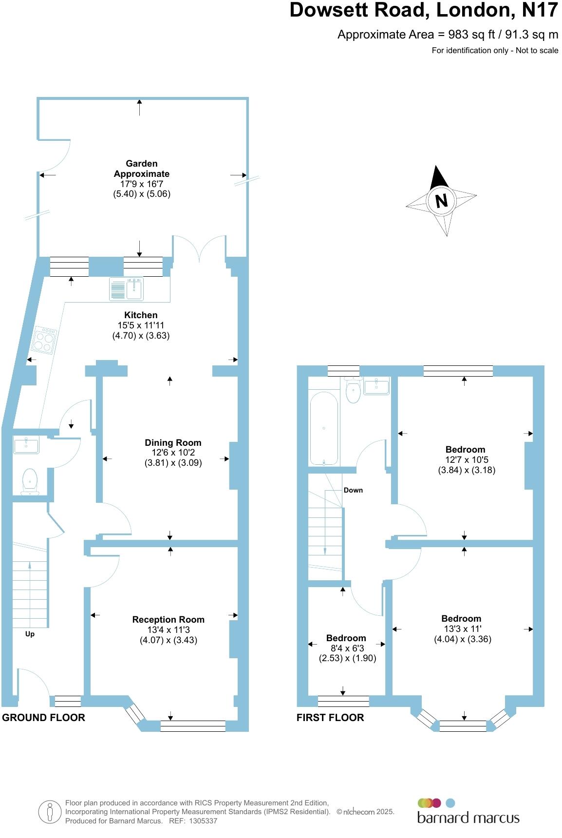
Bright, recently refurbished three-bedroom end-terrace on a tree-lined street in N17, ready to move into. The ground floor offers an open-plan living/dining space with a contemporary fitted kitchen, bay-fronted reception and a downstairs WC.
The property sits close to Tottenham Hale (0.5 miles) and Bruce Grove station (0.3 miles), with local shops, schools and good transport links nearby. There is off-street parking potential to the rear and a small garden; loft extension potential could create a fourth bedroom (subject to consents).
Planning permission for change of use and conversion has been supported under Haringey reference HGY/2024/2893, presenting options for owner-occupiers or investors. Solid brick Edwardian construction retains period character while the interior is modernised with double glazing and new boiler and radiators.
Buyers should note the council tax and EPC are recorded under a previous commercial status and the property’s walls are assumed uninsulated. The area is relatively deprived, so purchasers should verify local services and future plans with the borough if these factors affect plans or resale expectations.
3 bedroom terraced house for sale in Hanover Road, London, N15 — £600,000 • 3 bed • 2 bath • 1126 ft²
4 bedroom terraced house for sale in Dowsett Road, London, N17 — £770,000 • 4 bed • 2 bath • 1312 ft²
2 bedroom terraced house for sale in Rosebery Avenue, London, N17 — £595,000 • 2 bed • 1 bath • 921 ft²
4 bedroom terraced house for sale in Thackeray Avenue, Tottenham N17 — £750,000 • 4 bed • 2 bath • 1378 ft²
3 bedroom terraced house for sale in Seymour Avenue, London, N17 — £535,000 • 3 bed • 1 bath • 1141 ft²
5 bedroom terraced house for sale in Mount Pleasant Road, London, N17 — £750,000 • 5 bed • 1 bath • 1638 ft²


















































