Ready-to-move three-bed featuring summerhouse, driveway parking and low council tax.
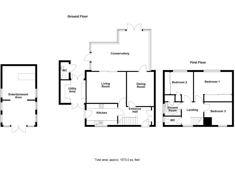
Three bedrooms; newly renovated throughout
Large L-shaped conservatory extends living space
Modern kitchen with quartz worktops and integrated appliances
Landscaped rear garden with pergola and summerhouse/bar
Driveway parking and electric car charging point
Single shower room with separate WC (no en-suite)
Gas central heating, double glazing, fast broadband
Located near shops, good schools and frequent buses
This immaculately presented three-bedroom semi offers ready-to-move accommodation for families seeking space and low-maintenance living. Ground floor living flows from a cosy living room with inset log burner into a generous L-shaped conservatory that floods the home with light and extends entertaining space. The kitchen has modern fittings, quartz worktops and integrated appliances; a practical side lobby/utility adds everyday convenience.
Outside the landscaped rear garden is a key feature: a large paved patio with pergola, newly planted trees and a substantial summerhouse fitted as a bar/entertaining room. Off-street parking is provided on the gated driveway and an electric car charging point is installed. The property benefits from gas central heating, double glazing and a newly renovated shower room with separate WC.
Situated on a popular residential development, the house is within easy reach of shops, good primary and secondary schools and frequent buses to Shrewsbury town centre. Council Tax is modest and broadband and mobile signals are strong.
Drawbacks to note: there is a single shower room and separate WC rather than an en-suite; while the house is newly renovated, buyers seeking open-plan ground-floor living may prefer reconfiguration. Local crime levels are average.
3 bedroom semi-detached house for sale in Upper Road, Shrewsbury, Shropshire, SY3 — £375,000 • 3 bed • 1 bath • 994 ft²
3 bedroom semi-detached house for sale in Sutton Way, Shrewsbury, SY2 — £259,995 • 3 bed • 1 bath • 1072 ft²
3 bedroom semi-detached house for sale in 68 Frith Close, Shrewsbury, SY2 5XW, SY2 — £267,500 • 3 bed • 2 bath • 877 ft²
3 bedroom semi-detached house for sale in 54 Mytton Oak Road, Shrewsbury SY3 8UH, SY3 — £485,000 • 3 bed • 2 bath • 1303 ft²
3 bedroom semi-detached house for sale in Stersacre, Harlescott, Shrewsbury, Shropshire, SY1 — £215,000 • 3 bed • 1 bath • 851 ft²
3 bedroom semi-detached house for sale in 44 Belvidere Avenue, Shrewsbury, SY2 5PA, SY2 — £429,950 • 3 bed • 1 bath • 1395 ft²


































































































