**Standout Features:**
- Spacious two-bedroom first-floor retirement apartment.
- Located close to Alderley Edge centre with shops and amenities.
- Secure 24-hour Careline system for peace of mind.
- Access to an inviting Owners Lounge and beautiful communal grounds.
- Private off-street parking available.
**Summary:**
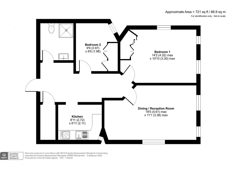
Discover comfort and security in this charming two-bedroom first-floor retirement apartment, situated in the desirable Alderley Edge. This residence boasts a generous living room with an attractive outlook over landscaped gardens, perfect for tranquil living. The well-appointed kitchen features ample storage with built-in appliances, making daily life convenient. Both bedrooms offer built-in wardrobes and versatile space for personal use—ideal for guests, a study, or hobbies.
While the property is presented in good condition, it's important to note it has a short lease of 66 years left, which may limit financing options. The service charge is slightly above average at £4,176.60 per annum, covering essential services and maintenance. Enjoy a peaceful lifestyle in a vibrant community tailored for the over-60s, with easy access to local amenities and transport links.
This apartment is a unique opportunity for retirees seeking an engaging, secure environment surrounded by nature—don’t miss your chance to experience this exclusive property in a sought-after location!
2 bedroom apartment for sale in Brook Lane, Alderley Edge, SK9 — £160,000 • 2 bed • 1 bath • 667 ft²
2 bedroom flat for sale in Brook View, Brook Lane, Alderley Edge, Cheshire, SK9 — £160,000 • 2 bed • 1 bath • 725 ft²
1 bedroom retirement property for sale in Brook Lane, Alderley Edge, SK9 — £100,000 • 1 bed • 1 bath • 669 ft²
2 bedroom flat for sale in Brook Lane, Alderley Edge, Cheshire, SK9 — £130,000 • 2 bed • 1 bath • 642 ft²
1 bedroom flat for sale in Brook Lane, Alderley Edge, Cheshire, SK9 — £165,000 • 1 bed • 1 bath • 662 ft²
2 bedroom apartment for sale in Brook Lodge, Schools Hill, Cheadle, SK8 — £250,000 • 2 bed • 2 bath • 777 ft²


























































































