Auction lot with planning for a five-bedroom HMO and current rental income.
- Let producing £12,000 pa, approx. 12% initial gross yield
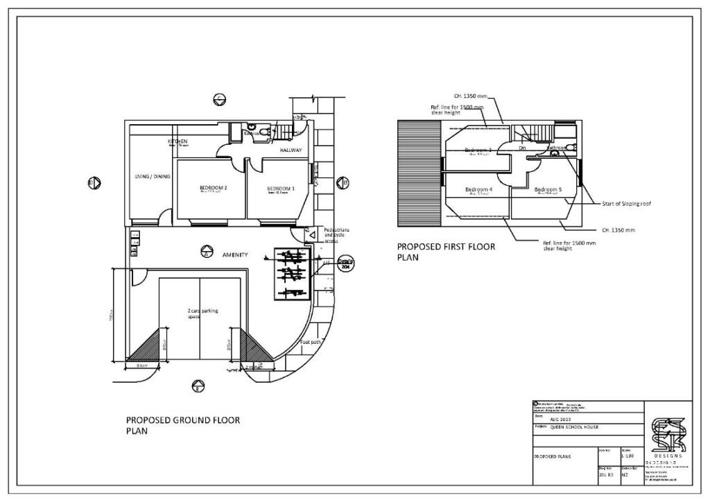
- Full planning for five-bed HMO with off-street parking (ref 23/0342)
- Two storeys with enclosed rear yard and small plot
- Traditional brick and stone construction under pitched tiled roof
- Located in very deprived area with very high local crime levels
- Very slow broadband despite excellent mobile phone signal
- Sale by public auction; buyer's premium payable on exchange
- Freehold stated; tenure to be verified in legal pack
A centrally located two-storey brick property offered for sale by public auction with current office income and clear development upside. It is let to provide a steady income of £12,000 per year (gross), producing an initial gross yield around 12% at the guide price. Full planning permission has been granted to convert the building into a five-bedroom HMO with off-street parking (Ref: Newport City Council 23/0342), creating immediate rental uplift potential.
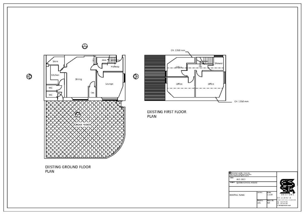
The building is a former schoolhouse with straightforward accommodation: two ground-floor offices, kitchen and WC, plus three first-floor offices and a shower room, plus an enclosed rear yard. The structure appears sound with traditional brick and stone under a pitched tile roof, and internal spaces described as in reasonable order — suitable for conversion or continued use as offices subject to verification.
Important considerations: the property sits in a very deprived, very high-crime neighbourhood with slow broadband despite excellent mobile signal, factors that will affect lettings and management. The plot is small and the outdoor space is limited. The sale is subject to auction conditions including a buyer’s premium (1.2%, minimum £1,200 including VAT), an agreed reserve price within ±10% of the guide price, and freehold title to be confirmed in the legal pack.
This opportunity suits investors or developers who can manage refurbishment, landlord responsibilities and local letting dynamics. The planning consent reduces conversion risk, but buyers should review the legal pack, confirm services and condition, and allow for retrofit costs and neighbourhood-driven rental assumptions before bidding at auction.
5 bedroom house of multiple occupation for sale in 3 Powells Place, Newport, Gwent, NP20 1EL, NP20 — £239,000 • 5 bed • 1 bath • 1679 ft²
1 bedroom mixed use property for sale in 73 & 73A Albert Avenue, Newport, Gwent, NP19 8FF, NP19 — £147,000 • 1 bed • 1 bath
5 bedroom block of apartments for sale in 66 Stow Hill, Newport, Gwent, NP20 4DW, NP20 — £185,000 • 5 bed • 4 bath
4 bedroom semi-detached house for sale in Phillip Street, Newport, NP19 — £170,000 • 4 bed • 2 bath • 818 ft²
3 bedroom terraced house for sale in 31 Bailey Street, Newport, Gwent, NP20 4DJ, NP20 — £105,000 • 3 bed • 1 bath
Commercial development for sale in 3 Commercial Street, Newport, NP20 1HE, NP20 — £45,000 • 1 bed • 1 bath


















































































