Chain-free four-bedroom family home with garage and garden in North Abingdon.
No onward chain — ready for a quick sale
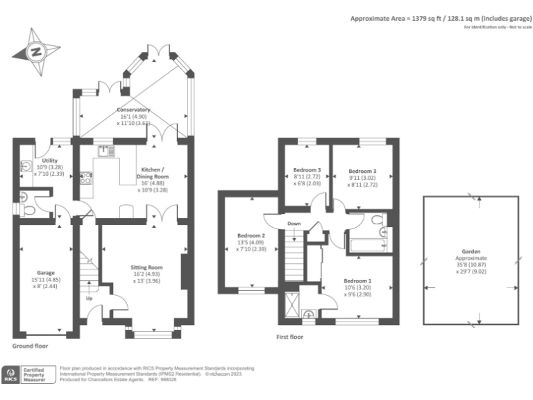
This four-bedroom detached house in North Abingdon offers a practical family layout with no onward chain. The bay-fronted lounge, 16ft conservatory and east-facing rear garden provide comfortable living and natural light. Off-street parking plus an integrated garage add useful storage and practicality for everyday family life.
The kitchen and cabinetry are dated and would benefit from modernization to suit contemporary tastes; the property’s overall living space is modest at around 1,065 sq ft for four bedrooms. Council tax is above average, which should be factored into running costs.
Built around the turn of the century and fitted with double glazing and mains gas central heating, the home is ready to occupy while offering scope to update and add value. Local amenities, very low crime levels and fast broadband make it well suited to families seeking a comfortable suburban base with good transport links and green space nearby.
School options are mixed nearby (several good secondaries and a primary rated 'Requires improvement'), so buyers with young children should check specific school places. Overall, this chain-free detached home is a sensible choice for families or buyers wanting a manageable renovation project in a sought-after Abingdon neighbourhood.
4 bedroom detached house for sale in Abingdon, Oxfordshire, OX14 — £525,000 • 4 bed • 2 bath • 1335 ft²
4 bedroom detached house for sale in Alexander Close, Abingdon, OX14 — £475,000 • 4 bed • 1 bath • 1087 ft²
4 bedroom detached house for sale in Rainbow Way, Abingdon, OX14 — £350,000 • 4 bed • 1 bath • 1033 ft²
4 bedroom semi-detached house for sale in South Avenue, Abingdon, OX14 — £575,000 • 4 bed • 2 bath • 1498 ft²
4 bedroom semi-detached house for sale in Elizabeth Avenue, Abingdon, OX14 — £425,000 • 4 bed • 1 bath • 969 ft²
4 bedroom detached house for sale in Foster Road, Abingdon, OX14 — £580,000 • 4 bed • 3 bath • 1559 ft²










































