Substantial renovated country house with 14 acres of private parkland.
Detached Victorian lodge with six bedrooms and five bathrooms
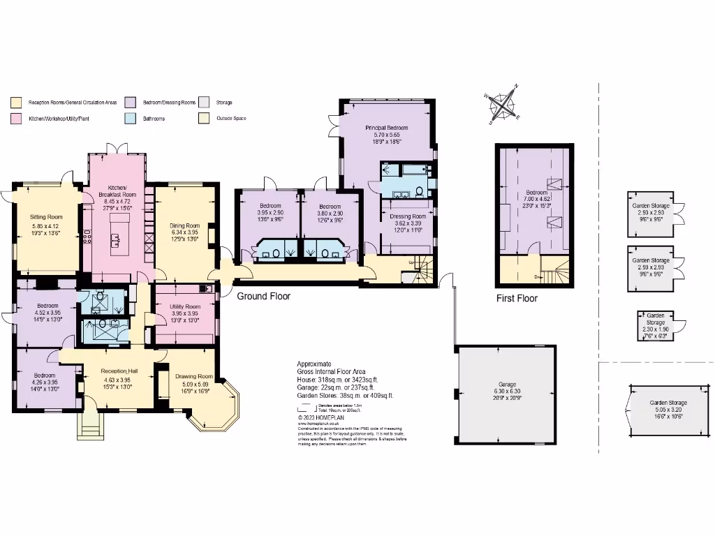
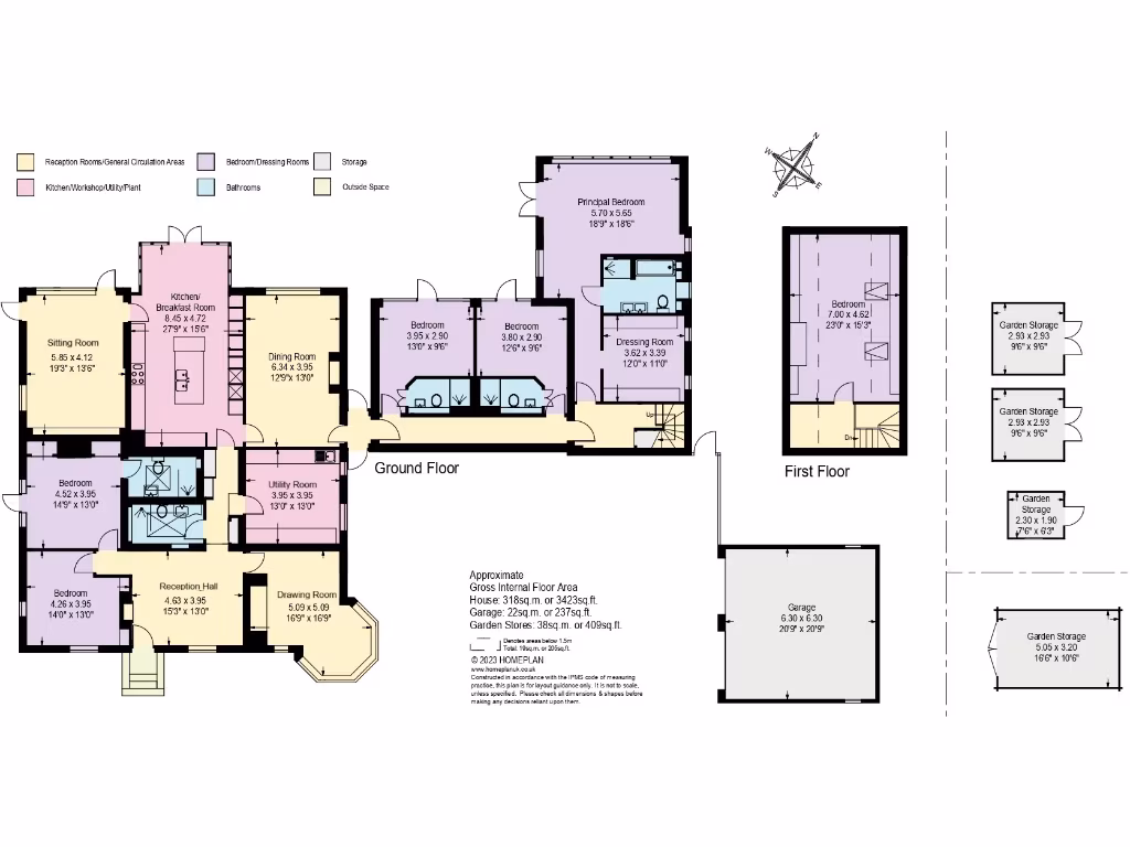
Tylney Lodge is a striking late-Victorian country lodge recently updated to combine period detail with contemporary living. Set within approximately 14 acres of private parkland, the house offers generous reception rooms, six bedrooms and five bathrooms across about 3,423 sq ft — a rare package for a family seeking space, privacy and a countryside setting within easy reach of Hook and the M3.
The interior blends original character (tudor revival chimneys, hexagonal bay) with modern fixtures: an open-plan family kitchen with central island, bifold doors to the terrace, vaulted dining room and multiple en suite bedrooms. Recent renovations and double glazing (post-2002) give modern comfort while retaining charm. The principal suite enjoys garden-facing views and a walk-in dressing room.
Outside features are a major asset: gated entrance with gravel drive, extensive parking, double garage, well-kept formal gardens and a large Indian sandstone terrace opening onto sweeping lawns and light woodland. The 14 acres of private parkland create long, uninterrupted rural views and excellent seclusion — attractive for family life or those seeking a small country estate.
Practical considerations are straightforward but important. The house is a solid-brick building constructed before 1900 and assumed to have no cavity insulation in original walls; energy improvements may be desirable. The scale of the garden and outbuildings means ongoing maintenance and running costs are significant, and council tax is expensive. Overall this property suits buyers wanting a character country home already modernised, but prepared for estate-level upkeep.
4 bedroom link detached house for sale in Ridge Lane, Rotherwick, Hook, Hampshire, RG27 — £1,400,000 • 4 bed • 4 bath • 4868 ft²
5 bedroom house for sale in Blackstock Lane, Hook, RG27 — £1,750,000 • 5 bed • 2 bath • 2979 ft²
6 bedroom detached house for sale in Borough Court Road, Hartley Wintney, Hook, Hampshire, RG27 — £2,650,000 • 6 bed • 4 bath • 5055 ft²
5 bedroom detached house for sale in Mattingley, Hook, Hampshire, RG27 — £2,300,000 • 5 bed • 4 bath • 4455 ft²
4 bedroom detached house for sale in Blaegrove Lane, Up Nately, RG27 — £895,000 • 4 bed • 2 bath • 2672 ft²
5 bedroom detached house for sale in Chandlers Lane, Yateley, Hampshire, GU46 — £1,150,000 • 5 bed • 2 bath • 1970 ft²














































































































































































