Ground-floor living with garden and driveway, ready for personal updates.
Chain-free true detached bungalow on one level
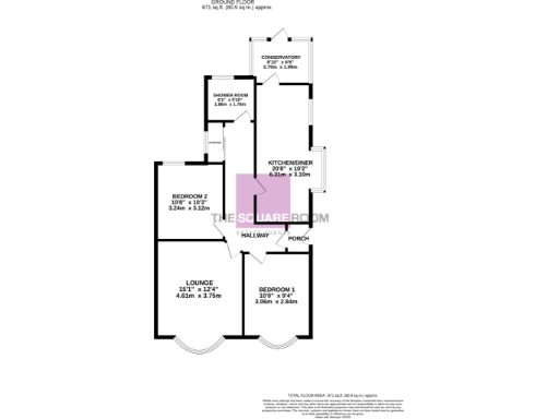
This chain-free two-bedroom detached bungalow offers single-storey living close to Blackpool town centre and transport links. The layout includes a spacious lounge, long kitchen/diner, conservatory and two double bedrooms with fitted wardrobes — practical for those seeking easy, ground-floor accommodation.
Outdoor space includes a small rear garden with paved area and off-street driveway parking. The property is freehold with low council tax and no flood risk, making ongoing running costs comparatively modest.
The home retains period character externally but some internal elements are dated: the kitchen and heating include older fittings and storage heaters. The bungalow is best suited to buyers seeking a straightforward move-in with light updating, or those prepared to undertake modest refurbishment to personalise the space.
Buyers should note the local area records higher crime levels and significant area deprivation; prospective purchasers are advised to visit and assess the neighbourhood. Nearby schools and good transport links add convenience for day-to-day life.
2 bedroom bungalow for sale in Bardsway Avenue, Blackpool, FY3 — £129,950 • 2 bed • 1 bath • 548 ft²
2 bedroom bungalow for sale in Annan Crescent, Marton, FY4 — £169,950 • 2 bed • 1 bath • 702 ft²
2 bedroom detached bungalow for sale in Paddock Drive, Blackpool, Lancashire, FY3 — £159,950 • 2 bed • 1 bath • 424 ft²
2 bedroom bungalow for sale in Westmorland Avenue, Blackpool, FY1 — £180,000 • 2 bed • 1 bath • 668 ft²
2 bedroom bungalow for sale in Scott Close, Blackpool, FY4 — £100,000 • 2 bed • 1 bath • 328 ft²
2 bedroom semi-detached bungalow for sale in Hillside Close, Blackpool, FY3 — £130,000 • 2 bed • 1 bath • 657 ft²


















































