**Standout Features:**
- 3-bedroom mid-terrace property
- Modern kitchen/diner and shower room
- uPVC double glazing throughout
- Rear garden with patio and storage shed
- Excellent mobile signal and fast broadband
- Chain-free sale
**Concerns:**
- Small overall size (708 sq ft)
- Limited parking options in a high-crime area
- Older construction with no insulation
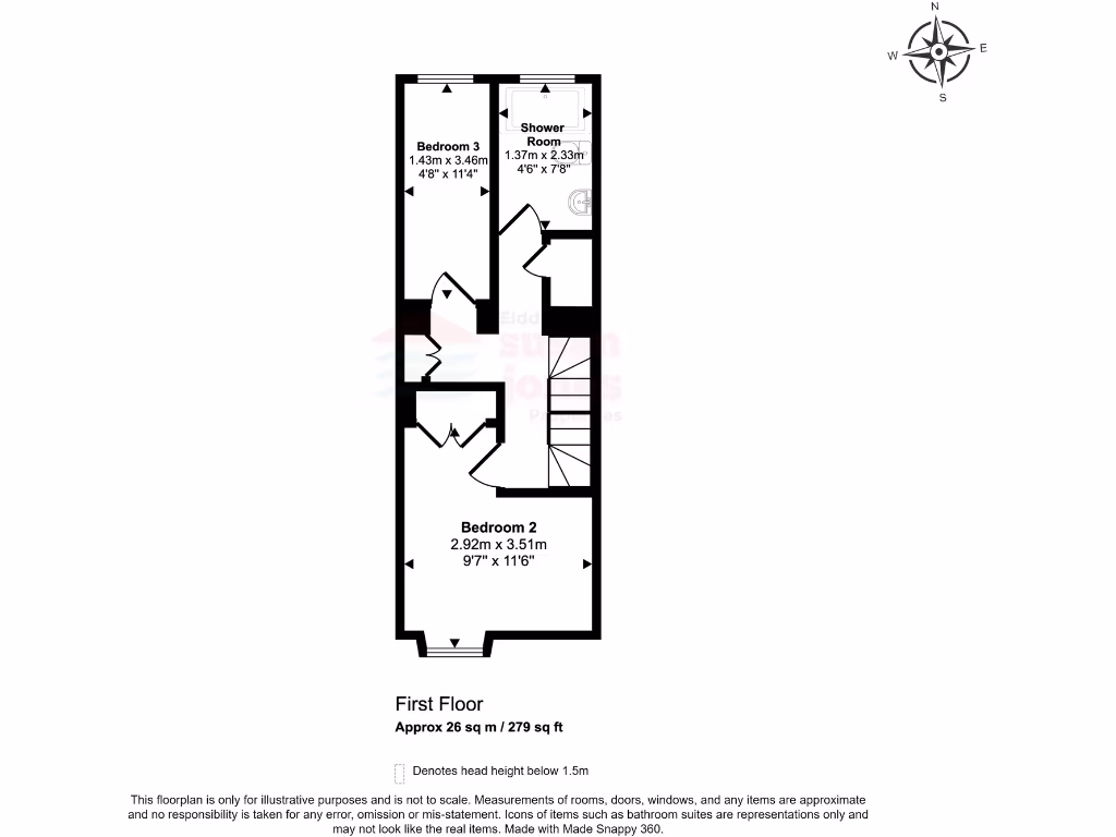
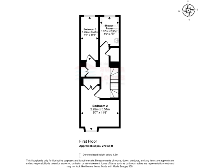
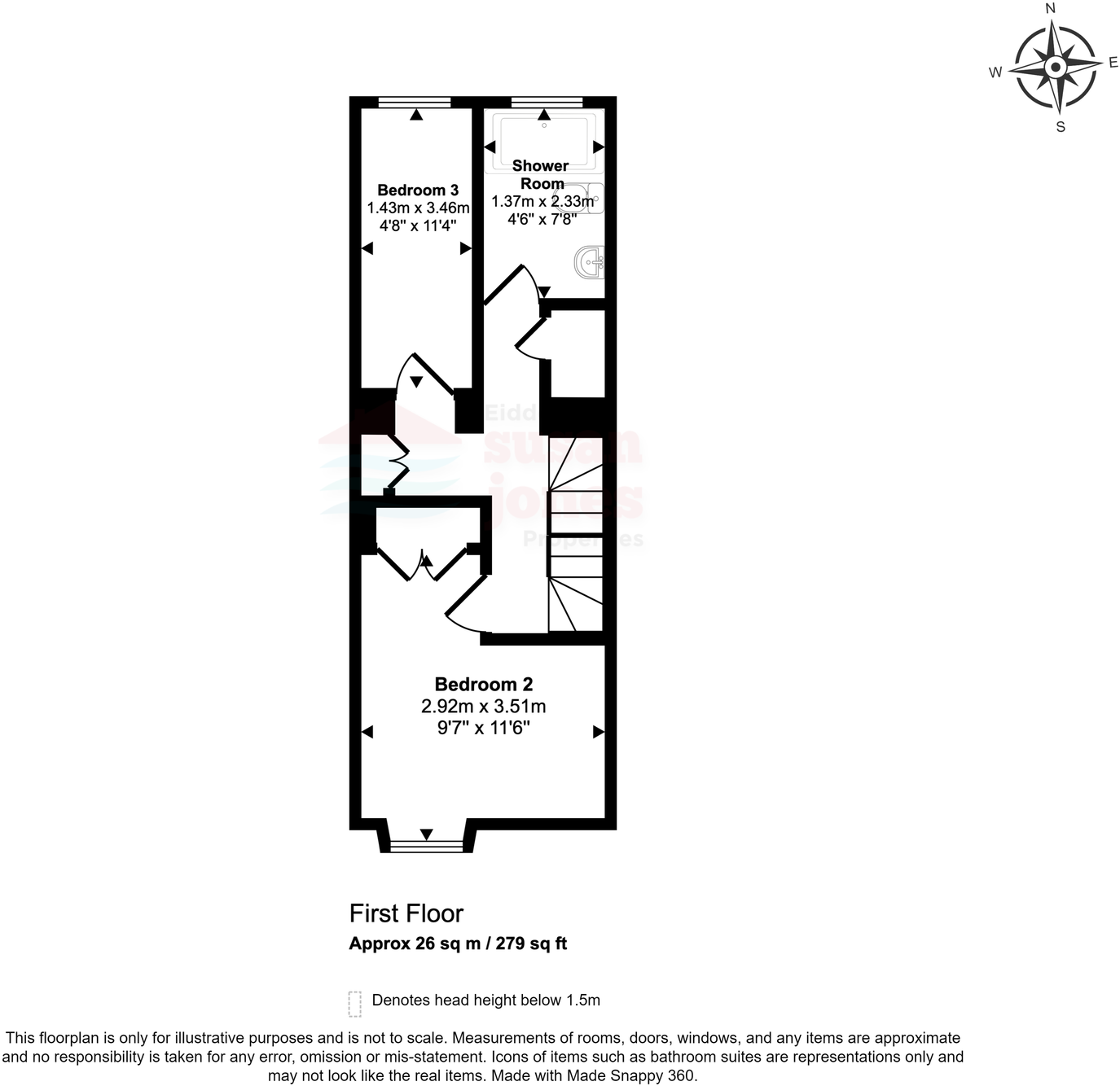
Discover your ideal seaside retreat in the heart of Pwllheli! This charming 3-bedroom mid-terrace home is perfect for first-time buyers or investors seeking rental potential. The property's inviting lounge leads into a contemporary kitchen/diner, accented with exposed beams, providing an open feel. You’ll find two bedrooms and a modern shower room on the first floor, plus a hidden bonus attic bedroom which adds versatility.
Step outside to a cozy rear garden featuring a patio and storage shed, ideal for enjoying summer evenings or creating a serene outdoor environment. While the property presents an excellent opportunity, it is important to note its compact size and that it is set in an area with high crime rates. The home requires some renovations but benefits from new double glazing and a gas heating system.
With local amenities and transport links just a stone's throw away, this unique property won’t last long. Embrace the chance to make this lovely house your new home!
3 bedroom terraced house for sale in Ffordd Caernarfon, Pwllheli, LL53 — £155,000 • 3 bed • 1 bath • 728 ft²
3 bedroom terraced house for sale in Abererch Road, Pwllheli, Gwynedd, LL53 — £159,995 • 3 bed • 1 bath • 931 ft²
3 bedroom terraced house for sale in Lleyn Street, Pwllheli, Gwynedd, LL53 — £170,000 • 3 bed • 1 bath • 916 ft²
2 bedroom terraced house for sale in Brookfield Terrace, Pwllheli, Gwynedd, LL53 — £189,995 • 2 bed • 1 bath • 1058 ft²
3 bedroom terraced house for sale in Morfa Garreg, Pwllheli LL53 — £160,000 • 3 bed • 1 bath • 814 ft²
2 bedroom terraced house for sale in New Street, Pwllheli, Gwynedd, LL53 — £139,500 • 2 bed • 1 bath • 768 ft²






























































































