Large garden and garage near station, ideal for family renovation.
Three bedrooms plus loft room via spiral stairs
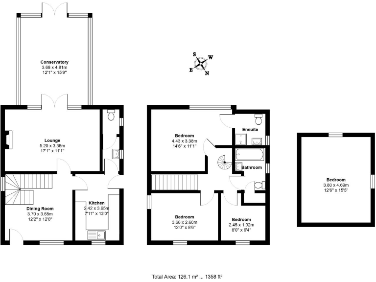
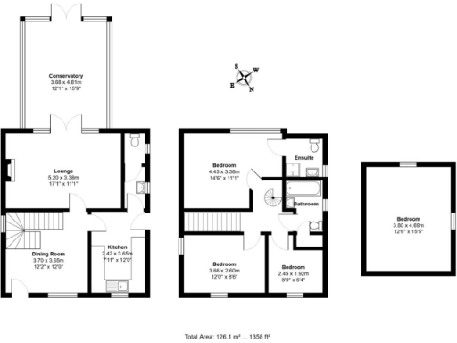
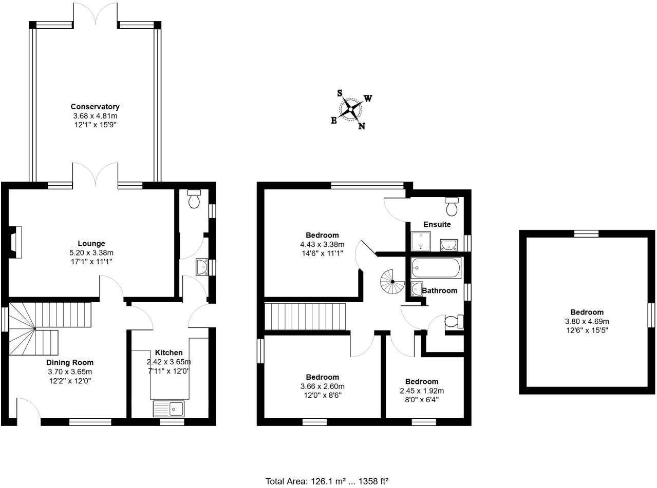
Set on a large plot in Trimley St Mary, this detached three-bedroom family home offers generous living space and a private 110' rear garden. The layout includes two reception rooms, a conservatory, dining hall and a loft room accessed by spiral stairs — ideal for a home office or play area. A detached double garage and wide driveway provide plentiful off-street parking.
Built c.1900–1929 in solid brick, the property has strong bones but requires general modernisation throughout. Existing features such as double glazing and gas central heating are in place, yet walls are assumed uninsulated and some systems may benefit from upgrading. The house is a practical canvas for buyers wanting to add value through renovation or reconfiguration.
Location is a clear advantage for families: it sits a short walk from the train station and close to several well-rated primary and secondary schools. Local amenities include shops, bus links and leisure facilities, while the area is very affluent with very low crime and fast broadband — good for commuting and home working.
Prospective purchasers should note the renovation status and potential energy-efficiency improvements when budgeting. There is no flood risk recorded, tenure is freehold and the plot size gives scope for garden landscaping or modest extension subject to planning consent.
4 bedroom detached house for sale in High Road, Trimley St. Mary, IP11 — £450,000 • 4 bed • 2 bath • 1475 ft²
4 bedroom semi-detached house for sale in Spriteshall Lane, Trimley St. Mary, IP11 — £275,000 • 4 bed • 2 bath • 1174 ft²
3 bedroom semi-detached house for sale in Farriers Went, Trimley St. Mary, IP11 — £270,000 • 3 bed • 1 bath • 883 ft²
3 bedroom terraced house for sale in Spriteshall Lane, Trimley St. Mary, IP11 — £325,000 • 3 bed • 2 bath • 1271 ft²
4 bedroom detached house for sale in Capel Close, Trimley St Martin, IP11 — £365,000 • 4 bed • 1 bath • 1255 ft²
3 bedroom detached house for sale in Eastland Court, Trimley St. Mary, Felixstowe, Suffolk, IP11 — £365,000 • 3 bed • 2 bath • 1118 ft²






















































