**Standout Features:**
- No onward chain for an efficient purchase process
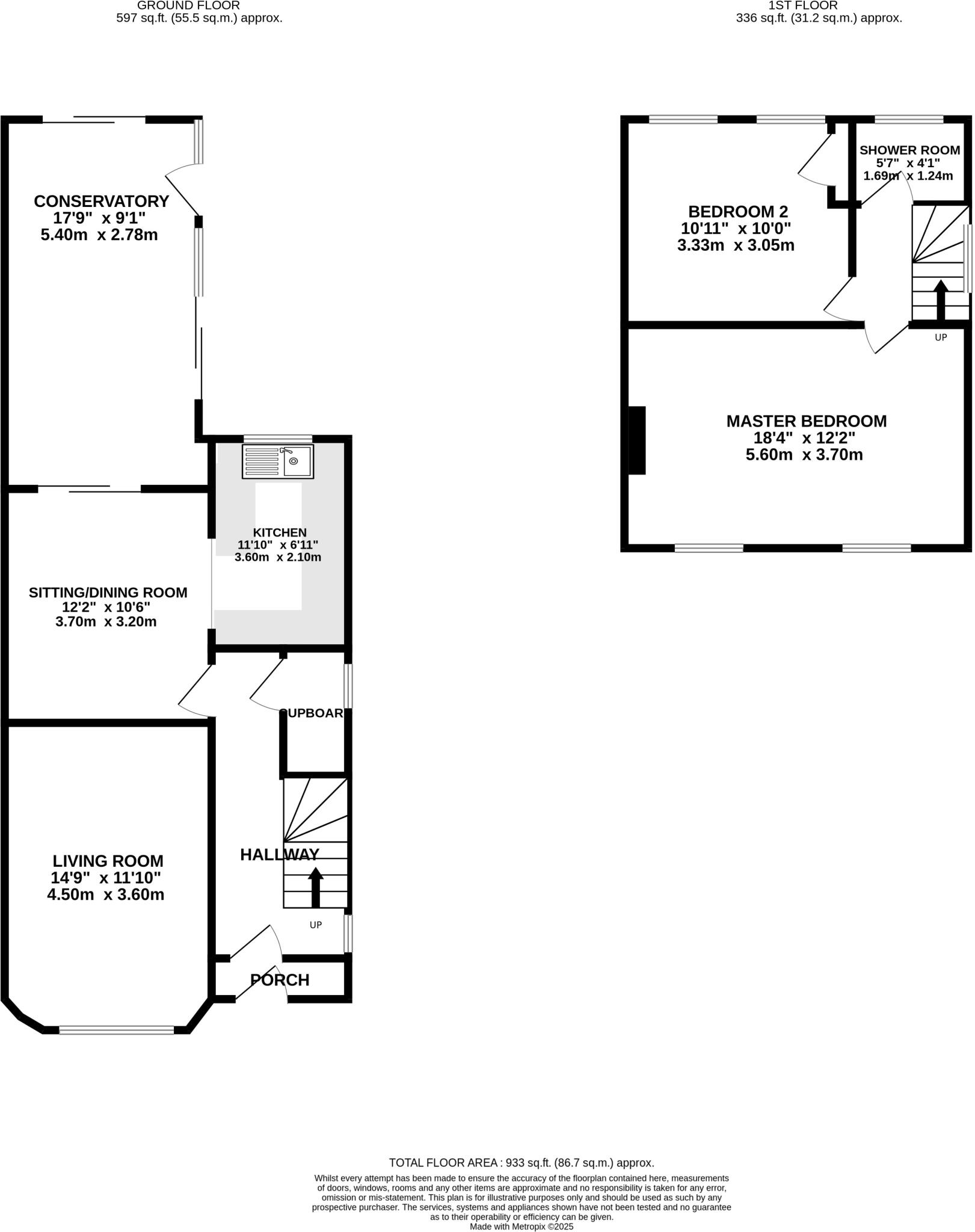
- Semi-detached with potential to convert to a three-bedroom
- Three spacious reception rooms
- Large private garden with outbuildings
- Excellent transport links for commuters
- Nearby amenities including schools, shops, and leisure facilities
**Concerns:**
- Requires updating and modernization throughout
- Some structural elements in the property may need attention
This charming, two-bedroom semi-detached home on Little Mountain Road, Buckley is waiting for your personal touch. With three reception rooms, including a conservatory that overlooks a spacious, private garden with outbuildings, it offers endless possibilities for renovation and customization. Convert the generous master bedroom back into two separate rooms, creating a potential three-bedroom layout, perfect for families or investors looking to maximize rental income.
Conveniently located near Buckley town centre and just a short walk from Buckley train station, this property benefits from great commuter links to Mold, Chester, and beyond. It's also within easy reach of local schools and amenities, making it ideal for families. While the home retains its period charm, it does require some updates to bring it to modern standards, allowing discerning buyers the opportunity to design their dream space.
This home stands out as a potential gem in a sought-after location—don’t miss the chance to make it your own! Early viewings are highly recommended to unlock its full potential.
2 bedroom end of terrace house for sale in Myrtle Road, Buckley, CH7 — £135,000 • 2 bed • 1 bath • 990 ft²
2 bedroom terraced house for sale in Church Road, Buckley, CH7 — £145,000 • 2 bed • 1 bath • 762 ft²
2 bedroom semi-detached house for sale in Mold Road, Buckley, Flintshire, CH7 — £110,000 • 2 bed • 1 bath • 1035 ft²
2 bedroom semi-detached house for sale in Bryn Mawr, Buckley, CH7 — £155,000 • 2 bed • 1 bath • 643 ft²
4 bedroom semi-detached house for sale in Burntwood Road, Buckley, CH7 — £210,000 • 4 bed • 1 bath • 981 ft²
2 bedroom semi-detached house for sale in Ainsdale Close, Buckley, CH7 — £250,000 • 2 bed • 2 bath • 1152 ft²










































