**Standout Features:**
- Spacious, two double-bedroom apartment
- Allocated parking plus visitor spaces
- Open-plan living-dining-kitchen with stunning views
- Master ensuite and family bathroom
- Located in a historic Grade II Listed building
- Well-maintained communal gardens
- Lift and stair access to the fourth floor
- Chain-free sale with a long lease and share of freehold (975 years left)
**Summary:**
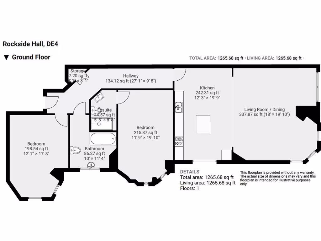
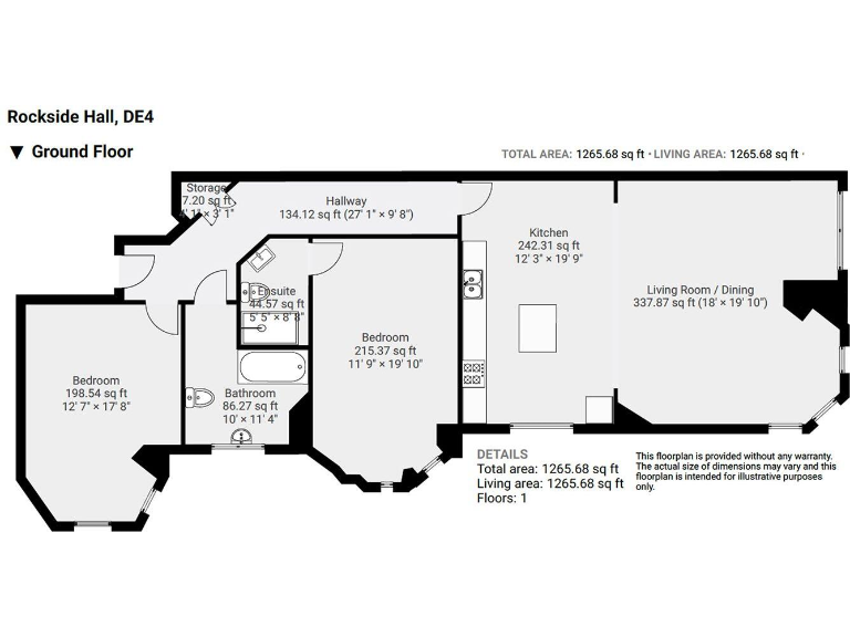
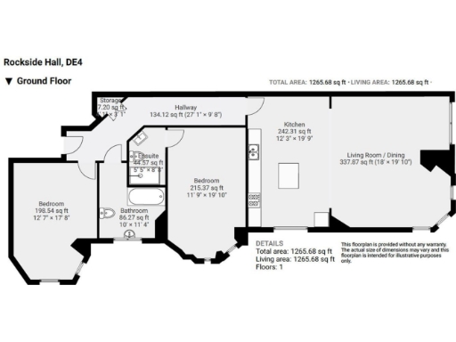
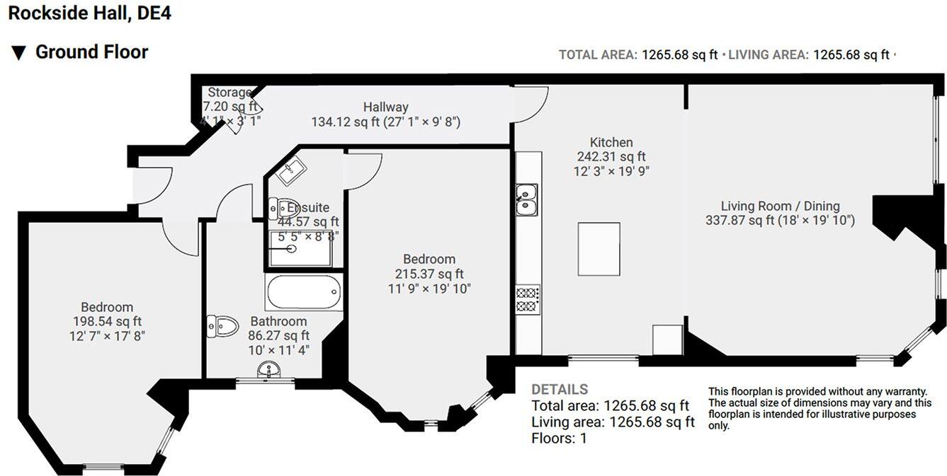
Nestled within the historic Rockside Hall in Matlock, this extraordinarily spacious apartment spans an impressive 1,265 square feet and boasts breathtaking panoramic views over the Derwent Valley. The well-designed layout features two generously sized double bedrooms, including a master with an ensuite shower room, and a modern family bathroom. The heart of this home is the expansive open-plan living, dining, and kitchen area, bathed in natural light, enhancing the inviting atmosphere. Original features, high ceilings, and tasteful modern finishes add a unique charm.
This property also benefits from allocated parking in a secure communal area and beautifully maintained gardens inviting leisurely afternoons outdoors. With access via a lift and staircase to the fourth floor, you will appreciate the striking views while enjoying privacy from neighbors. Located just a stone's throw from local amenities, this home offers convenience and comfort in a desirable, affluent neighborhood.
It’s ideal for families seeking space, first-time buyers craving comfort, or investors looking for rental potential in a location rich with amenities, including schools and parks. Take note: properties like this don't last long in a sought-after market, so act quickly to secure your exclusive find.



























































































