**Standout Features:**
- Two bedrooms and two bathrooms
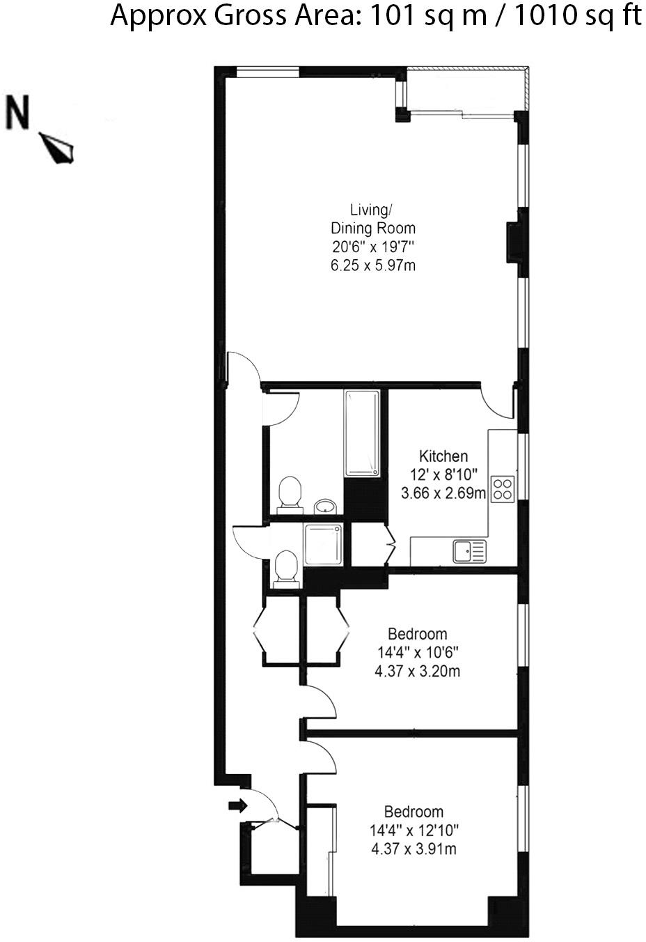
- 1,010 square feet of living space
- Eighth-floor position with private balcony
- Contemporary open-plan design with high ceilings
- 24-hour porterage and gated development for added security
- Close proximity to Edgware Road and Paddington stations
**Concerns:**
- Leasehold tenure; ground rent at £500
- Average council tax bill
- Above-average crime rate in the area
Step into urban living in this spacious two-bedroom apartment located on the eighth floor of a well-maintained portered development. Spanning approximately 1,010 square feet, this contemporary residence features an open-plan kitchen and living area illuminated by natural light, leading to a private balcony—perfect for unwinding in the heart of the city. The large principal bedroom includes an en-suite bathroom, alongside a second bedroom and family bathroom, catering well to families or professionals.
The Water Gardens complex showcases lovely communal gardens and offers unrivaled access to the vibrant lifestyle of Marylebone, Oxford Street, and the natural beauty of Hyde Park. Benefiting from excellent transport links via Edgware Road (0.3 miles) and Paddington stations (0.5 miles), this property is not only a cozy retreat but a gateway to all London has to offer. While leasehold and council tax considerations are present, the investment potential in this prime location makes it an inviting opportunity for first-time buyers and savvy investors alike. Don’t miss your chance to enjoy city living at its finest!
2 bedroom apartment for sale in The Water Gardens, Hyde Park, W2 — £520,000 • 2 bed • 2 bath • 727 ft²
2 bedroom apartment for sale in The Water Gardens, Hyde Park Estate, Paddington, W2 — £635,000 • 2 bed • 1 bath • 509 ft²
1 bedroom apartment for sale in The Water Gardens, Hyde Park, W2 — £585,000 • 1 bed • 1 bath • 522 ft²
2 bedroom apartment for sale in The Water Gardens, Hyde Park, W2 — £999,950 • 2 bed • 2 bath • 935 ft²
1 bedroom flat for sale in THE WATER GARDENS, London, W2 — £495,000 • 1 bed • 1 bath • 529 ft²
2 bedroom flat for sale in THE WATER GARDENS, London, W2 — £775,000 • 2 bed • 2 bath • 872 ft²










































































