Affordable, ready-to-live-in three-bedroom house with parking and a high-spec kitchen..
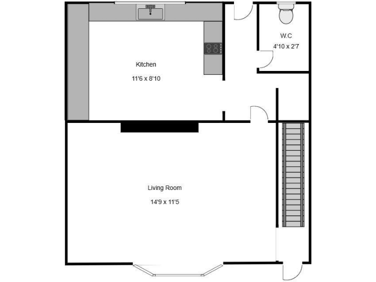
Newly refurbished high-spec kitchen; ready to move in
Large tarmac driveway and carport for multiple cars
Cosy living room with log burner; gas central heating
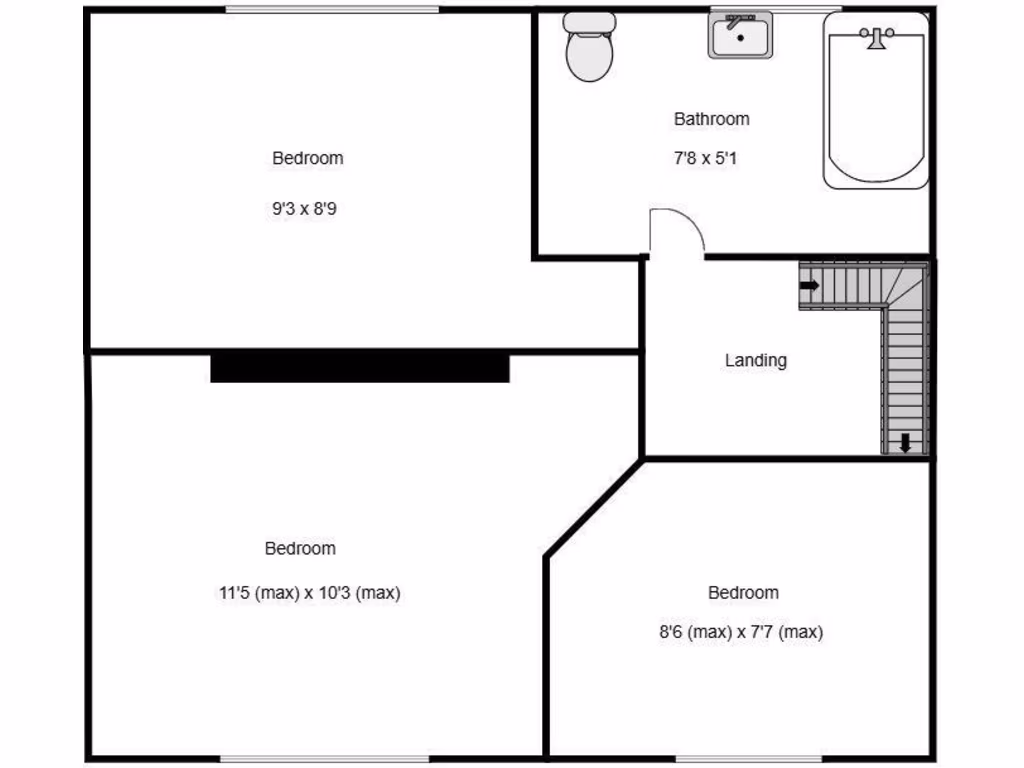
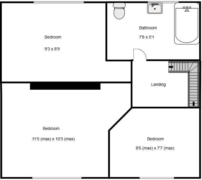
Three bedrooms; single family bathroom upstairs
Generous front and rear gardens with mature fruit trees
Small overall floor area (~808 sqft); compact layout
Some maintenance needed; potential mould indicated in images
Located 0.7 mile to Wythenshawe Park; close to M56/M60
This recently renovated three-bedroom terrace on Lawton Moor Road offers an affordable, well-presented home for first-time buyers or young families. The highlight is a high-spec modern kitchen and a cosy living room with a working log burner — practical comforts combined with low running costs (Council Tax Band A).
Outside, a generous tarmac driveway with carport provides parking for multiple cars, and the front and rear gardens include mature fruit trees (pear, red currant, cherry) and low-maintenance planting. The house sits 0.7 miles from Wythenshawe Park, with quick access to the M56/M60 and Wythenshawe Hospital (1.9 miles), useful for commuters and local services.
The property is compact (around 808 sqft) and efficient in layout: three bedrooms, one family bathroom upstairs plus a useful downstairs WC. It’s a mid‑20th century build with cavity walls, double glazing, gas central heating and a modest plot — comfortable but not spacious.
Buyers should note practical drawbacks: the home is in a deprived local area and the interior/garden photos indicate some maintenance is needed, including potential mould in places and general upkeep of planting. There is one main bathroom upstairs only. This house suits buyers looking for a ready-to-live-in, reasonably priced starter home with scope to personalise rather than someone needing a large family home.
3 bedroom terraced house for sale in Piper Hill Avenue, Manchester, M22 — £280,000 • 3 bed • 1 bath • 533 ft²
3 bedroom terraced house for sale in Wythenshawe Road, Manchester, M23 — £300,000 • 3 bed • 1 bath • 1114 ft²
3 bedroom terraced house for sale in Leycett Drive, Manchester, M23 — £250,000 • 3 bed • 1 bath • 710 ft²
3 bedroom end of terrace house for sale in Yattendon Avenue, Manchester, Greater Manchester, M23 — £275,000 • 3 bed • 1 bath • 939 ft²
3 bedroom terraced house for sale in Moorcroft Road, Manchester, Greater Manchester, M23 — £265,000 • 3 bed • 1 bath • 1096 ft²
3 bedroom semi-detached house for sale in 29 A Lawton Moor Road, Manchester, M23 — £250,000 • 3 bed • 1 bath • 852 ft²






























































































































































