Chain-free two-bedroom ground-floor flat with parking and a long lease.
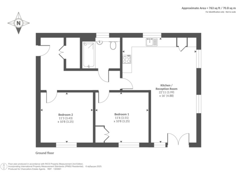
Two double bedrooms and open-plan living/kitchen area
Ground-floor apartment with allocated off-street parking
731 sq ft overall; modern build (constructed 2019)
Long lease: 245 years remaining from 01/04/2020
Chain-free sale—available for quicker completion
Single bathroom only—consider for families or sharers
Leasehold tenure; check service charges and ground rent
Local primary school mix; one nearby requires improvement
This ground-floor two-bedroom apartment in Arborfield Green offers a modern, low-maintenance home within a 2019 development. The open-plan living and kitchen area gives a light, usable living space, and the property includes allocated off-street parking—useful for commuters and small families. The apartment is chain-free and ready for a straightforward move.
Practical details are attractive: a long lease (245 years remaining from 2020), mains gas central heating, and an overall size of about 731 sq ft. Local broadband and mobile signal are strong, and the area is classified as very affluent with good access to leisure, playgrounds and several schools—some rated Good and independent options nearby.
Buyers should note this is a leasehold flat with a single bathroom, which may be a consideration for sharers or families. One nearby primary school has an Ofsted rating of "Requires improvement," so check school suitability if that’s a priority. Crime levels are average; there is no flood risk.
This apartment will suit first-time buyers or investors seeking a modern, low-upkeep property close to amenities and transport links. It offers straightforward potential for cosmetic updating rather than major refurbishment.
2 bedroom apartment for sale in Carol Grove, Arborfield Green, Reading, Berkshire, RG2 — £300,000 • 2 bed • 2 bath • 661 ft²
2 bedroom apartment for sale in Waterman House, Oak Drive, Arborfield Green, Berkshire, RG2 9GT, RG2 — £310,000 • 2 bed • 2 bath • 819 ft²
2 bedroom apartment for sale in Carol Grove, Arborfield Green, Reading, RG2 — £294,000 • 2 bed • 2 bath • 701 ft²
2 bedroom apartment for sale in Howell Close, Arborfield, Reading, RG2 — £265,000 • 2 bed • 2 bath • 661 ft²
2 bedroom apartment for sale in Austen Grove, Arborfield Green, Reading, Berkshire, RG2 — £315,000 • 2 bed • 2 bath • 797 ft²
2 bedroom apartment for sale in Sherman Avenue, Arborfield, RG2 — £315,000 • 2 bed • 1 bath • 677 ft²














































































