Refurbished 2-bed flat with garage, short walk to station — perfect for first-time buyers..
Immaculately refurbished two-bedroom flat, refurbished 2023
Refitted kitchen with integrated appliances
Luxury shower room; both bedrooms have built-in wardrobes
Large west-facing living room with picture window
Garage in block included
Extended lease: 169 years remaining; no onward chain
Service charge ~£2,200/year (confirm details)
Electric storage heaters; lower ceiling heights in parts; higher local crime rates
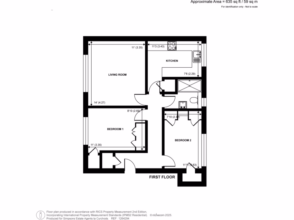
This immaculately presented two-bedroom flat was tastefully refurbished in 2023 and suits first-time buyers or commuters seeking a ready-to-move-in home. The bright west-facing living room and large double-glazed picture windows give a light, airy feel, while the refitted kitchen includes integrated appliances. Both double bedrooms have built-in wardrobes and the bathroom has been upgraded to a luxury shower room.
Practical benefits include a garage in a block, an extended lease (169 years remaining) and no onward chain, making purchase straightforward. The flat’s size (approximately 635 sq ft) and central High Street location place shops, cafés and the mainline station (about 0.2 miles) within easy walking distance — Waterloo around 53 minutes by train.
Notable considerations: heating is via electric storage heaters and the property was constructed in the late 1970s/early 1980s with lower-than-average ceiling heights in parts. The service charge is approximately £2,200 per year. Local crime statistics are higher than average for the area; buyers should verify personal safety concerns and insurance implications.
Overall, this refurbished apartment offers move-in condition, good commuter links and a rare garage for the price band. It will particularly appeal to first-time buyers wanting a low-maintenance central flat, though buyers who prioritise gas heating, high ceilings or very low ongoing charges should allow for those trade-offs.
2 bedroom flat for sale in Laleham Road, Shepperton, TW17 — £295,000 • 2 bed • 1 bath • 538 ft²
2 bedroom apartment for sale in Broadlands Avenue, Shepperton, TW17 — £425,000 • 2 bed • 2 bath • 899 ft²
1 bedroom apartment for sale in Mervyn Road, Shepperton, Surrey, TW17 — £159,950 • 1 bed • 1 bath • 456 ft²
1 bedroom flat for sale in Kilmiston House, Manygate Lane, Shepperton, TW17 — £250,000 • 1 bed • 1 bath • 444 ft²
2 bedroom flat for sale in High Street, SHEPPERTON, TW17 — £300,000 • 2 bed • 1 bath • 753 ft²
1 bedroom apartment for sale in High Street, Shepperton, TW17 — £230,000 • 1 bed • 1 bath • 656 ft²














































