**Standout Features:**
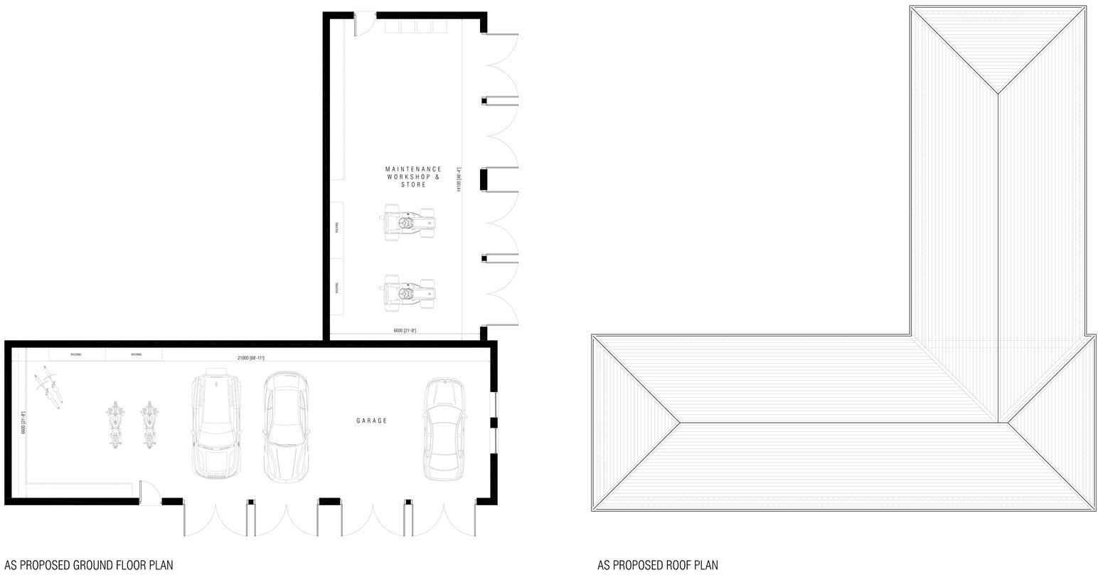
- Planning permission approved for a 12,000 sqft country house and 2,200 sqft second property.
- Spectacular south-facing views across 5 acres of landscaped grounds.
- Proposed amenities include a swimming pool, fitness center, wine cellar, and multiple en-suite bedrooms.
- Elevated location just outside Ripley, a short drive to Harrogate.
**Concise Summary:**
This prestigious development opportunity offers planning consent for a breathtaking country home nestled on approximately 5 acres of picturesque land, just outside Ripley. Approved plans provide for a grand 12,000 square foot residence with three floors, featuring modern luxuries like a swimming pool, fitness center, and expansive garages/workshops. The property is designed to enhance your lifestyle with spacious living areas, including an inviting lounge, a large kitchen perfect for entertaining, and five bedrooms, all with en-suite facilities.
Ideal for discerning buyers looking to create a statement home in a tranquil setting, the existing structure offers significant renovation potential while enjoying low crime levels and excellent local amenities. With the flexibility for further development and landscaping, this estate presents a rare chance to invest in a unique family retreat or luxury residence. Act quickly—opportunities of this caliber in such an enviable position seldom remain available for long!
5 bedroom detached house for sale in Ripley, Harrogate, HG3 — £3,600,000 • 5 bed • 4 bath • 13474 ft²
Office for sale in Bishop Thornton, Harrogate, North Yorkshire, HG3 — £1,300,000 • 1 bed • 1 bath • 20000 ft²
3 bedroom detached house for sale in Rawden Hill, Arthington, Otley, LS21 — £650,000 • 3 bed • 1 bath • 1755 ft²
Land for sale in Bishop Thornton, Harrogate, North Yorkshire, HG3 — £1,300,000 • 1 bed • 1 bath • 20877 ft²
3 bedroom semi-detached house for sale in Broxholme Park, Ripley, Harrogate, North Yorkshire, HG3 — £995,000 • 3 bed • 3 bath • 3055 ft²
Land for sale in Development Opportunity, North Rigton, Harrogate, LS17 — £650,000 • 1 bed • 1 bath • 2260 ft²


































































