Move-in ready two-bedroom with parking and EV charger.
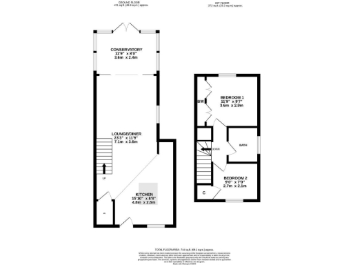
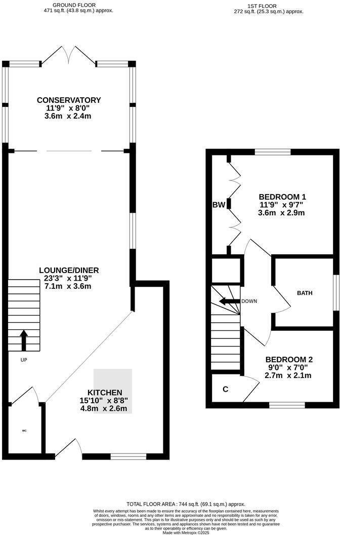
Extended end-of-terrace with 23ft open-plan lounge/diner
This extended end-of-terrace home in central Buntingford offers tidy, move-in-ready accommodation across approximately 744 sq ft. The ground floor is bright and open, with a 23ft lounge/dining area, conservatory and a re-fitted kitchen with island — a practical layout for everyday living and entertaining.
Practical benefits include underfloor heating on the ground floor, double glazing, gas central heating, off-street parking for two vehicles with an EV charging point, and a partially boarded loft for extra storage. The west-facing courtyard garden provides a low-maintenance outdoor space that suits those who prefer easy upkeep over large grounds.
Buyers should note some material details: the external wall on the right-hand side is owned by the neighbour, the boiler is located in the downstairs cloakroom, and the plot is small. Local broadband speeds are average and the area records above-average crime rates — factors to weigh for commuting, connectivity and security planning.
Well suited to first-time buyers or small households seeking a centrally located, recently renovated home with sensible running costs and practical parking. The property’s condition and efficient layout reduce immediate work, but the compact plot and neighbouring wall ownership may limit extension options.
 2 bedroom terraced house for sale in Horseshoe Cottages, Buntingford, SG9 — £318,500 • 2 bed • 1 bath • 688 ft²
 2 bedroom terraced house for sale in Horseshoe Cottages, Buntingford, SG9 — £318,500 • 2 bed • 1 bath • 688 ft² 3 bedroom terraced house for sale in Olvega Drive, Buntingford, SG9 — £495,000 • 3 bed • 2 bath • 1362 ft²
 3 bedroom terraced house for sale in Olvega Drive, Buntingford, SG9 — £495,000 • 3 bed • 2 bath • 1362 ft² 3 bedroom end of terrace house for sale in Honey Lane, Buntingford, SG9 — £425,000 • 3 bed • 1 bath • 1098 ft²
 3 bedroom end of terrace house for sale in Honey Lane, Buntingford, SG9 — £425,000 • 3 bed • 1 bath • 1098 ft² 4 bedroom detached house for sale in London Road, Buntingford, SG9 — £629,000 • 4 bed • 2 bath • 1687 ft²
 4 bedroom detached house for sale in London Road, Buntingford, SG9 — £629,000 • 4 bed • 2 bath • 1687 ft² 4 bedroom detached house for sale in Baker Drive, Buntingford, SG9 — £649,000 • 4 bed • 2 bath • 1542 ft²
 4 bedroom detached house for sale in Baker Drive, Buntingford, SG9 — £649,000 • 4 bed • 2 bath • 1542 ft² 4 bedroom detached house for sale in Chapel End, Buntingford, SG9 — £900,000 • 4 bed • 3 bath • 2560 ft²
 4 bedroom detached house for sale in Chapel End, Buntingford, SG9 — £900,000 • 4 bed • 3 bath • 2560 ft²














































































