G41 3PE - 1 bedroom apartment for sale in Trefoil Avenue, Shawlands,…

View on Property Piper

1 bedroom apartment for sale in Trefoil Avenue, Shawlands, Glasgow, G41

Summary - 40, TREFOIL AVENUE, GLASGOW G41 3PE

1 bed 1 bath Apartment

**Standout Features:**
- Unique main door flat in a Victorian tenement
- Private entrance with garden space
- High ceilings and charming bay windows
- Modern kitchen with bespoke dining area
- Double-sized bedroom with ample storage
- Delightful tiled bathroom with modern fixtures
- Communal rear garden
- Prime location in the vibrant Shawlands area

**Concise Summary:**
Discover urban living at its finest with this exceptional one-bedroom Victorian tenement flat, nestled in the heart of Shawlands. The private entrance invites you into a welcoming hallway that leads to a bright and spacious lounge adorned with high ceilings and stunning bay windows, perfect for relaxing or entertaining. The modern kitchen features stylish cabinetry and a bespoke dining space, ideal for hosting gatherings.

Retreat to the generously sized bedroom with built-in cupboard space, complemented by a beautifully tiled bathroom with contemporary amenities. Enjoy the convenience of double glazing and gas central heating throughout the home.

Set in an area renowned for its vibrant culture and acclaimed brunch spots, this property is a stone's throw from parks, restaurants, and excellent transport links, making it a great choice for professionals and first-time buyers alike. With the affordable council tax and future renovation potential, this home offers both comfort and security in a sought-after neighborhood. Don't miss the chance to make this unique flat your own—schedule a viewing today!

Property Details

Image Descriptions

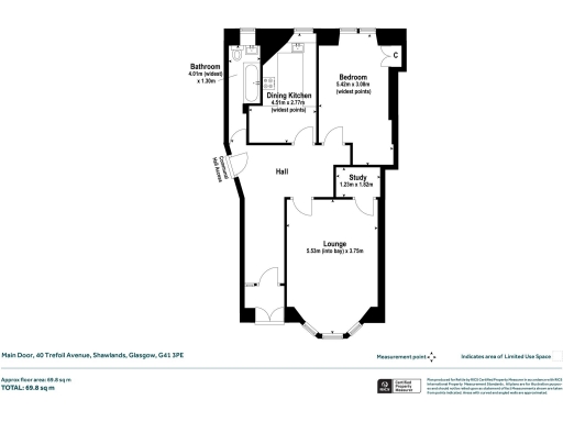
Floorplan Description

Rooms

Textual Property Features

Detected Visual Features

Nearest Bars And Restaurants

,,,,}

Nearest General Shops

,,}

Nearest Grocery shops

,,}

Nearest Supermarkets

,,}

Nearest Religious buildings

,,}

Nearest Medical buildings

,,,}

Nearest Airports

,}

Nearest Leisure Facilities

,,,,}

Nearest Tourist attractions

,,}

Nearest Train stations

,,,,}

Nearest Bus stations and stops

,,,,}

Nearest Hotels

,,}

Tags

Local Market Stats

AirBnB Data

Similar Properties

Meta

High Res Images

Compatible Images

Low res Images

Thumbnails

Raw Images

High Res Floorplan Images

Compatible Floorplan Images

Low res Floorplan Images

FloorplanImages Thumbnail

Raw Floorplan Images