Long lease, balcony and easy beach access — ideal for first-time buyers or buy-to-let.
West-facing balcony with good afternoon light
Approximately 0.6 miles to Bournemouth promenade and beach
Share of freehold with long lease (~173 years)
New building roof installed in 2022
Service charge c. £3,727 per year (notedly high)
Electric storage heating; potential higher running costs
Unrestricted on-street parking plus some driveway spaces
Local area: very high crime and higher deprivation indicators
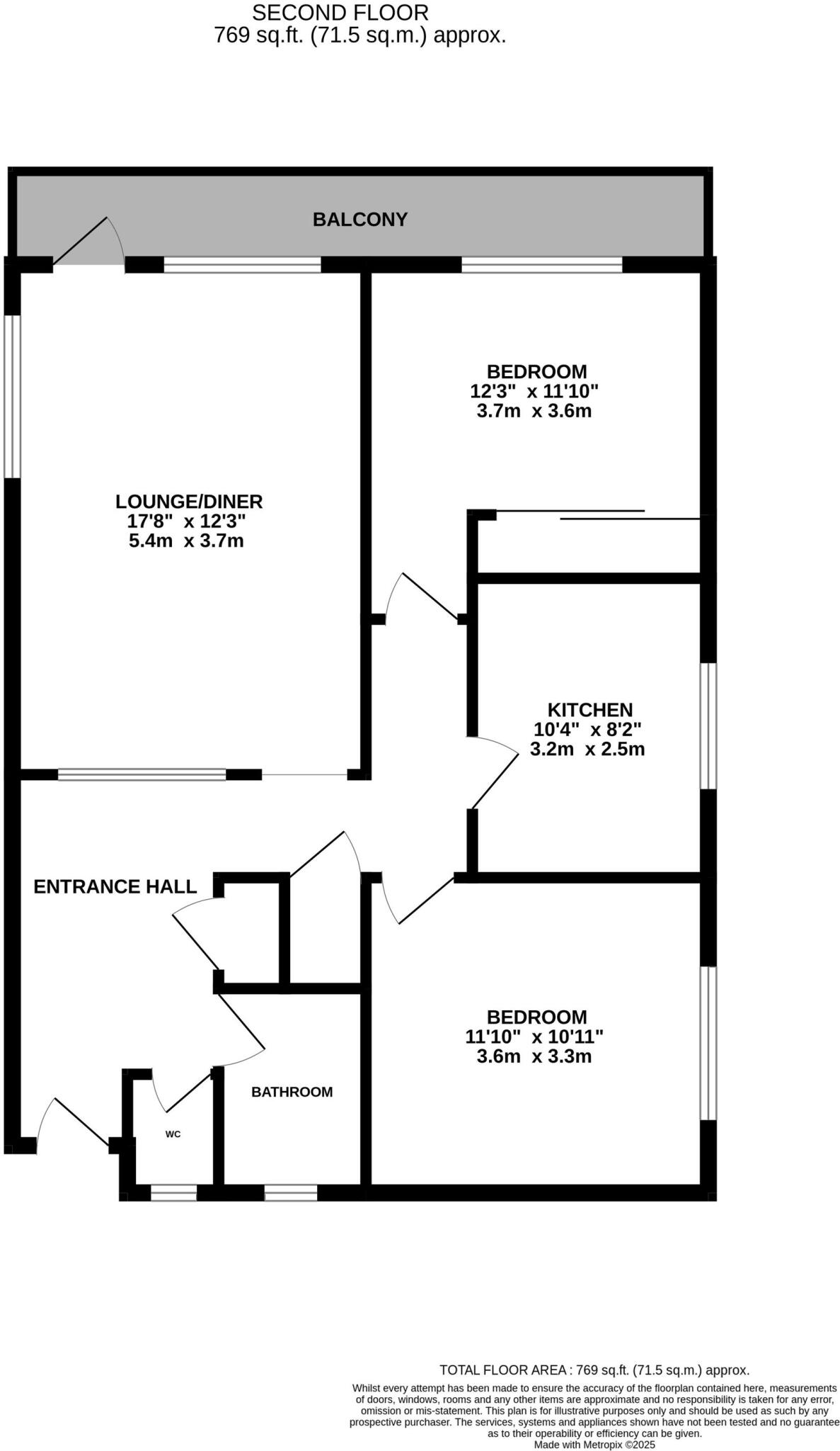
This two-bedroom, second-floor apartment in Crescent Court offers a well-proportioned living space and a long lease with share of freehold—useful for first-time buyers seeking security. The living room opens onto a west-facing balcony that captures afternoon sun and provides an outdoor seating area. The block had a new roof fitted in 2022 and sits within easy reach of Bournemouth promenade and beaches (approx. 0.6 miles).
The apartment includes a separate cloakroom plus a family bathroom, a practical layout for everyday life or letting. The kitchen is a modern shaker style and there is a hallway storage cupboard; total internal area is about 883 sq ft (average-sized). Heating is electric storage radiators and the property has double glazing (installation date unknown). EPC rating is C.
Practical costs and location considerations are important here. The annual service charge is sizeable at about £3,727 and heating runs on electricity which can be costly. Parking is unrestricted on-street with some driveway parking available, and council tax is Band C (described as affordable). The neighbourhood is a mixed, cosmopolitan area close to students and families; crime levels are reported as very high and the wider area shows higher deprivation, which will matter to some buyers.
Overall this apartment suits first-time buyers or investors who prioritise proximity to the seafront, a secure long lease with shared ownership, and ready-to-live-in accommodation. Buyers should budget for higher communal charges and electric heating costs, and be comfortable with the location’s local crime and deprivation indicators.
3 bedroom apartment for sale in Crescent Court, 33 Chine Crescent, Bournemouth, Dorset, BH2 5LA, BH2 — £285,000 • 3 bed • 1 bath • 1000 ft²
3 bedroom semi-detached house for sale in Crescent Court, 33 Chine Crescent, Bournemouth, Dorset, BH2 5LA, BH2 — £325,000 • 3 bed • 1 bath • 1000 ft²
2 bedroom flat for sale in Chine Crescent Road, Bournemouth, BH2 — £245,000 • 2 bed • 1 bath • 711 ft²
2 bedroom flat for sale in Lacehurst Court, 43, Cavendish Road, Bournemouth, BH1 — £210,000 • 2 bed • 1 bath • 646 ft²
2 bedroom apartment for sale in Chine Crescent Road, Westcliff, Bournemouth, BH2 — £230,000 • 2 bed • 1 bath • 673 ft²
2 bedroom flat for sale in Dean Park Mansions, 27 Dean Park Road, BH1 — £230,000 • 2 bed • 1 bath • 900 ft²


































































