Ideal starter home near Harrow & Wealdstone station and local amenities.
First-floor two double bedrooms
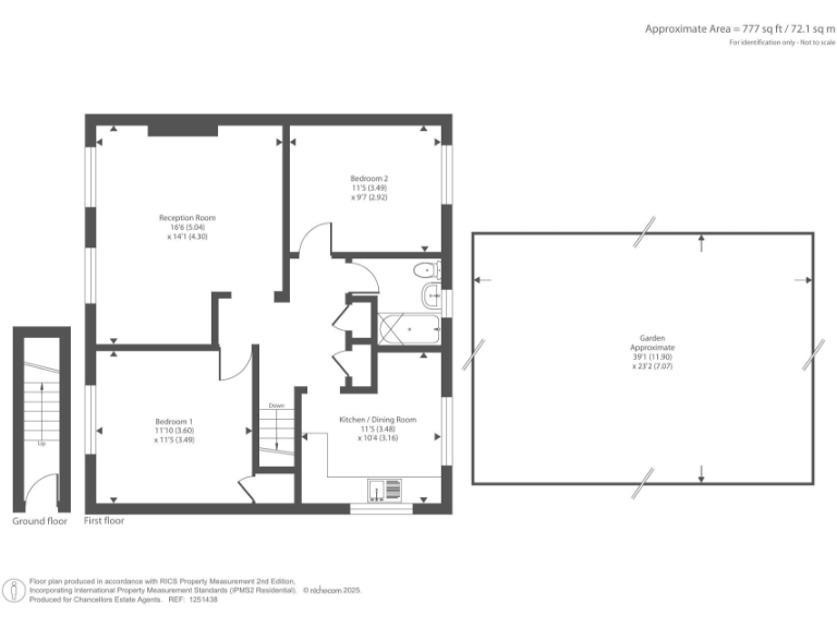
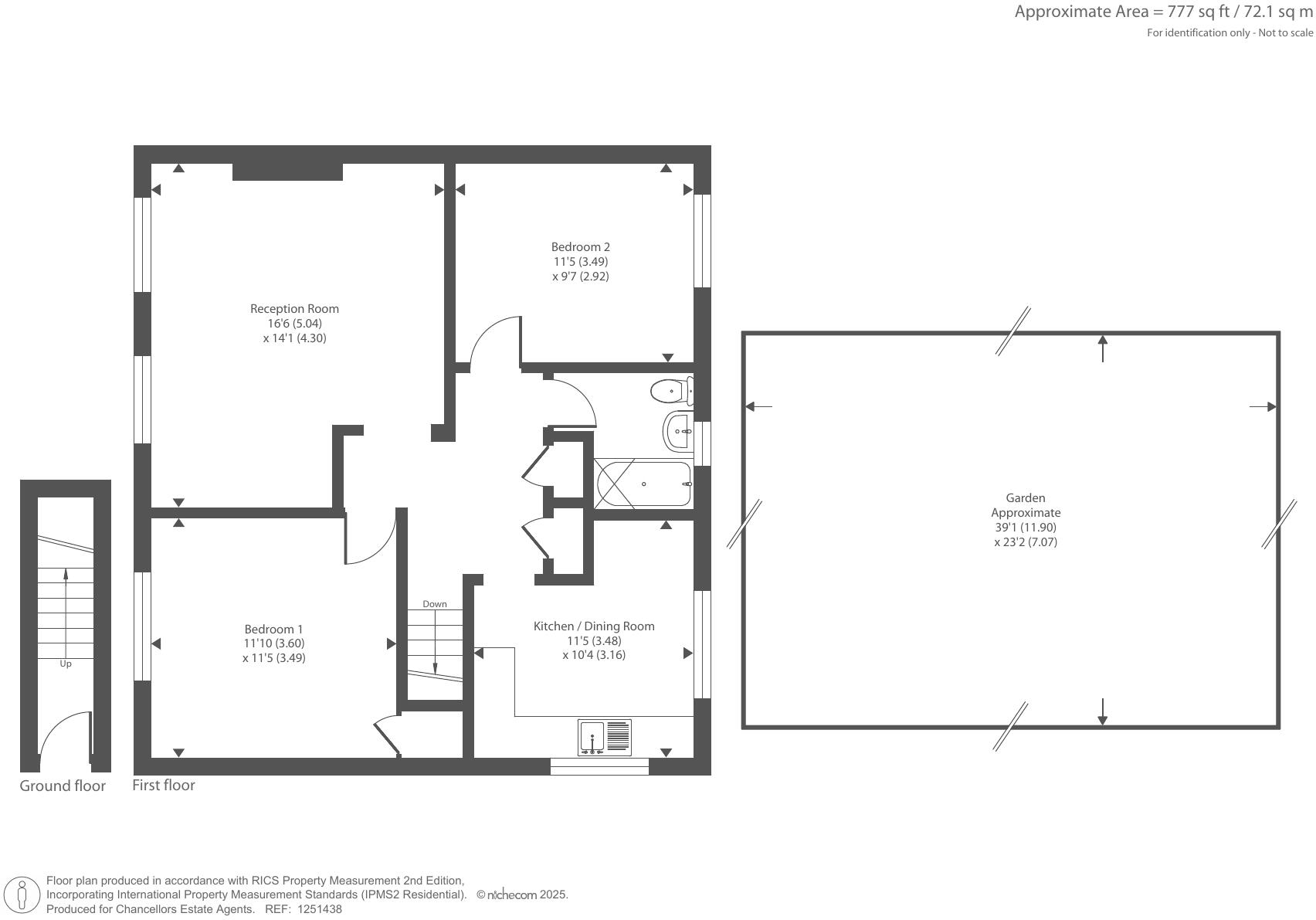
Set on the first floor of a semi-detached 1930s building, this two-double-bedroom maisonette offers a private rear garden and potential off-street parking via a dropped kerb. The generous outdoor space (approx 37' x 32') is a rare find for a flat and will suit buyers seeking outdoor living or room for children and pets. The property sits about a mile from Harrow & Wealdstone station and close to numerous bus routes, easing commutes into central London.
Internally the layout is traditional with a large reception room, separate kitchen, two double bedrooms and one bathroom. The home is liveable but dated in places — the living room shows a traditional fireplace and finishes that will benefit from cosmetic updating. Heating is by mains-gas boiler and radiators; glazing is double but install date is unknown.
Important practical points: the flat is leasehold with approximately 88–89 years remaining. Service charge and ground rent figures are not provided. Energy performance is rated D and the property’s solid-brick walls are assumed uninsulated, so some buyers may want to budget for thermal upgrades and general modernisation.
This property suits first-time buyers wanting a manageable home with garden space, and buy-to-let investors looking for steady rental demand close to transport and local amenities. It offers clear scope to add value through updating, insulation improvements and formalising parking, but buyers should factor lease length and potential service charges into affordability calculations.
2 bedroom maisonette for sale in Longley Road, Harrow, HA1 — £325,000 • 2 bed • 1 bath • 549 ft²
2 bedroom maisonette for sale in Lidding Road, Kenton, Harrow, Middlesex, HA3 — £350,000 • 2 bed • 1 bath • 678 ft²
2 bedroom flat for sale in Kenton Lane, Harrow, HA3 — £294,950 • 2 bed • 1 bath • 594 ft²
2 bedroom maisonette for sale in Somervell Court, Somervell Road, Harrow, HA2 — £300,000 • 2 bed • 1 bath • 635 ft²
2 bedroom maisonette for sale in Rowe Walk, Harrow, HA2 — £325,000 • 2 bed • 1 bath • 603 ft²
2 bedroom maisonette for sale in Gooseacre Lane, Harrow, HA3 — £400,000 • 2 bed • 1 bath • 783 ft²














































































