**Key Features:**
- Modern 2-bedroom apartment in Elephant Park
- High specification finish with ample natural light
- Private balcony with far-reaching views
- Open-plan living, dining, and kitchen area
- Access to best-in-class facilities: gym, rooftop terrace, and eco-park gardens
- Chain-free sale with 239 years remaining on the lease
- Close proximity to Elephant & Castle station (4-minute walk)
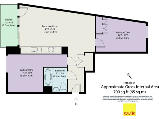
This inviting modern apartment positioned on the top floor of a well-maintained building offers a fantastic opportunity for first-time buyers or investors. With 700 square feet of thoughtfully designed space, this home boasts two double bedrooms, a family-sized bathroom, and an open-plan layout perfect for entertaining. Enjoy the bright and airy reception room that seamlessly extends to a private balcony, making it an ideal spot for relaxing or dining with a view.
Located in the vibrant Elephant Park, you'll be surrounded by a variety of restaurants, cafes, and parks, creating an urban lifestyle that blends comfort and convenience. Residents benefit from exceptional amenities, including a 24-hour concierge, a residents' lounge, and a gym—all contributing to a secure and exclusive community feel.
While the property has undergone modern construction with triple-glazing and cavity walls, potential buyers should inquire about the external wall systems and any related safety measures concerning cladding, as a matter of due diligence. With fast broadband and excellent mobile signal, this home supports both work and play. Don’t miss out on this popular development where urban living meets modern convenience!
2 bedroom apartment for sale in Victory Place, London, SE17 — £750,000 • 2 bed • 2 bath • 835 ft²
2 bedroom apartment for sale in Weymouth Building, 2 Deacon Street, Elephant Park, SE17 — £840,000 • 2 bed • 2 bath • 861 ft²
2 bedroom apartment for sale in Sir John Soane Apartments, Heygate Street, London, SE17 — £680,000 • 2 bed • 2 bath • 850 ft²
2 bedroom flat for sale in Chatteris Way, Elephant & Castle, London, SE17 — £650,000 • 2 bed • 1 bath • 728 ft²
2 bedroom flat for sale in Elephant Park, Heygate Street, Elephant and Castle, London, SE17 — £675,000 • 2 bed • 2 bath • 786 ft²
2 bedroom apartment for sale in Sir John Soane Apartments, 20 Heygate Street, Elephant Park, SE17 — £680,000 • 2 bed • 2 bath • 829 ft²


























































