CM23 3PD - 4 bedroom detached house for sale in Havers Lane, Bishop�…

View on Property Piper

4 bedroom detached house for sale in Havers Lane, Bishop's Stortford, CM23

Summary - Havers Lane CM23 3PD

4 bed 2 bath Detached

Chain-free four-bedroom house with a rare 200ft garden, near station and top schools..
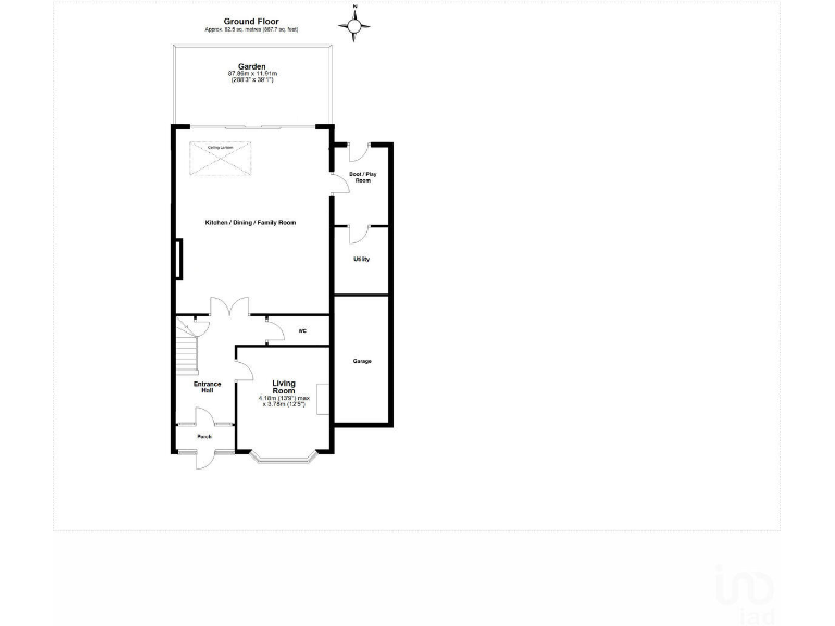
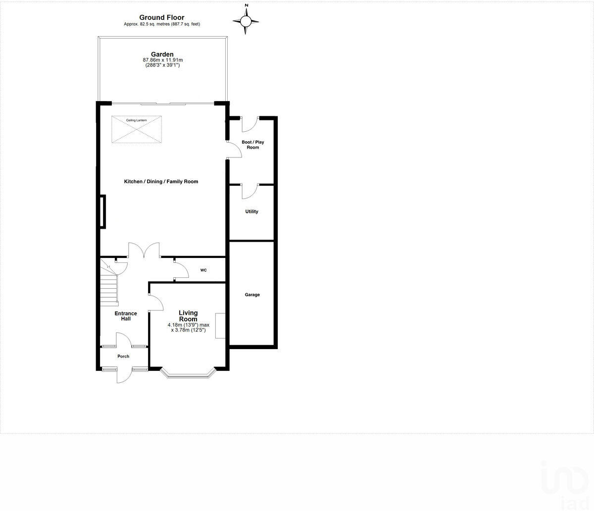
Four bedrooms with three reception rooms and practical family layout
Approximately 200ft established rear garden with patio and greenhouse
Driveway parking for multiple cars plus single garage and side access
Chain free freehold in walking distance to station, town and schools
Cavity walls assumed uninsulated — likely need insulation works
EPC Band D; Council Tax Band F (moderate) — consider running costs
Constructed mid-20th century with period-style bay windows and brick facade
Local crime levels above average — factor into family-location choice
Set on Havers Lane and offered chain-free, this four-bedroom detached house delivers genuine family appeal with an exceptionally large rear garden of around 200ft, long driveway and single garage. The living spaces include a bay-fronted sitting room, separate dining/family area with patio doors to the garden, and a practical galley kitchen with utility and ground-floor shower room — a layout that suits everyday family life and entertaining.

The property is well placed for families: it's a short walk to Bishop’s Stortford town centre, the mainline station and several highly rated schools. Inside, the rooms are generous and bright but the house will reward those willing to update it — there is clear scope for modernisation and reconfiguration to suit contemporary family needs.

Buyers should note a few material points: the cavity walls are assumed to lack insulation which will affect running costs and comfort unless improved; the property currently sits at EPC Band D; and local crime levels are above average. Overall, this is a substantial freehold family home on a very large plot with strong location advantages and visible potential for uplift through refurbishment.

This is a good fit for growing families who prioritise outdoor space, school access and commuter convenience, and for buyers prepared to invest in insulation and modernisation to maximise long-term comfort and value.

Property Details

Image Descriptions

Floorplan Description

Rooms

Textual Property Features

Target Audience

AI Tags

Detected Visual Features

EPC Details

Nearby Schools

Nearest Bars And Restaurants

,,,,}

Nearest General Shops

,,}

Nearest Grocery shops

,,}

Nearest Supermarkets

,,}

Nearest Religious buildings

,,}

Nearest Medical buildings

,,,}

Nearest Airports

}

Nearest Leisure Facilities

,,,,}

Nearest Tourist attractions

,,}

Nearest Train stations

,,,,}

Nearest Bus stations and stops

,,,,}

Nearest Hotels

,,}

Tags

Local Market Stats

AirBnB Data

Similar Properties

Meta

High Res Images

Compatible Images

Low res Images

Thumbnails

Raw Images

High Res Floorplan Images

Compatible Floorplan Images

Low res Floorplan Images

FloorplanImages Thumbnail

Raw Floorplan Images