Designer finish and river outlook in a prestigious coastal location.
Panoramic views over the River Hamble and landscaped grounds
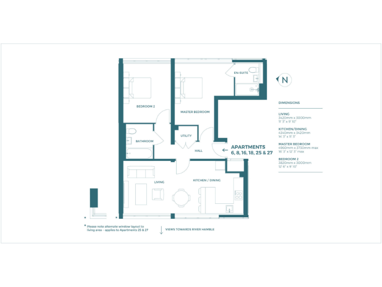
Two double bedrooms, master with en-suite and family bathroom
Contemporary kitchen with quartz worktops and integrated appliances
Ready early 2026 — new-build finish within a restored listed building
Share of freehold — ownership benefit with potential responsibilities
Listed status may restrict alterations and complicate renovations
Communal car chargers and secure communal storage included
Average-sized 738 sq ft apartment; electric heating, no flood risk
Set on the second floor of the restored Shackleton building, this two-bedroom apartment delivers panoramic river and coastal views from large windows. The open-plan living area, contemporary kitchen with quartz worktops and integrated appliances, and a designer en-suite create a bright, low-maintenance home ready early 2026.
The property sits within landscaped grounds that lead down to the coastal path and Warsash village. Practical features include a utility cupboard, communal car chargers and secure communal storage. The 738 sq ft layout is well suited to first-time buyers seeking a stylish, light-filled riverside base.
Buyers should note the building’s listed status and share of freehold tenure: both preserve character but may introduce restrictions and extra consent procedures for alterations. Electric heating is fitted and there is no identified flood risk. Completion timing, service arrangements, and any finish selections should be confirmed before exchange.
2 bedroom apartment for sale in Shackleton, Maritime Park, Newtown Road, Warsash, SO31 — £275,000 • 2 bed • 2 bath • 650 ft²
1 bedroom apartment for sale in Shackleton, Maritime Park, Newtown Road, Warsash, SO31 — £230,000 • 1 bed • 1 bath • 476 ft²
1 bedroom apartment for sale in Shackleton, Maritime Park, Newtown Road, Warsash, SO31 — £225,000 • 1 bed • 1 bath • 429 ft²
1 bedroom apartment for sale in Shackleton, Maritime Park, Newtown Road, Warsash, SO31 — £195,000 • 1 bed • 1 bath • 432 ft²
2 bedroom flat for sale in Shore Road, Warsash, SO31 — £725,000 • 2 bed • 2 bath • 1200 ft²
2 bedroom flat for sale in Woodview, Bridge Road, Sarisbury Green, Southampton, SO31 — £325,000 • 2 bed • 2 bath • 1133 ft²


































