Three-bedroom family home with garden, garage and walking distance to Cambourne Village College.
No onward chain — ready for a quick sale
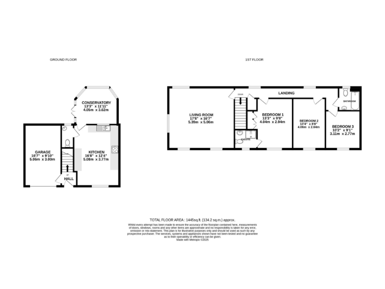
Set on a quiet street in Lower Cambourne, this spacious three-bedroom end-of-terrace offers practical family living with no onward chain. The house benefits from a large first-floor living room, a conservatory that opens onto a private enclosed garden, and an en-suite to the principal bedroom — useful for busy mornings. A single garage plus off-street parking add storage and vehicle convenience.
The layout suits families seeking good local schools and community facilities: Cambourne Village College is within easy walking distance and several well-rated primary and secondary schools serve the area. Constructed in the early 2000s, the property has double glazing, mains gas central heating and fast broadband, helping keep running costs reasonable in this very affluent neighbourhood.
Practical points to note: the home is leasehold (approximately 128 years remaining) with a small ground rent of £92 and there may be additional fees for lease documentation. The kitchen is functional but traditional in style and may benefit from modernization to match the larger living spaces. There is an opportunity to purchase the freehold and an additional garage, which could suit those wanting long-term control or extra storage.
Overall this is a straightforward, well-presented family home in a desirable Lower Cambourne location. It will appeal to buyers who prioritise space, a private garden and nearby schools, and to those prepared to update kitchen finishes or pursue the freehold for future value growth.
4 bedroom terraced house for sale in Woolthwaite Lane, Lower Cambourne, Cambridge, CB23 — £325,000 • 4 bed • 2 bath • 926 ft²
3 bedroom town house for sale in Apley Way, Lower Cambourne, Cambridge, CB23 — £350,000 • 3 bed • 2 bath • 754 ft²
3 bedroom terraced house for sale in Brookfield Way, Lower Cambourne, CAMBRIDGE, CB23 — £375,000 • 3 bed • 2 bath • 1023 ft²
2 bedroom end of terrace house for sale in Woolthwaite Lane, Lower Cambourne, Cambridge, CB23 — £275,000 • 2 bed • 1 bath • 625 ft²
3 bedroom semi-detached house for sale in Mayfield Way, Great Cambourne, Cambridge, CB23 — £330,000 • 3 bed • 1 bath • 754 ft²
5 bedroom detached house for sale in Gladiator Road, Upper Cambourne, Cambridge, CB23 — £585,000 • 5 bed • 3 bath • 1904 ft²


























































































