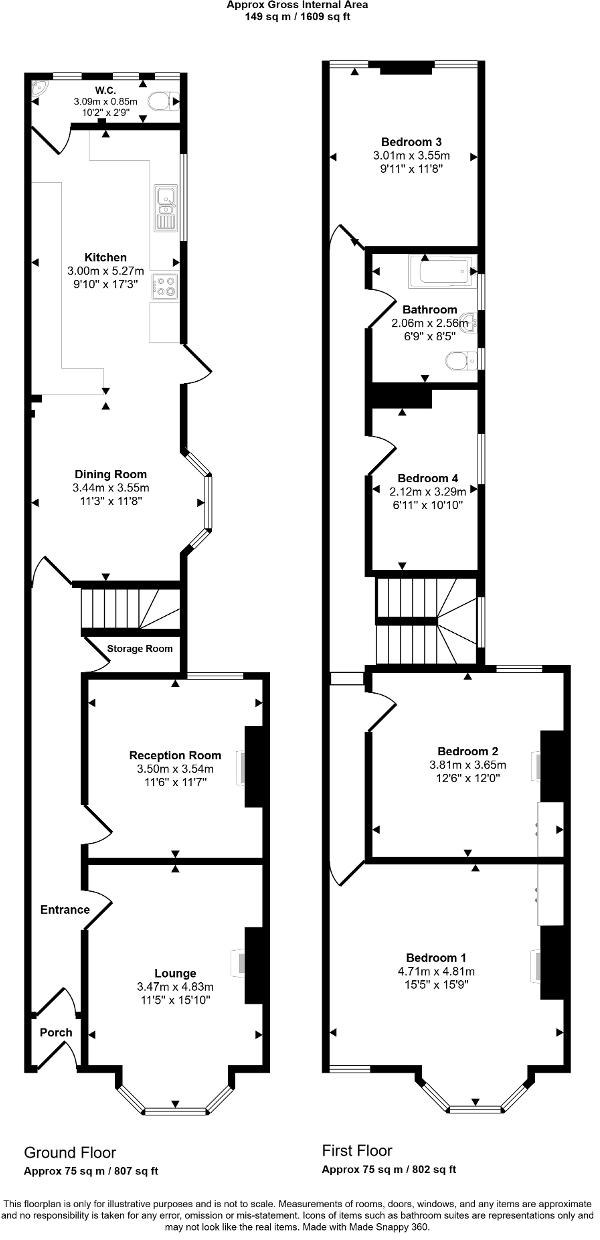
**Standout Features:**
- 4 spacious bedrooms and 2 bathrooms in a Victorian bay-fronted terrace
- Modern, large kitchen with dining area; bright and inviting living spaces
- Low-maintenance courtyard-style garden, ideal for relaxation
- Excellent transport links to London, just minutes from Bedford train station
- Located opposite Bedford Park, perfect for outdoor leisure activities
- In a friendly urban community with various local amenities
**Concise Summary:**
Discover this charming 4-bedroom Victorian terraced house on Foster Hill Road, ideally positioned for both convenience and comfort. With a modern kitchen, multiple reception areas, and an inviting courtyard garden, this property offers a warm family environment while maintaining easy access to Bedford's vibrant town center and the railway station, ensuring swift travel to London.
Families will appreciate the proximity to reputable schools, and the area is rich with local amenities—including cafes, pubs, and parks—creating a lively community feel. However, potential buyers should be mindful of the above-average crime rates in the neighborhood and the house's average condition.
With its unique character and promising investment potential, this home is perfect for first-time buyers or families looking to create lasting memories. Don’t miss out on this opportunity to own a piece of Bedford’s charm—properties like this are rarely available for long!
3 bedroom end of terrace house for sale in Foster Hill Road, Bedford, MK40 — £350,000 • 3 bed • 1 bath • 793 ft²
3 bedroom semi-detached house for sale in Foster Hill Road | Bedford | MK41 | opp Bedford Park, MK41 — £570,000 • 3 bed • 2 bath • 1701 ft²
5 bedroom semi-detached house for sale in Foster Hill Road, BEDFORD, MK41 — £560,000 • 5 bed • 3 bath • 1819 ft²
4 bedroom terraced house for sale in Foster Hill Road, Bedford, MK41 — £525,000 • 4 bed • 1 bath • 1636 ft²
3 bedroom semi-detached house for sale in Fenlake Road, Bedford, MK42 — £235,000 • 3 bed • 1 bath • 801 ft²
2 bedroom terraced house for sale in Beaconsfield Street, Bedford, MK41 — £262,500 • 2 bed • 1 bath • 688 ft²


















































































