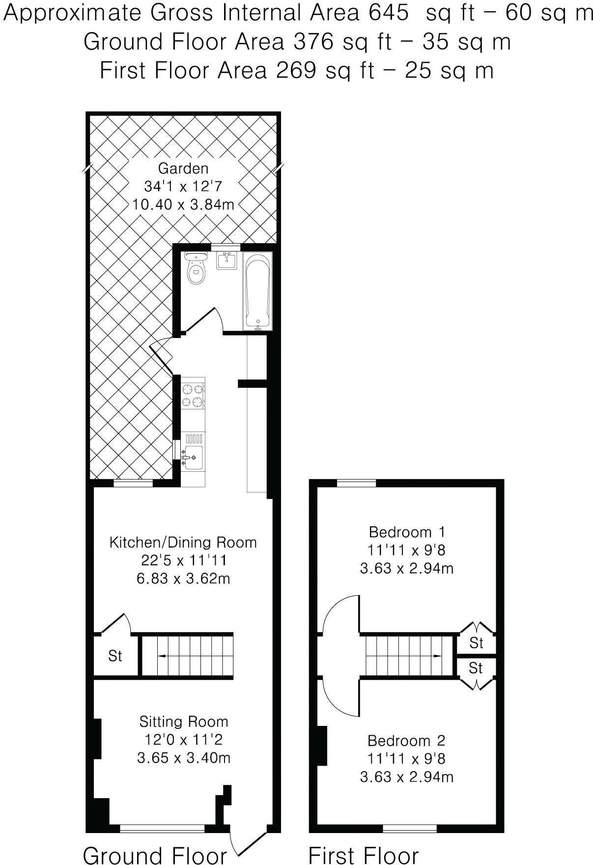
**Key Features:**
- Two spacious double bedrooms
- Modern open-plan kitchen/diner
- Ground floor contemporary bathroom
- Enclosed rear garden, perfect for relaxation
- Ideal location near eclectic shops and restaurants
- Excellent transport links to Oxford and beyond
- Freehold tenure, providing long-term security
Nestled in the vibrant East Oxford community, this beautifully presented Victorian terraced home strikes a perfect balance between character and modern living. The inviting interior includes an airy open-plan kitchen/diner, perfect for family meals or entertaining friends, alongside two generously sized double bedrooms. A stylish ground floor bathroom adds convenience, enhancing the overall functionality of this cozy retreat.
Step outside to discover an enclosed rear garden, ideal for al fresco dining or enjoying weekend relaxation. With nearby eclectic shops, diverse restaurants, and great transport links, everything you need is just a stone's throw away. This property is perfectly suited for first-time buyers, young families, or investors looking for rental potential in a thriving cosmopolitan area. Don’t miss the opportunity to claim your place in this desirable neighborhood—homes like this are in demand!
3 bedroom terraced house for sale in Howard Street, East Oxford, OX4 — £650,000 • 3 bed • 2 bath • 1067 ft²
3 bedroom terraced house for sale in Howard Street, East Oxford, OX4 — £500,000 • 3 bed • 1 bath • 718 ft²
4 bedroom terraced house for sale in Howard Street, East Oxford, OX4 — £725,000 • 4 bed • 2 bath • 1300 ft²
2 bedroom terraced house for sale in Howard Street, Oxford, Oxfordshire, OX4 — £600,000 • 2 bed • 1 bath • 872 ft²
3 bedroom terraced house for sale in Howard Street, East Oxford, OX4 — £525,000 • 3 bed • 1 bath • 872 ft²
3 bedroom terraced house for sale in Howard Street, East Oxford, OX4 — £575,000 • 3 bed • 3 bath • 964 ft²


















































