N17 6PN - 4 bedroom terraced house for sale in Keston Road, London, N…

View on Property Piper

4 bedroom terraced house for sale in Keston Road, London, N17

Summary - 34a Keston Road N17 6PN

4 bed 2 bath Terraced

**Standout Features:**
- Charming Victorian terraced house with period features
- Four spacious bedrooms and two reception rooms
- Separate kitchen and dining area
- In need of modernization, offering renovation potential
- Chain-free, appealing for buyers seeking a quick purchase
- Located in a desirable N17 neighborhood near amenities and green spaces
- Great transport links to central London

Nestled in a vibrant and evolving neighborhood of Tottenham, this delightful Victorian terraced house is a blank canvas awaiting your creative touch. With four generously sized bedrooms and two reception rooms, the property's layout provides ample space for family living. While in need of modernization, the opportunity to reconfigure or extend the home offers potential buyers a chance to create a unique sanctuary tailored to their lifestyle.

The location is unbeatable, with local hotspots including independent cafés and restaurants just moments away, alongside abundant green spaces like Tottenham Marshes and Walthamstow Wetlands, perfect for outdoor enthusiasts. Excellent transport connections, including Seven Sisters Station, make commuting a breeze. This chain-free property is suited for investors or families looking to make a long-term home, emphasizing both comfort and future potential. Don’t miss out on a chance to secure your dream project in one of North London's most exciting areas!

Property Details

Image Descriptions

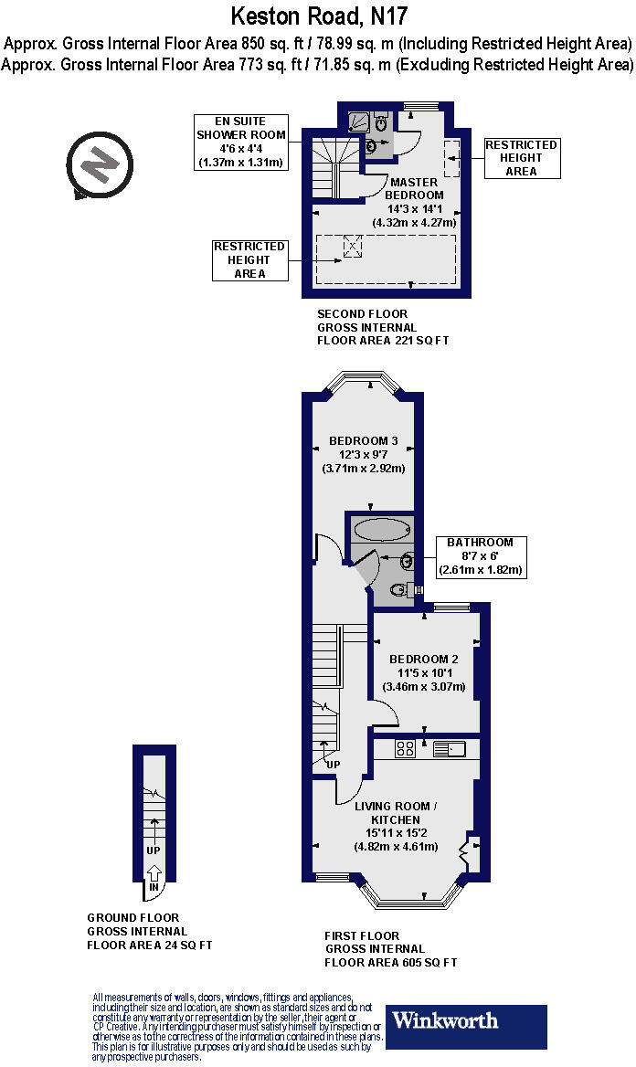
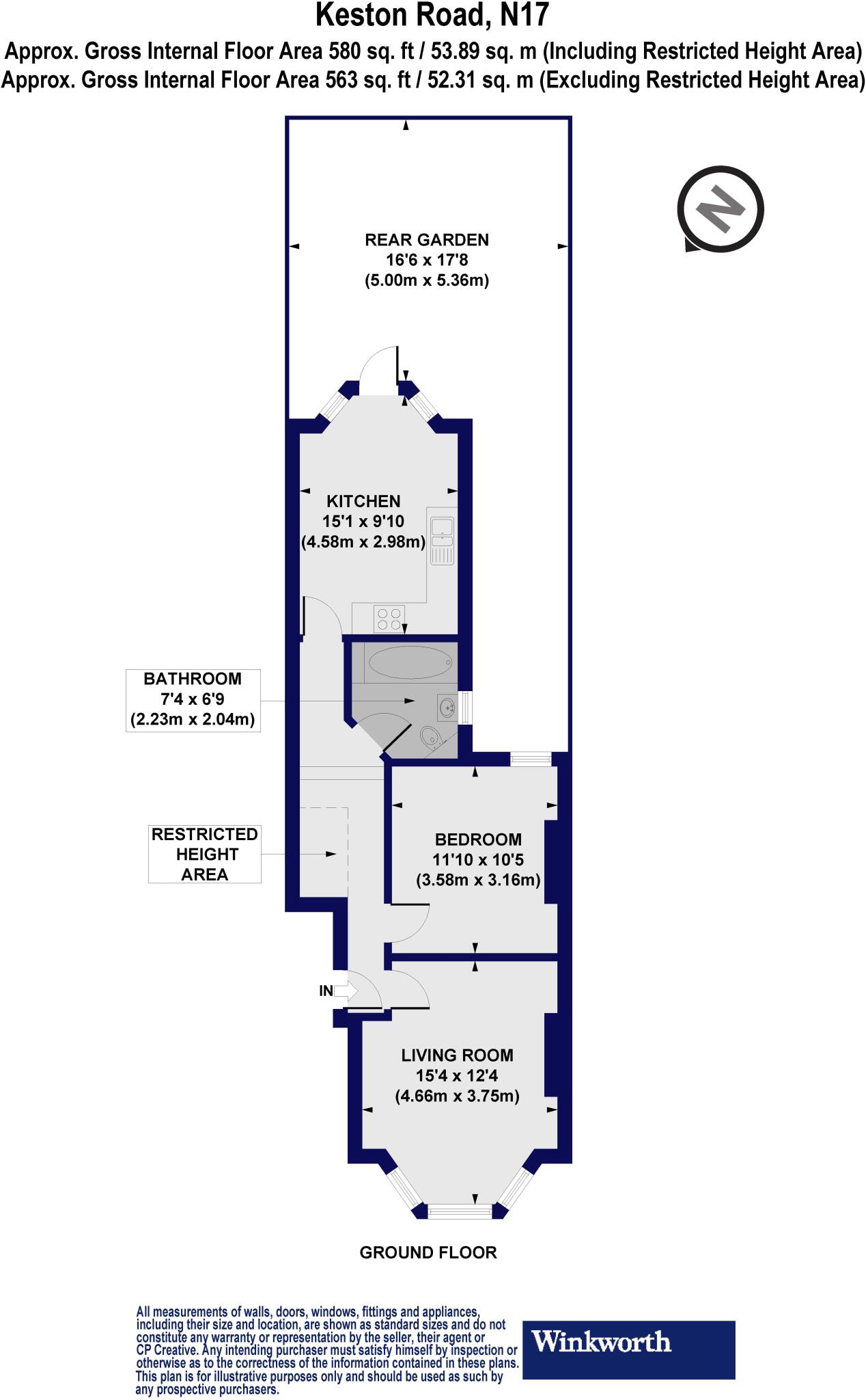
Floorplan Description

Rooms

Textual Property Features

Detected Visual Features

EPC Details

Nearby Schools

Nearest Bars And Restaurants

,,,,}

Nearest General Shops

,,}

Nearest Grocery shops

,,}

Nearest Supermarkets

,,}

Nearest Religious buildings

,,}

Nearest Medical buildings

,,,}

Nearest Airports

,}

Nearest Leisure Facilities

,,,,}

Nearest Tourist attractions

,,}

Nearest Train stations

,,,,}

Nearest Bus stations and stops

,,,,}

Nearest Hotels

,,}

Tags

Local Market Stats

AirBnB Data

Similar Properties

Meta

High Res Images

Compatible Images

Low res Images

Thumbnails

Raw Images

High Res Floorplan Images

Compatible Floorplan Images

Low res Floorplan Images

FloorplanImages Thumbnail

Raw Floorplan Images