**Standout Features:**
- Chain free Victorian semi-detached house
- Spacious 3 double bedrooms and 1 bathroom
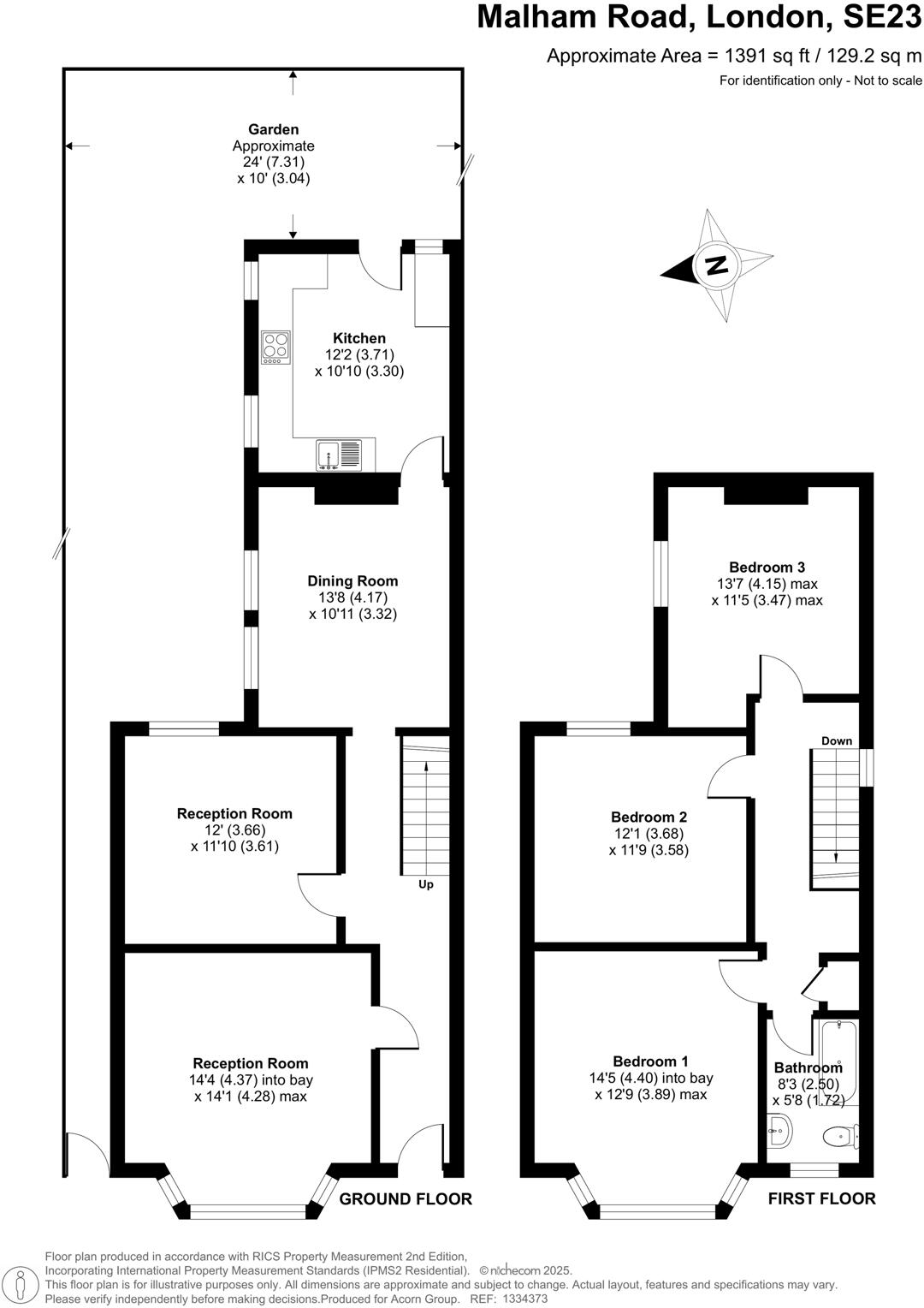
- Approx. 1,391 sqft (129.2 sqm) of living space
- High ceilings and classic Victorian proportions
- Large garden with renovation potential
- Exceptional location near schools, transport, and amenities
**Concerns:**
- Property requires modernization
- Solid brick walls with no insulation (assumed)
- Above average crime rate in the area
Welcome to this charming, chain-free Victorian semi-detached home nestled in the heart of Forest Hill. Boasting three spacious double bedrooms, a light-filled interior, and classic high ceilings, this approximately 1,391 sqft residence offers ample scope for personalization and growth. Perfectly suited for families, the property falls within the catchment area for highly regarded primary and secondary schools, ensuring an ideal environment for your children's education.
Characterized by its generous layout, the ground floor provides multiple possibilities for living space, including the potential for a large kitchen and multiple reception areas, creating a warm, inviting atmosphere for family life. The generous garden offers an exciting opportunity for those looking to renovate and enhance their outdoor space.
Located just a short walk from Forest Hill and Honor Oak stations for easy transport links to central London, alongside an array of local amenities and green spaces, this home embodies the perfect blend of community, convenience, and comfort. While it requires some modernization, this property is a rare chance to invest in a delightful period home with significant future potential in one of South East London’s most sought-after neighborhoods. Don’t miss this opportunity to make it your own!
3 bedroom house for sale in Kilmorie Road, Forest Hill, London, SE23 — £800,000 • 3 bed • 1 bath • 1104 ft²
2 bedroom semi-detached house for sale in Stanstead Road, London, SE23 — £650,000 • 2 bed • 1 bath • 966 ft²
4 bedroom terraced house for sale in Trilby Road, Forest Hill, SE23 — £930,000 • 4 bed • 2 bath • 1487 ft²
3 bedroom end of terrace house for sale in Witney Path, Mayow Road, London, SE23 — £450,000 • 3 bed • 1 bath • 876 ft²
3 bedroom terraced house for sale in Fifield Path, London, SE23 — £425,000 • 3 bed • 1 bath • 902 ft²
4 bedroom terraced house for sale in Cranston Road, London, SE23 — £875,000 • 4 bed • 2 bath • 1482 ft²






















































































































