Large listed high-street investment with garden and redevelopment potential.
Grade II listed double-fronted premises over four floors
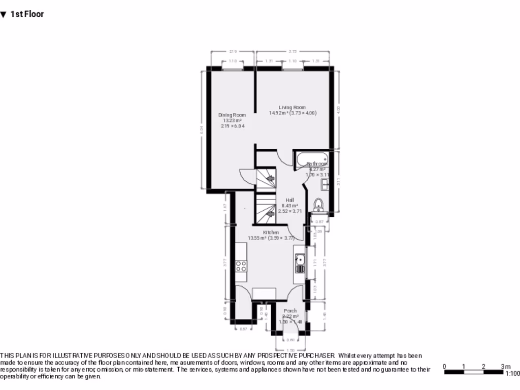
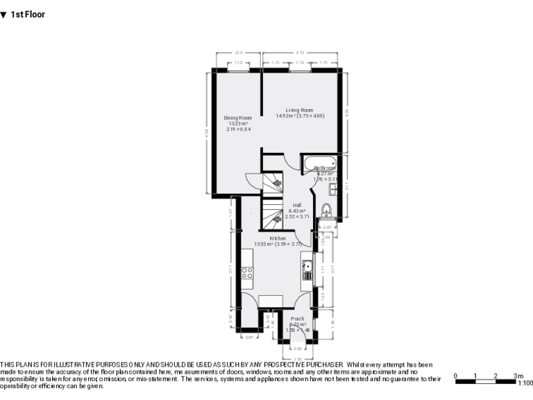
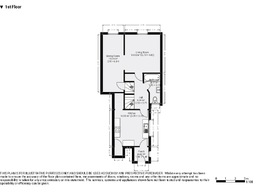
Large overall size ~2,733 sq ft; sizable plot and courtyard garden
Ground floor currently operating as a restaurant with large display windows
Separate rear access to upper residential accommodation
Listed status will restrict works and likely increase renovation costs
Data inconsistency on bedrooms (one field shows 1, others describe 3)
Tenure unknown — legal/possession details need checking
Located in town centre; affluent area but local crime flagged as high
A rare double-fronted, Grade II listed high-street property in Cranbrook, offered as a mixed commercial and residential opportunity. The ground floor currently trades as a restaurant with large Georgian shopfront windows and four upper floors providing substantial accommodation and outbuildings, plus a rear courtyard garden. Total area about 2,733 sq ft — spacious for central high-street premises.
This building suits an investor or owner-operator seeking long-term rental income or conversion potential. The location is town-centre, surrounded by independent shops, cafés and strong local amenities; fast broadband and excellent mobile signal support modern businesses. Guide price reflects the listed status and scope for improvement.
Important constraints: the property is Grade II listed which will restrict alterations and add consenting complexity and cost. There are mixed data on the residential layout (some notes describe three bedrooms above, while another data field lists one bedroom) — this should be clarified before offer. Tenure is unknown. The property will require refurbishment in parts and may need specialist listed-building contractors.
This is a sizeable, characterful property with clear investment and redevelopment potential for the right buyer who understands listed-building requirements and central high-street trading risks.
3 bedroom terraced house for sale in Available With No Onward Chain in Cranbrook, TN17 — £395,000 • 3 bed • 2 bath • 1913 ft²
Office for sale in High Street, Cranbrook, Kent, TN17 — £500,000 • 5 bed • 1 bath • 1900 ft²
5 bedroom terraced house for sale in High Street, Cranbrook, TN17 — £500,000 • 5 bed • 1 bath • 1900 ft²
5 bedroom property for sale in High Street, Cranbrook, Kent, TN17 — £500,000 • 5 bed • 1 bath • 1900 ft²
High street retail property for sale in Commercial Opportunity in Central Cranbrook, TN17 — £300,000 • 3 bed • 1 bath • 1744 ft²
Commercial property for sale in 31 Stone Street, Cranbrook, Kent, TN17 3HF, TN17 — £400,000 • 1 bed • 1 bath • 2806 ft²






















